Seven Pearl

Eladó családi ház
Tiszavasvári

+ 11 kép 1/14
35 900 000 Ft35.9 M Ft 199 444 Ft/m2
3 + 2 szoba
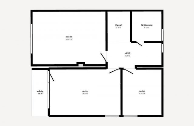
180 m²
építés éve:1985

Részletes adatok

Telekméret: 1042 m2
Fűtés: Gázkazán
Komfort: Összkomfortos
Energetikai besorolás: Nem adta meg a hirdető

Az OTP Bank lakáshitel ajánlataFizetett hirdetés

+36 70 316
Pannuska Marcell
OTPip - Nyíregyháza Sólyom utca 4 - OTP Ingatlanpont Iroda

Érdekel az OTP Bank kedvezményes lakáshitel ajánlata? *

* A kérdésre „Igen” válasz bejelölése esetén, az „Üzenet küldése” gombra kattintva kijelentem, hogy az OTP Bank Nyrt. Adatkezelési tájékoztatójának tartalmát megismertem és tudomásul vettem.

Eladó családi ház leírása

Eladó Tiszavasvári központi részén egy 180 négyzetméteres, kétszintes családi ház tágas, 1042 négyzetméteres telken. Az ingatlan tégla falazatú, masszív szerkezetű, új lemeztetővel ellátott, így hosszú távon is megbízható otthont kínál. A házban három szoba és két félszoba található, ami ideális nagyobb családok számára is. A kert rendezett, gondozott, konyhakerttel, ahol akár saját zöldségek is termeszthetők. A környék jó elhelyezkedésű, csendes és biztonságos, mégis közel minden fontos szolgáltatáshoz. Kényelmes, tágas otthon Tiszavasvári egyik legkedveltebb részén.
OTP Banki hátterünknek köszönhetően finanszírozási igényekben (pl. Otthon Start Hitelprogram, Babaváró, Falusi CSOK, CSOK Plusz, Lakáshitel, Személyi kölcsön stb.), illetve biztosítások tekintetében is díjmentesen, soron kívüli ügyintézéssel segítem ügyfeleim! Referenciaszám:M318263

Az energetikai tanúsítvány készítése folyamatban van, amint rendelkezésre áll, úgy azzal a hirdetés frissítésre kerül.

Referencia szám: M318263

Hirdetés feltöltve: 2026. 04. 01. Utoljára módosítva: 2026. 05. 14.

5 szobás családi házak ára Tiszavasváriban

Ebből az összehasonlításból megtudhatod, hogyan viszonyul a lakás ára a környékbeli családi házak átlagos árához. Ez nem azt jelenti, hogy ennyivel olcsóbb vagy drágább, mint amennyit a lakás ér, hanem hogy ennyivel tér el a környékbeli átlagtól.

Ennek a m² ára
Tiszavasvári m² ár
199 e Ft
256 e Ft 22%
Ennek az ára
Tiszavasvári átlagár
35.9 M Ft m Ft
46.6 m Ft 23%

Az ingatlan elhelyezkedése

Cím: Tiszavasvári

Eladó családi házak a környékről

Nyíregyháza
Eladó családi ház

Nyíregyháza

65 M Ft
3 szoba
135 m²
Tiszavasvári
Eladó családi ház

Tiszavasvári

84.7 M Ft
6 szoba
267 m²
Kemecse
Eladó családi ház

Kemecse

27 M Ft
2 + 1 szoba
96 m²
Tiszavasvári
Eladó családi ház

Tiszavasvári

12.9 M Ft
1 szoba
60 m²
Tiszavasvári
Eladó családi ház

Tiszavasvári

16.2 M Ft
3 szoba
119 m²
Tiszavasvári
Eladó családi ház

Tiszavasvári

23.9 M Ft
2 + 1 szoba
120 m²
Tiszavasvári
Eladó családi ház

Tiszavasvári

8.5 M Ft
3 szoba
120 m²
Nyírtelek
Eladó családi ház

Nyírtelek

130 M Ft
3 szoba
159 m²
Nyíregyháza
Eladó családi ház

Nyíregyháza

190 M Ft
4 szoba
230 m²
Tiszavasvári
Eladó családi ház

Tiszavasvári

15 M Ft
3 szoba
108 m²
Tiszavasvári
Eladó családi ház

Tiszavasvári

65.5 M Ft
5 + 3 szoba
180 m²
Kemecse
Eladó családi ház

Kemecse

34.9 M Ft
2 szoba
100 m²
Napkor
Eladó családi ház

Napkor

115 M Ft
5 szoba
292 m²
Tiszavasvári
Eladó családi ház

Tiszavasvári

19.9 M Ft
3 szoba
80 m²
Tiszavasvári
Eladó családi ház

Tiszavasvári

18.5 M Ft
3 szoba
82 m²
Tiszavasvári
Eladó családi ház

Tiszavasvári

19.9 M Ft
3 szoba
80 m²
Nyíregyháza
Eladó családi ház

Nyíregyháza

150 M Ft
2 szoba
120 m²
Nyíregyháza
Eladó családi ház

Nyíregyháza

89.9 M Ft
5 szoba
274 m²
Tiszavasvári
Eladó családi ház

Tiszavasvári

65.5 M Ft
5 + 3 szoba
180 m²
Tiszavasvári
Eladó családi ház

Tiszavasvári

23.9 M Ft
2 + 1 szoba
120 m²
Tiszavasvári
Eladó családi ház

Tiszavasvári

3.2 M Ft
1 szoba
25 m²
Tiszavasvári
Eladó családi ház

Tiszavasvári

70 M Ft
5 + 3 szoba
180 m²
Tiszavasvári, Kodály Zoltán utca 12
Eladó családi ház

Tiszavasvári

1.02 M Ft
11 + 1 szoba
67 m²
Nyíregyháza
Eladó családi ház

Nyíregyháza

90 M Ft
5 szoba
210 m²

Falusi CSOK ingatlanok

Mikepércs
Eladó családi ház

Mikepércs

56 M Ft
3 + 1 szoba
87 m²
Kislippó
Eladó családi ház

Kislippó

30 M Ft
2 szoba
80 m²
Mikebuda
Eladó családi ház

Mikebuda

45.9 M Ft
7 szoba
120 m²
Sződ
Eladó családi ház

Sződ

102.9 M Ft
4 szoba
92 m²
Bag
Eladó ikerház

Bag

93 M Ft
3 szoba
68 m²
Rétság
Eladó téglalakás

Rétság

39.9 M Ft
2 szoba
55 m²
Bakonyszentlászló
Eladó családi ház

Bakonyszentlászló

48.5 M Ft
3 szoba
103 m²
Ceglédbercel
Eladó családi ház

Ceglédbercel

67 M Ft
3 szoba
97 m²