NapForrás 20 - Buda

Eladó családi ház
Tiszavasvári

+ 15 kép 1/18
32 000 000 Ft32 M Ft 290 909 Ft/m2
3 szoba
110 m2
építés éve:1994

Részletes adatok

Telekméret: 1034 m2
Fűtés: Házközponti
Energetikai besorolás: Nem adta meg a hirdető

Az OTP Bank lakáshitel ajánlataFizetett hirdetés

+36 70 597
Konc Richárd
OTP Ingatlanpont

Érdekel az OTP Bank kedvezményes lakáshitel ajánlata? *

* A kérdésre „Igen” válasz bejelölése esetén, az „Üzenet küldése” gombra kattintva kijelentem, hogy az OTP Bank Nyrt. Adatkezelési tájékoztatójának tartalmát megismertem és tudomásul vettem.

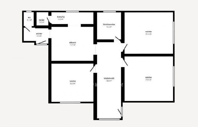
Eladó családi ház leírása

Tiszavasváriban jó állapotú családi ház eladó!
Csendes, rendezett környezetben kínálunk megvételre egy 110 négyzetméteres, jó állapotú családi házat. Az ingatlan egy 1034 négyzetméteres telken helyezkedik el, amely ideális lehet családosoknak, de akár további fejlesztésekre is alkalmas.
A ház 1994-ben épült, stabil szilikát szerkezettel rendelkezik. A belső elrendezés praktikus: három tágas szoba, étkező, különálló konyha, fürdőszoba, WC és több tárolóhelyiség is megtalálható. A fűtés központi kazánnal működik, radiátoros hőleadással. A ház alatt pince található, ahol a kazán is helyet kapott.
Az ingatlanhoz tartozik egy körülbelül 40 négyzetméteres melléképület, valamint zárt és nyílt kocsibeállók is rendelkezésre állnak. Parkolás az udvaron és a ház előtt is megoldható.
A tetőtér beépíthető, kialakítható benne két további szoba és egy fürdőszoba is. Az épület kívül-belül jó állapotú, azonnal költözhető, csak kisebb korszerűsítést igényelhet. Teljes felújítása legutóbb 2025-ben történt.
A ház bútorozott, berendezett, klímával felszerelt, redőnyökkel ellátott, valamint térfigyelő kamerarendszer is kiépítésre került.

OTP Banki hátterünknek köszönhetően finanszírozási igényekben (pl. Babaváró, Falusi CSOK, CSOK Plusz, Lakáshitel, Személyi kölcsön stb.), illetve biztosítások tekintetében is díjmentesen, soron kívüli ügyintézéssel segítem ügyfeleim!
Referenciaszám: M309988

Hirdetés feltöltve: 2025. 11. 15. Utoljára módosítva: 2025. 11. 15.

3 szobás családi házak ára Tiszavasváriban

Ebből az összehasonlításból megtudhatod, hogyan viszonyul a lakás ára a környékbeli családi házak átlagos árához. Ez nem azt jelenti, hogy ennyivel olcsóbb vagy drágább, mint amennyit a lakás ér, hanem hogy ennyivel tér el a környékbeli átlagtól.

Ennek a m² ára
Tiszavasvári m² ár
291 e Ft
206 e Ft -41%
Ennek az ára
Tiszavasvári átlagár
32 M Ft m Ft
20.7 m Ft -55%

Az ingatlan elhelyezkedése

Cím: Tiszavasvári

Eladó családi házak a környékről

Eladó családi ház
Eladó családi ház

Nyíregyháza

22.9 M Ft
2 szoba
90 m2
Eladó családi ház
Eladó családi ház

Nyíregyháza

120 M Ft
5 szoba
203 m2
Eladó családi ház
Eladó családi ház

Nyíregyháza

87 M Ft
5 szoba
210 m2
Eladó családi ház
Eladó családi ház

Nyíregyháza

79 M Ft
5 szoba
126 m2
Eladó családi ház
Eladó családi ház

Tiszavasvári

21.99 M Ft
3 szoba
67 m2
Eladó családi ház
Eladó családi ház

Nyíregyháza

46 M Ft
3 + 1 szoba
140 m2
Eladó családi ház
Eladó családi ház

Tiszavasvári

13 M Ft
2 szoba
56 m2
Eladó családi ház
Eladó családi ház

Tiszavasvári, Toldi utca 3

4.7 M Ft
1 + 1 szoba
62 m2
Eladó családi ház
Eladó családi ház

Nyíregyháza

62 M Ft
4 szoba
140 m2
Eladó családi ház
Eladó családi ház

Tiszavasvári, Kodály Zoltán utca 12

1.02 M Ft
11 + 1 szoba
67 m2
Eladó családi ház
Eladó családi ház

Nyíregyháza

41.99 M Ft
2 szoba
60 m2
Eladó családi ház
Eladó családi ház

Nyírtelek

68.9 M Ft
12 szoba
440 m2
Eladó családi ház
Eladó családi ház

Tiszavasvári

44.99 M Ft
5 szoba
133 m2
Eladó családi ház
Eladó családi ház

Tiszavasvári

21.5 M Ft
2 szoba
80 m2
Eladó családi ház
Eladó családi ház

Tiszavasvári

13 M Ft
2 szoba
56 m2
Eladó családi ház
Eladó családi ház

Tiszavasvári

31.9 M Ft
5 szoba
360 m2
Eladó családi ház
Eladó családi ház

Nyírtelek

10.9 M Ft
2 szoba
55 m2
Eladó családi ház
Eladó családi ház

Nyíregyháza

190 M Ft
4 szoba
230 m2
Eladó családi ház
Eladó családi ház

Tiszavasvári

7.9 M Ft
3 szoba
97 m2
Eladó családi ház
Eladó családi ház

Tiszavasvári

5.6 M Ft
3 szoba
75 m2
Eladó családi ház
Eladó családi ház

Nyíregyháza

75.9 M Ft
6 szoba
240 m2
Eladó családi ház
Eladó családi ház

Nyíregyháza

250 M Ft
4 szoba
440 m2
Eladó családi ház
Eladó családi ház

Tiszavasvári, Vasas utca

21.5 M Ft
4 + 1 szoba
80 m2
Eladó családi ház
Eladó családi ház

Nyíregyháza, Oros, Oros

55 M Ft
4 szoba
100 m2

Falusi CSOK ingatlanok

Eladó családi ház
Eladó családi ház

Röszke, Dózsa György utcánál

22.9 M Ft
3 szoba
79 m2
Eladó családi ház
Eladó családi ház

Körösladány

14.9 M Ft
2 szoba
65 m2
Eladó családi ház
Eladó családi ház

Uraiújfalu

15.9 M Ft
4 szoba
100 m2
Eladó családi ház
Eladó családi ház

Orci

59.9 M Ft
3 szoba
101 m2
Eladó családi ház
Eladó családi ház

Szentkirályszabadja

119.9 M Ft
6 szoba
185 m2
Eladó téglalakás
Eladó téglalakás

Balatonszemes

119.9 M Ft
2 szoba
81 m2
Eladó családi ház
Eladó családi ház

Somlóvásárhely

39.8 M Ft
1 szoba
78 m2
Eladó családi ház
Eladó családi ház

Kamut

29 M Ft
3 szoba
100 m2