Eladó családi ház
Tiszavasvári

+ 17 kép 1/20
15 800 000 Ft15.8 M Ft 147 664 Ft/m2
3 szoba
107 m2
építés éve:1970

Részletes adatok

Állapot: Felújítandó
Telekméret: 450 m2
Fűtés: Gázkonvektor
Energetikai besorolás: Nem adta meg a hirdető
Zenga Premier

Friss hirdetések, amiket nem találsz meg más ingatlankereső portálon.

Fedezd fel elsőként a Zenga Premier címkés eladó ingatlanokat!

További részletek a zenga.hu-n

Az OTP Bank lakáshitel ajánlataFizetett hirdetés

+36 70 585
Szücs-Hajdú Angelika
OTP Ingatlanpont Kft.

Érdekel az OTP Bank kedvezményes lakáshitel ajánlata? *

* A kérdésre „Igen” válasz bejelölése esetén, az „Üzenet küldése” gombra kattintva kijelentem, hogy az OTP Bank Nyrt. Adatkezelési tájékoztatójának tartalmát megismertem és tudomásul vettem.

Eladó családi ház leírása

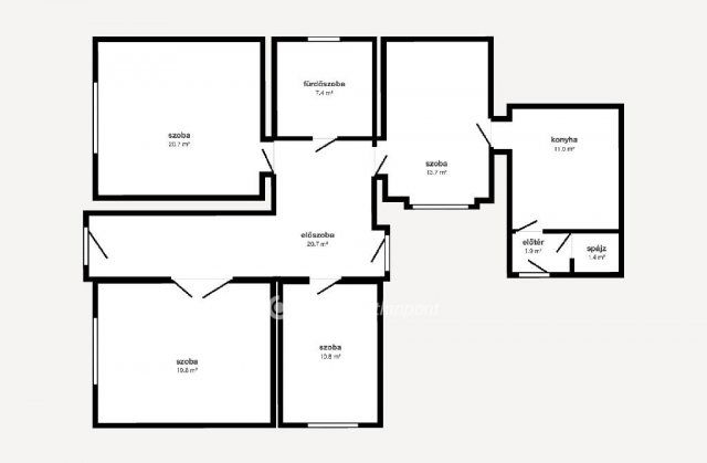
Tiszavasváriban, a város központjához közel, mégis csendes, nyugodt környezetben eladó egy 107 nm -es, felújítandó családi ház 450 nm-es telken. Az ingatlan 1970-ben épült, tégla szerkezetű, masszív alapokkal rendelkezik, és három tágas szobából áll, egy szinten elhelyezkedve. A ház belső és külső felújítást igényel, így kiváló lehetőséget nyújt azok számára, akik saját ízlésükre szabnák új otthonukat. Az elhelyezkedése rendkívül kedvező: a közelben található gimnázium, általános iskola, boltok és buszmegálló is, így minden fontos szolgáltatás pár perc sétával elérhető. A környék rendezett, családi házas övezet, barátságos szomszédsággal és kellemes hangulattal. Az ingatlan ideális választás lehet családoknak, akik nyugodt, de jól megközelíthető helyen keresnek otthont, illetve befektetőknek is, akik értéknövelő felújításban gondolkodnak. Az ingatlan állapota felújítandó, de stabil szerkezete és kiváló elhelyezkedése miatt nagy potenciált rejt magában.
OTP Banki hátterünknek köszönhetően finanszírozási igényekben (pl. Otthon Start Hitelprogram, Babaváró, Falusi CSOK, CSOK Plusz, Lakáshitel, Személyi kölcsön stb.), illetve biztosítások tekintetében is díjmentesen, soron kívüli ügyintézéssel segítem ügyfeleim!
Referenciaszám: M315014

Hirdetés feltöltve: 2025. 10. 23. Utoljára módosítva: 2025. 10. 23.

3 szobás családi házak ára Tiszavasváriban

Ebből az összehasonlításból megtudhatod, hogyan viszonyul a lakás ára a környékbeli családi házak átlagos árához. Ez nem azt jelenti, hogy ennyivel olcsóbb vagy drágább, mint amennyit a lakás ér, hanem hogy ennyivel tér el a környékbeli átlagtól.

Ennek a m² ára
Tiszavasvári m² ár
148 e Ft
216 e Ft 32%
Ennek az ára
Tiszavasvári átlagár
15.8 M Ft m Ft
21.3 m Ft 26%

Az ingatlan elhelyezkedése

Cím: Tiszavasvári

Eladó családi házak a környékről

Eladó családi ház
Eladó családi ház

Tiszavasvári

21.5 M Ft
2 szoba
80 m2
Eladó családi ház
Eladó családi ház

Tiszavasvári

21.9 M Ft
3 + 2 szoba
110 m2
Eladó családi ház
Eladó családi ház

Nyíregyháza

250 M Ft
4 szoba
440 m2
Eladó családi ház
Eladó családi ház

Nyíregyháza

92.8 M Ft
5 szoba
240 m2
Eladó családi ház
Eladó családi ház

Napkor

49.8 M Ft
4 szoba
253 m2
Eladó családi ház
Eladó családi ház

Nyíregyháza

92 M Ft
3 szoba
161 m2
Eladó családi ház
Eladó családi ház

Tiszavasvári

21.5 M Ft
2 szoba
80 m2
Eladó családi ház
Eladó családi ház

Tiszavasvári, Kodály Zoltán utca 12

1.02 M Ft
11 + 1 szoba
67 m2
Eladó családi ház
Eladó családi ház

Nyíregyháza

79 M Ft
5 szoba
126 m2
Eladó családi ház
Eladó családi ház

Tiszavasvári, Toldi utca 3

4.7 M Ft
1 + 1 szoba
62 m2
Eladó családi ház
Eladó családi ház

Tiszavasvári, Károli Gáspár utca

6.5 M Ft
2 szoba
70 m2
Eladó családi ház
Eladó családi ház

Nyíregyháza

190 M Ft
4 szoba
230 m2
Eladó családi ház
Eladó családi ház

Nyíregyháza

120 M Ft
5 szoba
203 m2
Eladó családi ház
Eladó családi ház

Tiszavasvári, Vasas utca

21.5 M Ft
4 + 1 szoba
80 m2
Eladó családi ház
Eladó családi ház

Nyíregyháza, Oros, Oros

55 M Ft
4 szoba
100 m2
Eladó családi ház
Eladó családi ház

Tiszavasvári

21.99 M Ft
3 szoba
67 m2
Eladó családi ház
Eladó családi ház

Nyíregyháza

44.99 M Ft
2 szoba
60 m2
Eladó családi ház
Eladó családi ház

Nyíregyháza

85 M Ft
3 szoba
170 m2
Eladó családi ház
Eladó családi ház

Tiszavasvári, Toldi utca 3

4.7 M Ft
1 + 1 szoba
62 m2
Eladó családi ház
Eladó családi ház

Tiszavasvári

21.5 M Ft
2 szoba
80 m2
Eladó családi ház
Eladó családi ház

Nyíregyháza

87 M Ft
5 szoba
210 m2
Eladó családi ház
Eladó családi ház

Nyíregyháza

89.9 M Ft
5 szoba
274 m2
Eladó családi ház
Eladó családi ház

Nyíregyháza

62 M Ft
4 szoba
140 m2
Eladó családi ház
Eladó családi ház

Tiszavasvári

10.5 M Ft
2 szoba
63 m2

Falusi CSOK ingatlanok

Eladó családi ház
Eladó családi ház

Böhönye, Dózsa körút

20.9 M Ft
5 + 1 szoba
127 m2
Eladó családi ház
Eladó családi ház

Ceglédbercel

45 M Ft
2 + 1 szoba
127 m2
Eladó családi ház
Eladó családi ház

Perkáta

62.4 M Ft
5 szoba
120 m2
Eladó családi ház
Eladó családi ház

Balatonberény

115.259 M Ft
5 szoba
145 m2
Eladó családi ház
Eladó családi ház

Nagybaracska

35 M Ft
3 szoba
110 m2
Eladó téglalakás
Eladó téglalakás

Kőröshegy

64.9 M Ft
3 szoba
52 m2
Eladó családi ház
Eladó családi ház

Tök

124.2 M Ft
4 szoba
128 m2
Eladó családi ház
Eladó családi ház

Bárdudvarnok

28.7 M Ft
6 szoba
286 m2