Eladó családi ház
Tiszavasvári

+ 11 kép 1/14
38 000 000 Ft38 M Ft 211 111 Ft/m2
3 + 2 szoba
180 m2
építés éve:1985

Részletes adatok

Telekméret: 1042 m2
Fűtés: Gázkazán
Energetikai besorolás: Nem adta meg a hirdető

Az OTP Bank lakáshitel ajánlataFizetett hirdetés

+36 30 097
Katona Ferenc
OTPIP Nyíregyháza Hunyadi u.

Érdekel az OTP Bank kedvezményes lakáshitel ajánlata? *

* A kérdésre „Igen” válasz bejelölése esetén, az „Üzenet küldése” gombra kattintva kijelentem, hogy az OTP Bank Nyrt. Adatkezelési tájékoztatójának tartalmát megismertem és tudomásul vettem.

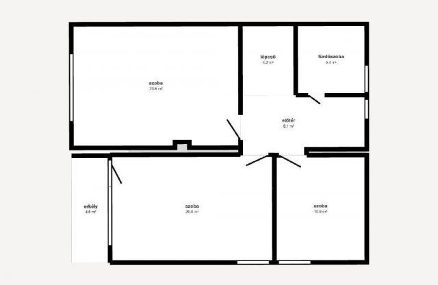
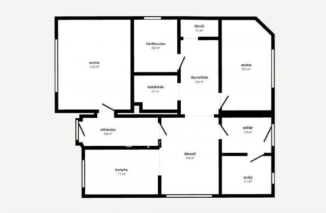
Eladó családi ház leírása

Eladó Tiszavasvári központi részén egy 180 négyzetméteres, kétszintes családi ház tágas, 1042 négyzetméteres telken. Az ingatlan tégla falazatú, masszív szerkezetű, új lemeztetővel ellátott, így hosszú távon is megbízható otthont kínál. A házban három szoba és két félszoba található, ami ideális nagyobb családok számára is. Cirkó kazán és klíma H-tarifás órával biztosítja az ideális hőérsékletet. A kert rendezett, gondozott, konyhakerttel, ahol akár saját zöldségek is termeszthetők. A környék jó elhelyezkedésű, csendes és biztonságos, mégis közel minden fontos szolgáltatáshoz. Kényelmes, tágas otthon Tiszavasvári egyik legkedveltebb részén.
OTP Banki hátterünknek köszönhetően finanszírozási igényekben (pl. Otthon Start Hitelprogram, Babaváró, Falusi CSOK, CSOK Plusz, Lakáshitel, Személyi kölcsön stb.), illetve biztosítások tekintetében is díjmentesen, soron kívüli ügyintézéssel segítem ügyfeleim! Referenciaszám: M314155

Hirdetés feltöltve: 2025. 10. 22.

Az ingatlan elhelyezkedése

Cím: Tiszavasvári

Eladó családi házak a környékről

Eladó családi ház
Eladó családi ház

Nyíregyháza

89.9 M Ft
5 szoba
274 m2
Eladó családi ház
Eladó családi ház

Tiszavasvári

21.5 M Ft
2 szoba
80 m2
Eladó családi ház
Eladó családi ház

Nyíregyháza

62 M Ft
4 szoba
140 m2
Eladó családi ház
Eladó családi ház

Nyírtelek

10.9 M Ft
2 szoba
55 m2
Eladó családi ház
Eladó családi ház

Nyírtelek

68.9 M Ft
12 szoba
440 m2
Eladó családi ház
Eladó családi ház

Tiszavasvári

16 M Ft
3 szoba
108 m2
Eladó családi ház
Eladó családi ház

Tiszavasvári

23.5 M Ft
2 szoba
86 m2
Eladó családi ház
Eladó családi ház

Nyíregyháza

120 M Ft
5 szoba
203 m2
Eladó családi ház
Eladó családi ház

Nyíregyháza

44.9 M Ft
1 szoba
51 m2
Eladó családi ház
Eladó családi ház

Tiszavasvári

84.7 M Ft
6 szoba
267 m2
Eladó családi ház
Eladó családi ház

Nyíregyháza

180 M Ft
3 szoba
204 m2
Eladó családi ház
Eladó családi ház

Tiszavasvári, Kodály Zoltán utca 12

1.02 M Ft
11 + 1 szoba
67 m2
Eladó családi ház
Eladó családi ház

Nyíregyháza

23 M Ft
2 szoba
51 m2
Eladó családi ház
Eladó családi ház

Nyíregyháza

250 M Ft
4 szoba
440 m2
Eladó családi ház
Eladó családi ház

Napkor

49.8 M Ft
4 szoba
253 m2
Eladó családi ház
Eladó családi ház

Tiszavasvári

21.5 M Ft
3 szoba
79 m2
Eladó családi ház
Eladó családi ház

Tiszavasvári

21.99 M Ft
3 szoba
67 m2
Eladó családi ház
Eladó családi ház

Tiszavasvári

23.4 M Ft
6 szoba
90 m2
Eladó családi ház
Eladó családi ház

Tiszavasvári

10.5 M Ft
2 szoba
63 m2
Eladó családi ház
Eladó családi ház

Tiszavasvári

17.5 M Ft
3 szoba
82 m2
Eladó családi ház
Eladó családi ház

Tiszavasvári

23.5 M Ft
2 szoba
80 m2
Eladó családi ház
Eladó családi ház

Nyíregyháza

46 M Ft
3 + 1 szoba
140 m2
Eladó családi ház
Eladó családi ház

Nyíregyháza

199.9 M Ft
6 szoba
500 m2
Eladó családi ház
Eladó családi ház

Nyíregyháza

85 M Ft
3 szoba
170 m2

Falusi CSOK ingatlanok

Eladó családi ház
Eladó családi ház

Pusztamonostor

22 M Ft
3 szoba
86 m2
Eladó családi ház
Eladó családi ház

Nagybaracska

35 M Ft
3 szoba
110 m2
Eladó családi ház
Eladó családi ház

Vaskút, Damjanich János utca

16.5 M Ft
3 szoba
100 m2
Eladó családi ház
Eladó családi ház

Tápiógyörgye

6.5 M Ft
2 szoba
62 m2
Eladó családi ház
Eladó családi ház

Bárdudvarnok

28.7 M Ft
6 szoba
286 m2
Eladó családi ház
Eladó családi ház

Szeremle

25 M Ft
4 szoba
185 m2
Eladó családi ház
Eladó családi ház

Somogymeggyes

14 M Ft
3 szoba
86 m2
Eladó családi ház
Eladó családi ház

Zalakomár

12 M Ft
3 szoba
72 m2