Aerogate Homes

Eladó családi ház
Tiszatarján, Kossuth Lajos utca

Figyelem!

Ez az ingatlan a 2019.07.01-től induló falusi CSOK által támogatott településen található

+ 17 kép 1/20
16 490 000 Ft16.49 M Ft 242 500 Ft/m2
2 szoba
68 m2

Részletes adatok

Állapot: Átlagos
Telekméret: 1704 m2
Fűtés: Gázkonvektor
Közmű: Gáz
Energetikai besorolás: Nem adta meg a hirdető

Az OTP Bank lakáshitel ajánlataFizetett hirdetés

+36 70 606
Orsolya Sándor
referens

Érdekel az OTP Bank kedvezményes lakáshitel ajánlata? *

* A kérdésre „Igen” válasz bejelölése esetén, az „Üzenet küldése” gombra kattintva kijelentem, hogy az OTP Bank Nyrt. Adatkezelési tájékoztatójának tartalmát megismertem és tudomásul vettem.

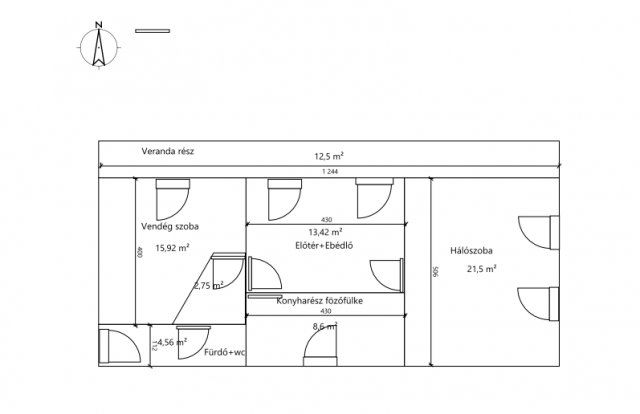
Eladó családi ház leírása

Tiszatarján központjában eladó családi ház melléképületekkel nagy telekkel.

A ingatlan  közművesített műanyag nyílászárokkal felszerelt. A ház egy hálószobából vendégszobából,illetve egy amerikai stílusú konyhából áll. A konyha kettéválasztott egy bárpult segítsésével, így hangulatosabb. Található benne még egy fürdő ,ami a vendégszobából közelíthető meg.

Az udvaron egy felújított melléképület van, ami műanyag nyílászárókkal ellátott.Rendezett parkosított udvar botanikus kert kilakítással. Az udvar két részből áll, amit kerítés választ el egymástól. Az első udvar gyümölcsfákkal és növényekkel beültetett. A hátsó részen található egy mobilgarázs és a melléképületek.A telek két útról megközelíthető. Internet hálózat kialakított a településen.

Hirdetés feltöltve: 2025. 12. 30. Utoljára módosítva: 2026. 01. 28.

Az ingatlan elhelyezkedése

Cím: Tiszatarján, Kossuth Lajos utca

Eladó ingatlanok a környékről

Eladó családi ház
Eladó családi ház

Tiszatarján

11 M Ft
1 szoba
60 m2
Eladó családi ház
Eladó családi ház

Tiszalúc, Alkotmány utca

16.9 M Ft
4 szoba
137 m2
Eladó ipari ingatlan
Eladó ipari ingatlan

Miskolc

55.9 M Ft
4 + 1 szoba
100 m2
Eladó családi ház
Eladó családi ház

Edelény

4.9 M Ft
1 + 1 szoba
34 m2
Eladó családi ház
Eladó családi ház

Sajószöged

34.9 M Ft
2 szoba
65 m2
Eladó családi ház
Eladó családi ház

Miskolc

25.9 M Ft
4 szoba
148 m2
Eladó családi ház
Eladó családi ház

Gönc

20.5 M Ft
2 szoba
80 m2
Eladó családi ház
Eladó családi ház

Putnok

11 M Ft
3 szoba
79 m2
Eladó családi ház
Eladó családi ház

Gönc

26 M Ft
3 szoba
130 m2
Eladó családi ház
Eladó családi ház

Edelény

45 M Ft
2 szoba
120 m2
Eladó családi ház
Eladó családi ház

Taktaszada, Thököly utca

37 M Ft
4 + 1 szoba
190 m2
Eladó családi ház
Eladó családi ház

Alacska

14.9 M Ft
2 szoba
92 m2
Eladó üzlethelyiség
Eladó üzlethelyiség

Múcsony

44.9 M Ft
4 szoba
150 m2
Eladó családi ház
Eladó családi ház

Tiszatarján

11 M Ft
1 szoba
60 m2
Eladó családi ház
Eladó családi ház

Szendrő

19.9 M Ft
4 szoba
150 m2
Eladó családi ház
Eladó családi ház

Múcsony

37.5 M Ft
4 + 1 szoba
190 m2
Eladó családi ház
Eladó családi ház

Miskolc

30 M Ft
4 szoba
71 m2
Eladó családi ház
Eladó családi ház

Sajópetri, Deák Ferenc utca

19.98 M Ft
2 szoba
67 m2
Eladó családi ház
Eladó családi ház

Miskolc

94.9 M Ft
8 szoba
340 m2
Eladó téglalakás
Eladó téglalakás

Miskolc

21.9 M Ft
1 szoba
35 m2
Eladó családi ház
Eladó családi ház

Onga

63 M Ft
4 szoba
90 m2
Eladó hotel
Eladó hotel

Sajószöged

129 M Ft
7 + 1 szoba
420 m2
Eladó nyaraló
Eladó nyaraló

Miskolc

14.9 M Ft
1 szoba
636 m2
Eladó családi ház
Eladó családi ház

Nemesbikk, Kossuth utca 3

4.5 M Ft
2 szoba
80 m2

Falusi CSOK ingatlanok

Eladó családi ház
Eladó családi ház

Kenyeri

21.8 M Ft
2 szoba
75 m2
Eladó családi ház
Eladó családi ház

Baté

21.8 M Ft
2 szoba
60 m2
Eladó családi ház
Eladó családi ház

Töttös, Rákóczi utca

55.9 M Ft
4 szoba
129 m2
Eladó családi ház
Eladó családi ház

Egerág, Pozsonyi utca

26.9 M Ft
3 szoba
96 m2
Eladó családi ház
Eladó családi ház

Zalalövő

34.99 M Ft
3 szoba
110 m2
Eladó családi ház
Eladó családi ház

Dág

26.9 M Ft
3 szoba
68 m2
Eladó családi ház
Eladó családi ház

Nagybörzsöny

79.9 M Ft
4 szoba
149 m2
Eladó családi ház
Eladó családi ház

Nagyhegyes

44.9 M Ft
2 szoba
72 m2

Falusi CSOK ingatlanok

Eladó családi ház
Eladó családi ház

Baté

21.8 M Ft
2 szoba
60 m2
Eladó családi ház
Eladó családi ház

Zalalövő

34.99 M Ft
3 szoba
110 m2
Eladó családi ház
Eladó családi ház

Egerág, Pozsonyi utca

26.9 M Ft
3 szoba
96 m2
Eladó családi ház
Eladó családi ház

Bozsok

290 M Ft
6 szoba
370 m2
Eladó családi ház
Eladó családi ház

Szentbékkálla, Szentbékkálla

63.9 M Ft
2 szoba
143 m2
Eladó családi ház
Eladó családi ház

Sárok, Kossuth Lajos utca

21.9 M Ft
3 szoba
97 m2
Eladó családi ház
Eladó családi ház

Kesztölc

129.9 M Ft
8 szoba
210 m2
Eladó családi ház
Eladó családi ház

Pécsvárad

189 M Ft
7 szoba
618 m2