Avico Greentop

Eladó családi ház
Tiszanána

Figyelem!

Ez az ingatlan a 2019.07.01-től induló falusi CSOK által támogatott településen található

+ 17 kép 1/20
14 000 000 Ft14 M Ft 168 675 Ft/m2
2 + 1 szoba
83 m2
építés éve:1950

Részletes adatok

Telekméret: 1407 m2
Fűtés: Gázkonvektor
Energetikai besorolás: Nem adta meg a hirdető

Az OTP Bank lakáshitel ajánlataFizetett hirdetés

+36 30 299
Kiss György
Tiszafüred OTP IP iroda

Érdekel az OTP Bank kedvezményes lakáshitel ajánlata? *

* A kérdésre „Igen” válasz bejelölése esetén, az „Üzenet küldése” gombra kattintva kijelentem, hogy az OTP Bank Nyrt. Adatkezelési tájékoztatójának tartalmát megismertem és tudomásul vettem.

Eladó családi ház leírása

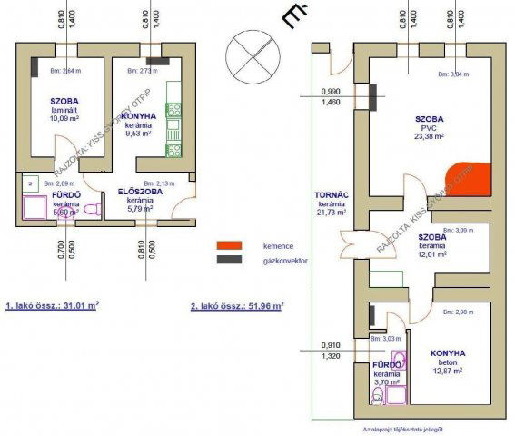
A TISZA-TAVI TISZANÁNÁN A KÖZPONTHOZ KÖZEL, EGY TELKEN KÉT LAKÓHÁZ ELADÓ, ÖSSZESEN 82,97 M2 ALAPTERÜLETTEL, 2+1 SZOBÁVAL, A TISZA-TÓTÓL 6,5 KM-RE!!! Az épületek kb. 1950-es években épültek, falazatuk nagyrészt vályog, részben tégla, födém saralt fa, tetőn cserépfedés, mindkét házban fürdőszoba (WC-vel egyben), a nagyobb ház tornácos, 51,96 m2-es, a kisebb 31,01 m2-es. 2023-ban elvégzett felújítások: ablakok és egyik bejárati ajtó cseréje műanyagra, nagyobb házban új fürdő (a felújítás nem lett befejezve), konyhabútor (még nincs beállítva), utcai kerítés, korábbi években, burkolások, kisebb házban fürdő. Elhelyezkedése miatt a lakóház ingatlanvásárlás szempontjából kitűnő választás, üdülőnek, hétvégi háznak, de akár apartmannak is megfelelő lehet, elsősorban a Tisza-tó szerelmeseinek, horgászoknak, vagy nyugalomra, pihenésre vágyóknak ajánljuk!!!
Az udvara körbekerített, új nagykapuval, rajta ásott kút, kerti csap.
Az ingatlan tulajdoni lapja tiszta (per-, teher, és igénymentes)!!!
Tiszanánán a falusi CSOK is igénybe vehető, a ház akár alkalmas is lehet rá, melynek teljes körű ügyintézését és az esetleges banki finanszírozás előkészítését díjmentesen vállaljuk!!!
Helyiségek: nagyobb ház: 2 szoba, konyha, zuhanyzós fürdő (WC-vel egyben), tornác (51,96 m2), kisebb ház: előszoba, fürdő, szoba, konyha (31,01 m2).
Fűtés: gázkonvektor.
Melegvíz: villanybojler.
Közművek: víz, villany, szennyvíz, gáz; ásott kút.
Telekterület: 1407 m2.
Közelben: központ 750 m-re, a Tisza-tó, strand, csónakkikötő 6,5 km-re.
Tiszanána rendezett, nyugodt kis település, rendelkezik a legfontosabb infrastruktúrával, van általános iskola, óvoda, posta, patika, állatorvosi rendelő, élelmiszer és egyéb üzletek, szolgáltatások, különböző vállalkozások, munkahelyek, vendégházak, strand, kikötő. A községhez tartozik az idegenforgalmi szempontból népszerű üdülőfalu, Dinnyéshát is (6,5 km, a kikötő és szabadstrand is itt). Szomszédos települések: Sarud (népszerű üdülőhely, 6 km), Kisköre (kisváros, 9 km), Abádszalók (kisváros, 23 km, a Tisza túloldalán). Poroszló 16 km-re, ahol szintén élénk az idegenforgalom, az ingatlantól az M3-as autópálya 22 km-re!!! A legközelebbi nagyobb infrastruktúrával rendelkező város Tiszafüred (26 km), ahol a távolsági busz és vonatközlekedés kiváló (pályaudvarok), továbbá: TESCO, LIDL, SPAR, Penny, szakorvosi ellátások, fizioterápiás szolgáltatások, 3 benzinkút, okmányiroda stb.
Amennyiben hirdetésem felkeltette érdeklődését, keressen bizalommal bármikor (hétvégén is!), lehetőleg a +36 30 299 74 16 telefonszámon, ha nem tudom azonnal felvenni, visszahívom, ha a számát kijelzi. További kérdéseire is készséggel válaszolok. A tiszafüredi OTP Ingatlanpont és OTP Pénzügyi Pont teljes körű ügyintézéssel áll az eladók és a vevők rendelkezésére!!! A kínálatunkból választott ingatlan finanszírozásához kedvezményes hitelkonstrukciókat kínálunk! Az adásvételi szerződés megkötéséhez - igény szerint - megbízható ügyvédi közreműködést biztosítunk, és segítséget nyújtunk az adásvételhez kapcsolódó ügyek intézéséhez, hiteligényléshez és CSOK-hoz teljes körűen (igazolások igénylése, nyomtatványok kitöltése, benyújtása, kérelem gondozása stb.).
Irányár: 14 millió Ft
Referenciaszám: M318154

Hirdetés feltöltve: 2025. 12. 10. Utoljára módosítva: 2025. 12. 10.

Az ingatlan elhelyezkedése

Cím: Tiszanána

Eladó ingatlanok a környékről

Eladó családi ház
Eladó családi ház

Tiszanána

4.9 M Ft
4 + 2 szoba
160 m2
Eladó családi ház
Eladó családi ház

Tiszanána

13.9 M Ft
2 szoba
82 m2
Eladó családi ház
Eladó családi ház

Andornaktálya

42.5 M Ft
3 szoba
115 m2
Eladó családi ház
Eladó családi ház

Egerbakta

36.5 M Ft
5 szoba
120 m2
Eladó családi ház
Eladó családi ház

Szilvásvárad

92 M Ft
4 + 1 szoba
220 m2
Eladó családi ház
Eladó családi ház

Tiszanána

4.9 M Ft
4 + 2 szoba
160 m2
Eladó családi ház
Eladó családi ház

Bükkszék

44.9 M Ft
3 + 2 szoba
114 m2
Eladó családi ház
Eladó családi ház

Tiszanána

55 M Ft
4 szoba
96 m2
Eladó családi ház
Eladó családi ház

Tiszanána

23.5 M Ft
3 szoba
77 m2
Eladó családi ház
Eladó családi ház

Bodony

23.9 M Ft
3 szoba
95 m2
Eladó családi ház
Eladó családi ház

Andornaktálya

42 M Ft
4 szoba
116 m2
Eladó családi ház
Eladó családi ház

Tiszanána

43.9 M Ft
4 szoba
135 m2
Eladó családi ház
Eladó családi ház

Bükkszék

44.9 M Ft
3 + 2 szoba
114 m2
Eladó családi ház
Eladó családi ház

Ostoros

94.5 M Ft
3 szoba
96 m2
Eladó családi ház
Eladó családi ház

Andornaktálya

28.5 M Ft
2 szoba
60 m2
Eladó családi ház
Eladó családi ház

Tiszanána

72 M Ft
5 szoba
220 m2
Eladó családi ház
Eladó családi ház

Tiszanána

23.5 M Ft
3 szoba
77 m2
Eladó családi ház
Eladó családi ház

Ostoros

94.5 M Ft
3 szoba
96 m2
Eladó családi ház
Eladó családi ház

Hatvan

97.95 M Ft
5 + 2 szoba
253 m2
Eladó családi ház
Eladó családi ház

Tiszanána

23.5 M Ft
3 szoba
80 m2
Eladó családi ház
Eladó családi ház

Tiszanána, Csokonai Vitéz Mihály út 45

3.5 M Ft
1 + 1 szoba
112 m2
Eladó családi ház
Eladó családi ház

Tiszanána

72 M Ft
5 szoba
220 m2
Eladó családi ház
Eladó családi ház

Ostoros

94.5 M Ft
3 szoba
96 m2
Eladó családi ház
Eladó családi ház

Tiszanána

34 M Ft
2 szoba
85 m2

Falusi CSOK ingatlanok

Eladó családi ház
Eladó családi ház

Dunaalmás

52.5 M Ft
3 + 1 szoba
140 m2
Eladó családi ház
Eladó családi ház

Kétegyháza

13.9 M Ft
4 szoba
140 m2
Eladó családi ház
Eladó családi ház

Háromfa, Kossuth

22.4 M Ft
139 m2
Eladó családi ház
Eladó családi ház

Onga

72.9 M Ft
4 szoba
109 m2
Eladó családi ház
Eladó családi ház

Pécsely, Szőlő Dülő

399 M Ft
4 + 2 szoba
183 m2
Eladó családi ház
Eladó családi ház

Mezőzombor

13.8 M Ft
2 + 1 szoba
81 m2
Eladó családi ház
Eladó családi ház

Nagybörzsöny

79.9 M Ft
4 szoba
149 m2
Eladó családi ház
Eladó családi ház

Bőny

67.8 M Ft
3 szoba
81 m2

Falusi CSOK ingatlanok

Eladó családi ház
Eladó családi ház

Csót

39.5 M Ft
4 szoba
123 m2
Eladó családi ház
Eladó családi ház

Kenyeri

39.9 M Ft
3 szoba
94 m2
Eladó családi ház
Eladó családi ház

Hunya

10.99 M Ft
3 szoba
80 m2
Eladó családi ház
Eladó családi ház

Tiszalúc, Alkotmány utca

7.9 M Ft
3 szoba
101 m2
Eladó családi ház
Eladó családi ház

Törtel

39 M Ft
1 + 1 szoba
118 m2
Eladó családi ház
Eladó családi ház

Kétpó

14.9 M Ft
1 + 2 szoba
86 m2
Eladó családi ház
Eladó családi ház

Nagybaracska

35 M Ft
3 szoba
110 m2
Eladó családi ház
Eladó családi ház

Hahót

64.9 M Ft
5 szoba
118 m2