Aerogate Homes

Eladó családi ház
Tiszanána

Figyelem!

Ez az ingatlan a 2019.07.01-től induló falusi CSOK által támogatott településen található

+ 17 kép 1/20
14 000 000 Ft14 M Ft 168 675 Ft/m2
2 + 1 szoba
83 m2
építés éve:1950

Részletes adatok

Állapot: Átlagos
Telekméret: 1407 m2
Fűtés: Gázkonvektor
Közmű: Víz, Gáz, Villany, Csatorna
Energetikai besorolás: Nem adta meg a hirdető
Zenga Premier

Friss hirdetések, amiket nem találsz meg más ingatlankereső portálon.

Fedezd fel elsőként a Zenga Premier címkés eladó ingatlanokat!

További részletek a zenga.hu-n

Az OTP Bank lakáshitel ajánlataFizetett hirdetés

+36 30 299
Kiss György
referens

Érdekel az OTP Bank kedvezményes lakáshitel ajánlata? *

* A kérdésre „Igen” válasz bejelölése esetén, az „Üzenet küldése” gombra kattintva kijelentem, hogy az OTP Bank Nyrt. Adatkezelési tájékoztatójának tartalmát megismertem és tudomásul vettem.

Eladó családi ház leírása

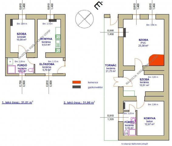
A TISZA-TAVI TISZANÁNÁN A KÖZPONTHOZ KÖZEL, EGY TELKEN KÉT LAKÓHÁZ ELADÓ, ÖSSZESEN 82,97 M2 ALAPTERÜLETTEL, 2+1 SZOBÁVAL, A TISZA-TÓTÓL 6,5 KM-RE!!! Az épületek kb. 1950-es években épültek, falazatuk nagyrészt vályog, részben tégla, födém saralt fa, tetőn cserépfedés, mindkét házban fürdőszoba (WC-vel egyben), a nagyobb ház tornácos, 51,96 m2-es, a kisebb 31,01 m2-es. 2023-ban elvégzett felújítások: ablakok és egyik bejárati ajtó cseréje műanyagra, nagyobb házban új fürdő (a felújítás nem lett befejezve), konyhabútor (még nincs beállítva), utcai kerítés, korábbi években, burkolások, kisebb házban fürdő. Elhelyezkedése miatt a lakóház ingatlanvásárlás szempontjából kitűnő választás, üdülőnek, hétvégi háznak, de akár apartmannak is megfelelő lehet, elsősorban a Tisza-tó szerelmeseinek, horgászoknak, vagy nyugalomra, pihenésre vágyóknak ajánljuk!!!
Az udvara körbekerített, új nagykapuval, rajta ásott kút, kerti csap.
Az ingatlan tulajdoni lapja tiszta (per-, teher, és igénymentes)!!!
Tiszanánán a falusi CSOK is igénybe vehető, a ház akár alkalmas is lehet rá, melynek teljes körű ügyintézését és az esetleges banki finanszírozás előkészítését díjmentesen vállaljuk!!!
Helyiségek: nagyobb ház: 2 szoba, konyha, zuhanyzós fürdő (WC-vel egyben), tornác (51,96 m2), kisebb ház: előszoba, fürdő, szoba, konyha (31,01 m2).
Fűtés: gázkonvektor.
Melegvíz: villanybojler.
Közművek: víz, villany, szennyvíz, gáz; ásott kút.
Telekterület: 1407 m2.
Közelben: központ 750 m-re, a Tisza-tó, strand, csónakkikötő 6,5 km-re.
Tiszanána rendezett, nyugodt kis település, rendelkezik a legfontosabb infrastruktúrával, van általános iskola, óvoda, posta, patika, állatorvosi rendelő, élelmiszer és egyéb üzletek, szolgáltatások, különböző vállalkozások, munkahelyek, vendégházak, strand, kikötő. A községhez tartozik az idegenforgalmi szempontból népszerű üdülőfalu, Dinnyéshát is (6,5 km, a kikötő és szabadstrand is itt). Szomszédos települések: Sarud (népszerű üdülőhely, 6 km), Kisköre (kisváros, 9 km), Abádszalók (kisváros, 23 km, a Tisza túloldalán). Poroszló 16 km-re, ahol szintén élénk az idegenforgalom, az ingatlantól az M3-as autópálya 22 km-re!!! A legközelebbi nagyobb infrastruktúrával rendelkező város Tiszafüred (26 km), ahol a távolsági busz és vonatközlekedés kiváló (pályaudvarok), továbbá: TESCO, LIDL, SPAR, Penny, szakorvosi ellátások, fizioterápiás szolgáltatások, 3 benzinkút, okmányiroda stb.
Amennyiben hirdetésem felkeltette érdeklődését, keressen bizalommal bármikor (hétvégén is!), lehetőleg a +36 30 299 74 16 telefonszámon, ha nem tudom azonnal felvenni, visszahívom, ha a számát kijelzi. További kérdéseire is készséggel válaszolok. A tiszafüredi OTP Ingatlanpont és OTP Pénzügyi Pont teljes körű ügyintézéssel áll az eladók és a vevők rendelkezésére!!! A kínálatunkból választott ingatlan finanszírozásához kedvezményes hitelkonstrukciókat kínálunk! Az adásvételi szerződés megkötéséhez - igény szerint - megbízható ügyvédi közreműködést biztosítunk, és segítséget nyújtunk az adásvételhez kapcsolódó ügyek intézéséhez, hiteligényléshez és CSOK-hoz teljes körűen (igazolások igénylése, nyomtatványok kitöltése, benyújtása, kérelem gondozása stb.).
Irányár: 14 millió Ft
Referenciaszám: M318154

Hirdetés feltöltve: 2025. 11. 25.

Az ingatlan elhelyezkedése

Cím: Tiszanána

Eladó családi házak a környékről

Eladó családi ház
Eladó családi ház

Eger, Felsőváros

159 M Ft
5 szoba
205 m2
Eladó családi ház
Eladó családi ház

Ostoros

94.5 M Ft
3 szoba
96 m2
Eladó családi ház
Eladó családi ház

Ostoros

94.5 M Ft
3 szoba
96 m2
Eladó családi ház
Eladó családi ház

Ostoros

94.5 M Ft
3 szoba
96 m2
Eladó családi ház
Eladó családi ház

Pétervására

4.5 M Ft
3 szoba
85 m2
Eladó családi ház
Eladó családi ház

Andornaktálya

28.5 M Ft
2 szoba
60 m2
Eladó családi ház
Eladó családi ház

Bükkszék

78.9 M Ft
2 + 1 szoba
160 m2
Eladó családi ház
Eladó családi ház

Gyöngyös

28.5 M Ft
1 + 1 szoba
62 m2
Eladó családi ház
Eladó családi ház

Tiszanána

19.9 M Ft
3 szoba
94 m2
Eladó családi ház
Eladó családi ház

Tiszanána

32 M Ft
4 szoba
105 m2
Eladó családi ház
Eladó családi ház

Tiszanána

72 M Ft
5 szoba
220 m2
Eladó családi ház
Eladó családi ház

Tiszanána

72 M Ft
5 szoba
220 m2
Eladó családi ház
Eladó családi ház

Tiszanána

32 M Ft
4 szoba
105 m2
Eladó családi ház
Eladó családi ház

Tiszanána

13.9 M Ft
3 szoba
105 m2
Eladó családi ház
Eladó családi ház

Bükkszék

44.9 M Ft
3 + 2 szoba
114 m2
Eladó családi ház
Eladó családi ház

Szilvásvárad

92 M Ft
4 + 1 szoba
220 m2
Eladó családi ház
Eladó családi ház

Tiszanána

13.9 M Ft
2 szoba
82 m2
Eladó családi ház
Eladó családi ház

Mátraszentimre

250 M Ft
8 szoba
300 m2
Eladó családi ház
Eladó családi ház

Tiszanána

34 M Ft
2 szoba
85 m2
Eladó családi ház
Eladó családi ház

Tiszanána

49 M Ft
4 szoba
180 m2
Eladó családi ház
Eladó családi ház

Tiszanána

28.5 M Ft
3 szoba
133 m2
Eladó családi ház
Eladó családi ház

Tiszanána

10.75 M Ft
2 szoba
63 m2
Eladó családi ház
Eladó családi ház

Tiszanána

20.5 M Ft
2 szoba
67 m2
Eladó családi ház
Eladó családi ház

Tiszanána

28.5 M Ft
3 szoba
133 m2

Falusi CSOK ingatlanok

Eladó családi ház
Eladó családi ház

Mályi

84.9 M Ft
4 szoba
100 m2
Eladó családi ház
Eladó családi ház

Nagybörzsöny

36 M Ft
2 + 1 szoba
74 m2
Eladó családi ház
Eladó családi ház

Zengővárkony

35 M Ft
3 szoba
87 m2
Eladó családi ház
Eladó családi ház

Galgahévíz

188 M Ft
4 szoba
125 m2
Eladó családi ház
Eladó családi ház

Vácegres

279.9 M Ft
6 szoba
194 m2
Eladó családi ház
Eladó családi ház

Tésenfa, Kossuth utca 23/a

5.55 M Ft
1 + 1 szoba
109 m2
Eladó ikerház
Eladó ikerház

Seregélyes

39.9 M Ft
4 szoba
150 m2
Eladó családi ház
Eladó családi ház

Szabadbattyán

136 M Ft
5 szoba
226 m2

Falusi CSOK ingatlanok

Eladó családi ház
Eladó családi ház

Nádasd

84.9 M Ft
4 szoba
143 m2
Eladó családi ház
Eladó családi ház

Pölöskefő

19.9 M Ft
2 szoba
96 m2
Eladó családi ház
Eladó családi ház

Csemő, Vasút dűlő

20.9 M Ft
3 szoba
68 m2
Eladó családi ház
Eladó családi ház

Tápiógyörgye

33 M Ft
3 + 2 szoba
140 m2
Eladó családi ház
Eladó családi ház

Zengővárkony

35 M Ft
3 szoba
87 m2
Eladó családi ház
Eladó családi ház

Pápateszér

28.99 M Ft
4 + 1 szoba
151 m2
Eladó családi ház
Eladó családi ház

Vácegres

279.9 M Ft
6 szoba
194 m2
Eladó családi ház
Eladó családi ház

Gyömöre

45.99 M Ft
2 szoba
118 m2