Astora Olive Club House

Eladó családi ház
Tiszalúc

Figyelem!

Ez az ingatlan a 2019.07.01-től induló falusi CSOK által támogatott településen található

+ 17 kép 1/20
19 320 000 Ft19.32 M Ft 201 250 Ft/m2
2 + 2 szoba
96 m2

Részletes adatok

Állapot: Átlagos
Telekméret: 689 m2
Fűtés: Gázkazán
Energetikai besorolás: Nem adta meg a hirdető

Az OTP Bank lakáshitel ajánlataFizetett hirdetés

+36 20 447
Takács Alán
referens

Érdekel az OTP Bank kedvezményes lakáshitel ajánlata? *

* A kérdésre „Igen” válasz bejelölése esetén, az „Üzenet küldése” gombra kattintva kijelentem, hogy az OTP Bank Nyrt. Adatkezelési tájékoztatójának tartalmát megismertem és tudomásul vettem.

Eladó családi ház leírása

Tiszalúc központjában, Széchenyi utcában, többfelé célra alkalmas, 95.80 m²-es földhivatali nyilvántartásban "kivett takarékszövetkezet"-ként nyilvántartott ingatlan, 689 m²-es telekkel eladó!
Ár: 19.320.000, -Ft+Áfa

Műszaki leírás:
2001-ben épült, földszint tagolódású, tégla falszerekezetű épület. Födém vasbeton gerendás, tetőformája, sátortető, cserepes lemez fedéssel. Homlokzata vakolt színezet a lábazaton dísztégla burkolat látható. Homlokzati nyílászárói műanyag szerkezetű ablakok, hőszigetelt üvegezéssel. Fűtését és melegvíz-ellátását kombi gázkazán biztosítja, radiátor hőleadókkal.

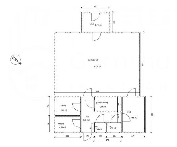
Helyiség lista:
- Előtér
- Ügyféltér
- Közlekedő
- Tároló
- Konyha
- 2db WC.
- Iroda
- Páncélszekrény

Környezet:
Település központi, oktatási intézmény és kereskedelmi célú
ingatlanokkal, lakóházakkal szomszédos.

Közlekedés:
Aszfaltozott úton megközelíthető
Tömegközlekedés buszmegálló 50m

Hirdetés feltöltve: 2026. 01. 21.

Az ingatlan elhelyezkedése

Cím: Tiszalúc

Eladó ingatlanok a környékről

Eladó családi ház
Eladó családi ház

Miskolc

69.89 M Ft
3 szoba
600 m2
Eladó családi ház
Eladó családi ház

Taktaszada, Thököly utca

37 M Ft
4 + 1 szoba
190 m2
Eladó családi ház
Eladó családi ház

Miskolc

110 M Ft
6 szoba
199 m2
Eladó családi ház
Eladó családi ház

Ózd, Ráctag, Honvéd utca

22 M Ft
6 szoba
200 m2
Eladó családi ház
Eladó családi ház

Tiszalúc

47.9 M Ft
6 szoba
200 m2
Eladó családi ház
Eladó családi ház

Tiszalúc

5.5 M Ft
3 szoba
78 m2
Eladó családi ház
Eladó családi ház

Ózd

25.99 M Ft
4 szoba
198 m2
Eladó családi ház
Eladó családi ház

Miskolc

25.9 M Ft
4 szoba
148 m2
Eladó családi ház
Eladó családi ház

Miskolc

25.9 M Ft
4 szoba
148 m2
Eladó panellakás
Eladó panellakás

Miskolc, Avas Dél városrész, Hajós Alfréd utca

27.9 M Ft
1 + 1 szoba
37 m2
Eladó családi ház
Eladó családi ház

Edelény

31.5 M Ft
2 szoba
75 m2
Eladó családi ház
Eladó családi ház

Szikszó

89.9 M Ft
3 szoba
100 m2
Eladó családi ház
Eladó családi ház

Abaújszántó

14 M Ft
3 + 1 szoba
90 m2
Eladó családi ház
Eladó családi ház

Szentistvánbaksa

18 M Ft
2 + 1 szoba
92 m2
Eladó családi ház
Eladó családi ház

Tiszalúc, Alkotmány utca

16.9 M Ft
4 szoba
137 m2
Eladó téglalakás
Eladó téglalakás

Kazincbarcika

20.99 M Ft
1 + 1 szoba
36 m2
Eladó családi ház
Eladó családi ház

Nemesbikk, Kossuth utca 3

4.5 M Ft
2 szoba
80 m2
Eladó panellakás
Eladó panellakás

Tiszaújváros

28.99 M Ft
2 szoba
55 m2
Eladó családi ház
Eladó családi ház

Tarcal

19.9 M Ft
3 szoba
110 m2
Eladó családi ház
Eladó családi ház

Ózd

13 M Ft
5 szoba
150 m2
Eladó családi ház
Eladó családi ház

Tiszalúc, Alkotmány utca

7.5 M Ft
3 szoba
101 m2
Eladó családi ház
Eladó családi ház

Tiszalúc, Mátyás király út 24

7.2 M Ft
1 + 1 szoba
75 m2
Eladó panellakás
Eladó panellakás

Miskolc, Belváros, Tizeshonvéd utca

38.5 M Ft
3 szoba
55 m2
Eladó családi ház
Eladó családi ház

Gönc

20.5 M Ft
2 szoba
80 m2

Falusi CSOK ingatlanok

Eladó családi ház
Eladó családi ház

Homokmégy

15.9 M Ft
2 + 1 szoba
78 m2
Eladó családi ház
Eladó családi ház

Pécsvárad

85 M Ft
4 szoba
100 m2
Eladó családi ház
Eladó családi ház

Fülöpszállás

299 M Ft
14 + 5 szoba
680 m2
Eladó családi ház
Eladó családi ház

Acsalag

47 M Ft
3 szoba
140 m2
Eladó családi ház
Eladó családi ház

Nagyhegyes

45.7 M Ft
2 szoba
55 m2
Eladó családi ház
Eladó családi ház

Szakmár

12.9 M Ft
3 + 1 szoba
90 m2
Eladó családi ház
Eladó családi ház

Berzence

40 M Ft
3 szoba
233 m2
Eladó családi ház
Eladó családi ház

Bugac

34.4 M Ft
3 szoba
70 m2

Falusi CSOK ingatlanok

Eladó családi ház
Eladó családi ház

Tiszatenyő

13.99 M Ft
2 szoba
63 m2
Eladó családi ház
Eladó családi ház

Balatonszárszó

178 M Ft
6 szoba
260 m2
Eladó családi ház
Eladó családi ház

Berzence

40 M Ft
3 szoba
233 m2
Eladó családi ház
Eladó családi ház

Újlengyel

108 M Ft
3 szoba
80 m2
Eladó családi ház
Eladó családi ház

Nyékládháza, Mátyás király utca

34.9 M Ft
2 szoba
88 m2
Eladó családi ház
Eladó családi ház

Mikebuda

55 M Ft
2 szoba
90 m2
Eladó családi ház
Eladó családi ház

Látrány

48 M Ft
5 szoba
120 m2
Eladó családi ház
Eladó családi ház

Törtel

39 M Ft
1 + 1 szoba
118 m2