BAM Living

Eladó családi ház
Tengelic

Figyelem!

Ez az ingatlan a 2019.07.01-től induló falusi CSOK által támogatott településen található

+ 17 kép 1/20
21 000 000 Ft21 M Ft 318 182 Ft/m2
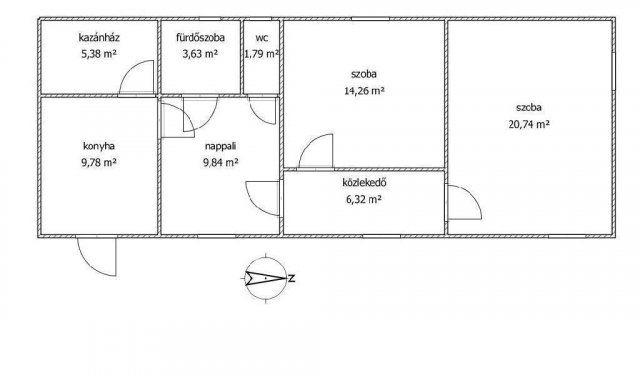
3 szoba
66 m2
építés éve:1960

Részletes adatok

Állapot: Átlagos
Telekméret: 3638 m2
Fűtés: Házközponti
Energetikai besorolás: Nem adta meg a hirdető

Az OTP Bank lakáshitel ajánlataFizetett hirdetés

+36 70 633
Rikkers Katalin
referens

Érdekel az OTP Bank kedvezményes lakáshitel ajánlata? *

* A kérdésre „Igen” válasz bejelölése esetén, az „Üzenet küldése” gombra kattintva kijelentem, hogy az OTP Bank Nyrt. Adatkezelési tájékoztatójának tartalmát megismertem és tudomásul vettem.

Eladó családi ház leírása

2 szobás, nappalis ház eladó Tengelicen a szőlőhegyen!
3638 négyzetméter sík terület tartozik hozzá, amely 2 részből áll. 1251 négyzetméter, amin a ház áll garázsokkal, és közvetlenül mellette 2387 négyzetméter művelési ág alól kivett beépítetlen terület.
A ház kívülről, belül jó állapotban van, egyes részekre ráfér egy kis felújítás. Központi fűtése van, egy vegystüzelésű kazánnal. A gázcsonk, az udvarban a kerítésen belül van. Víz, szennyvíz, villany van a házban.
Megközelíteni a Dózsa György utca felől lehet. Kellemes csendes helyen van.
Bankcsoportunk, Magyarország piacvezető pénzintézete 73 év szakértelemmel áll érdeklődő Ügyfeleink rendelkezésére. Használja ki a még elérhető családtámogatási rendszert és legyen kedvező feltételek mellett a kínált lakás tulajdonosa. Teljes körű szolgáltatást nyújtunk: pénzügyi tanácsadás, magánszemélyeknek és vállalkozásoknak, állami támogatások igénylése, bérbeadás, fenntartás, tovább értékesítés.
Hívjon fel, hogy a fejlesztés elemzése során elkészített anyagainkat megoszthassuk Önnel!
Referenciaszám: M282634

Hirdetés feltöltve: 2025. 10. 11. Utoljára módosítva: 2026. 01. 13.

Az ingatlan elhelyezkedése

Cím: Tengelic

Eladó ingatlanok a környékről

Eladó családi ház
Eladó családi ház

Paks

21.9 M Ft
2 szoba
70 m2
Eladó családi ház
Eladó családi ház

Tengelic

18 M Ft
3 szoba
116 m2
Eladó üzlethelyiség
Eladó üzlethelyiség

Szekszárd

135 M Ft
1316 m²
252 m2
Eladó családi ház
Eladó családi ház

Tengelic

25.9 M Ft
3 szoba
140 m2
Eladó családi ház
Eladó családi ház

Dunaszentgyörgy

10.8 M Ft
3 szoba
65 m2
Eladó családi ház
Eladó családi ház

Tengelic, Arany János utca

30.9 M Ft
4 szoba
100 m2
Eladó családi ház
Eladó családi ház

Tengelic

18 M Ft
3 szoba
116 m2
Eladó családi ház
Eladó családi ház

Paks

60 M Ft
4 szoba
120 m2
Eladó családi ház
Eladó családi ház

Paks, Hidegvölgy utca

26.9 M Ft
3 szoba
89 m2
Eladó üzlethelyiség
Eladó üzlethelyiség

Dombóvár, Hunyadi tér

33 M Ft
40 m2
Eladó családi ház
Eladó családi ház

Bikács, Kossuth Lajos utca

129.277 M Ft
6 szoba
450 m2
Eladó családi ház
Eladó családi ház

Tamási

95 M Ft
6 + 1 szoba
180 m2
Eladó panellakás
Eladó panellakás

Szekszárd, Belváros, Béri Balogh Ádám utca

32 M Ft
2 szoba
40 m2
Eladó családi ház
Eladó családi ház

Hőgyész

35.5 M Ft
7 szoba
180 m2
Eladó családi ház
Eladó családi ház

Paks

21.9 M Ft
2 szoba
70 m2
Eladó családi ház
Eladó családi ház

Paks

20 M Ft
3 szoba
88 m2
Eladó családi ház
Eladó családi ház

Szekszárd

33.99 M Ft
4 szoba
81 m2
Eladó családi ház
Eladó családi ház

Bátaszék, Deák Ferenc utca

40 M Ft
8 szoba
271 m2
Eladó családi ház
Eladó családi ház

Paks

46.9 M Ft
3 szoba
81 m2
Eladó családi ház
Eladó családi ház

Tengelic, Külterület

34.9 M Ft
6 szoba
152 m2
Eladó panellakás
Eladó panellakás

Szekszárd, Bottyánhegy, Hermann Ottó utca 2

29 M Ft
1 + 1 szoba
46 m2
Eladó családi ház
Eladó családi ház

Iregszemcse

13.3 M Ft
2 szoba
66 m2
Eladó családi ház
Eladó családi ház

Tengelic

18 M Ft
3 szoba
116 m2
Eladó családi ház
Eladó családi ház

Tengelic

21 M Ft
3 szoba
66 m2

Falusi CSOK ingatlanok

Eladó családi ház
Eladó családi ház

Balatonszárszó

178 M Ft
6 szoba
260 m2
Eladó családi ház
Eladó családi ház

Szólád

99.9 M Ft
6 + 1 szoba
245 m2
Eladó családi ház
Eladó családi ház

Hercegszántó

7 M Ft
3 szoba
120 m2
Eladó családi ház
Eladó családi ház

Pusztamonostor

22 M Ft
3 szoba
86 m2
Eladó családi ház
Eladó családi ház

Balatonfőkajár

38.5 M Ft
2 szoba
64 m2
Eladó családi ház
Eladó családi ház

Cece

23.5 M Ft
3 szoba
66 m2
Eladó családi ház
Eladó családi ház

Nagyhegyes

47.9 M Ft
2 szoba
72 m2
Eladó családi ház
Eladó családi ház

Kislippó

16 M Ft
3 szoba
100 m2

Falusi CSOK ingatlanok

Eladó családi ház
Eladó családi ház

Kislippó

16 M Ft
3 szoba
100 m2
Eladó családi ház
Eladó családi ház

Szólád

99.9 M Ft
6 + 1 szoba
245 m2
Eladó családi ház
Eladó családi ház

Magyarszék

48.5 M Ft
3 + 1 szoba
86 m2
Eladó családi ház
Eladó családi ház

Gasztony

29.4 M Ft
2 szoba
83 m2
Eladó családi ház
Eladó családi ház

Erdősmárok

69 M Ft
6 szoba
140 m2
Eladó családi ház
Eladó családi ház

Döröske

103.912 M Ft
3 szoba
114 m2
Eladó családi ház
Eladó családi ház

Balatonszárszó

178 M Ft
6 szoba
260 m2
Eladó családi ház
Eladó családi ház

Ceglédbercel

67 M Ft
4 szoba
165 m2