River Life

Eladó családi ház
Téglás

+ 1 kép 1/4
75 500 000 Ft75.5 M Ft 811 828 Ft/m2
4 szoba
93 m2
építés éve:2025

Részletes adatok

Telekméret: 600 m2
Fűtés: Gázkazán
Közmű: Gáz, Villany, Csatorna
Energetikai besorolás: Nem adta meg a hirdető

Az OTP Bank lakáshitel ajánlataFizetett hirdetés

+36 70 465
Dankos Andrea
referens

Érdekel az OTP Bank kedvezményes lakáshitel ajánlata? *

* A kérdésre „Igen” válasz bejelölése esetén, az „Üzenet küldése” gombra kattintva kijelentem, hogy az OTP Bank Nyrt. Adatkezelési tájékoztatójának tartalmát megismertem és tudomásul vettem.

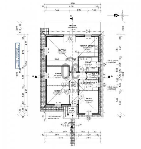
Eladó családi ház leírása

Új építésű, modern családi házat keres egy nyugodt, de dinamikusan fejlődő környéken? Téglás kertvárosi részén, egy új házakkal beépülő utcában várja Önt egy korszerű, energiatakarékos otthon, amely 2026 tavaszán már birtokba vehető.

Az egyszintes, 93 m²-es családi ház átgondolt alaprajzzal készül:
- tágas nappali (25 m²)
- külön konyha-étkező (10,8 m²)
- három kényelmes hálószoba
- fürdőszoba és külön WC
- praktikus mosókonyha

A nappali közvetlen kijárattal kapcsolódik a 17 m²-es teraszhoz, amely a mindennapok kényelmét szolgálja. A 603 m²-es telek bőséges lehetőséget kínál kert, játszótér vagy pihenőterület kialakítására.

Korszerű, energiatakarékos megoldások:
- gáz-cirkós fűtés padlófűtéssel
- 4 db hőszivattyús klíma (a nappaliban és mindhárom hálószobában)
- 3 rétegű hőszigetelt nyílászárók, elektromos redőnyök
- 15 cm vastag szigetelés, amely alacsony rezsit garantál
- 6 kW napelem rendszer a fenntartható energiaellátásért, inverterrel 11kW-ig fejleszhető
- 2,7 méteres belmagasság, amely világos és tágas tereket biztosít
- két autó beállási lehetősége a telken belül

Ez az otthon hosszú távon kényelmes, fenntartható és biztonságos választás, egy olyan utcában, ahol sorra épülnek az új házak, így egy egészen új, barátságos lakókörnyezet formálódik.

Ha Ön is egy új, alacsony fenntartású és korszerű otthont szeretne Téglás egyik leggyorsabban fejlődő utcájában, keressen minket bizalommal a részletekért!

Hirdetés feltöltve: 2025. 10. 09. Utoljára módosítva: 2025. 12. 23.

Az ingatlan elhelyezkedése

Cím: Téglás

Eladó családi házak a környékről

Eladó családi ház
Eladó családi ház

Téglás

67.9 M Ft
2 szoba
100 m2
Eladó családi ház
Eladó családi ház

Téglás

91 M Ft
3 + 1 szoba
119 m2
Eladó családi ház
Eladó családi ház

Téglás

18 M Ft
1 szoba
31 m2
Eladó családi ház
Eladó családi ház

Hajdúszoboszló

8.49 M Ft
1 szoba
24 m2
Eladó családi ház
Eladó családi ház

Hajdúböszörmény

99 M Ft
2 + 1 szoba
142 m2
Eladó családi ház
Eladó családi ház

Püspökladány

49.8 M Ft
5 szoba
150 m2
Eladó családi ház
Eladó családi ház

Téglás

37.5 M Ft
3 szoba
70 m2
Eladó családi ház
Eladó családi ház

Hajdúszoboszló

99 M Ft
5 + 1 szoba
160 m2
Eladó családi ház
Eladó családi ház

Balmazújváros

104.9 M Ft
3 szoba
172 m2
Eladó családi ház
Eladó családi ház

Debrecen

13.9 M Ft
2 szoba
56 m2
Eladó családi ház
Eladó családi ház

Téglás

33.5 M Ft
2 szoba
70 m2
Eladó családi ház
Eladó családi ház

Debrecen

105 M Ft
3 szoba
120 m2
Eladó családi ház
Eladó családi ház

Hajdúszoboszló

49.9 M Ft
5 szoba
160 m2
Eladó családi ház
Eladó családi ház

Téglás

37.5 M Ft
3 szoba
70 m2
Eladó családi ház
Eladó családi ház

Püspökladány

59.6 M Ft
4 szoba
165 m2
Eladó családi ház
Eladó családi ház

Hajdúdorog, Templom utca

95 M Ft
9 szoba
270 m2
Eladó családi ház
Eladó családi ház

Téglás

87.9 M Ft
4 szoba
103 m2
Eladó családi ház
Eladó családi ház

Téglás

37.5 M Ft
3 szoba
70 m2
Eladó családi ház
Eladó családi ház

Téglás

69.9 M Ft
3 szoba
204 m2
Eladó családi ház
Eladó családi ház

Debrecen, Haláp Tanya

361.95 M Ft
10 szoba
500 m2
Eladó családi ház
Eladó családi ház

Debrecen

150 M Ft
7 szoba
300 m2
Eladó családi ház
Eladó családi ház

Téglás

67.9 M Ft
2 szoba
100 m2
Eladó családi ház
Eladó családi ház

Téglás

37.5 M Ft
3 szoba
70 m2
Eladó családi ház
Eladó családi ház

Debrecen, Lencztelep, Szeged utca

129.9 M Ft
7 szoba
240 m2

Falusi CSOK ingatlanok

Eladó családi ház
Eladó családi ház

Táborfalva

59.9 M Ft
3 szoba
84 m2
Eladó családi ház
Eladó családi ház

Kétegyháza

24.9 M Ft
3 + 1 szoba
136 m2
Eladó családi ház
Eladó családi ház

Magyarszék

48.5 M Ft
3 + 1 szoba
86 m2
Eladó családi ház
Eladó családi ház

Újkígyós

11.99 M Ft
2 szoba
77 m2
Eladó családi ház
Eladó családi ház

Vasszécseny

20 M Ft
2 szoba
139 m2
Eladó családi ház
Eladó családi ház

Nagyberki

39.9 M Ft
5 szoba
170 m2
Eladó családi ház
Eladó családi ház

Szigetcsép

109.9 M Ft
3 szoba
77 m2
Eladó családi ház
Eladó családi ház

Szentistván

31 M Ft
3 szoba
140 m2