Seven Pearl

Eladó családi ház
Tatabánya

+ 3 kép 1/6
89 900 000 Ft89.9 M Ft 936 458 Ft/m2
4 szoba
96 m2
építés éve:2026

Részletes adatok

Fűtés: Egyéb
Energetikai besorolás: Nem adta meg a hirdető

Az OTP Bank lakáshitel ajánlataFizetett hirdetés

+36 30 903
Menczer Klára
Feel-Ing Ingatlaniroda

Érdekel az OTP Bank kedvezményes lakáshitel ajánlata? *

* A kérdésre „Igen” válasz bejelölése esetén, az „Üzenet küldése” gombra kattintva kijelentem, hogy az OTP Bank Nyrt. Adatkezelési tájékoztatójának tartalmát megismertem és tudomásul vettem.

Eladó családi ház leírása

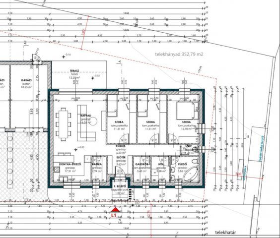
Tatabánya "Rózsadombján" csendes, barátságos utcában kínálunk megvételre egy új építésű környezetben elhelyezkedő, kiváló adottságú láncházi lakást.
Az ingatlan modern, élhető elosztással rendelkezik: három külön nyíló hálószoba, amerikai konyhás nappali, gépészeti helyiség, vendég WC, kamra, fürdőszoba, valamint egy nagy méretű terasz szolgálja a mindennapi kényelmet.
A 353 nm-es, önálló kert ideális pihenéshez, családi programokhoz.
Műszaki tartalma kiemelkedő:
- hőszivattyús padlófűtés,
- a nappaliban és az egyik hálószobában fan-coil előkészítés,
- Porotherm 30-as tégla falazat,
- 16 cm vastag EPS homlokzati hőszigetelés.
A kivitelezés minőségi anyagokkal történt, az ingatlan kulcsrakész állapotban, 1–2 hónapon belül birtokba vehető.
Az elhelyezkedés és az elosztás miatt befektetők számára is kiváló választás, ugyanakkor tágas terei és kertkapcsolata révén nagycsaládosok számára is ideális otthon lehet.
A lakópark elektromos sorompóval felszerelve kerül átadásra, minden lakáshoz önálló, elektromos kapuval felszerelt 18,65nm-es garázs (egyben tároló) tartozik.
Az ár kimondottan kedvező a környék adottságaihoz és az ingatlan műszaki színvonalához képest.
Amennyiben egy értékálló, modern otthont keres Tatabánya egyik legjobb részén, ez az ingatlan mindenképpen megér egy személyes megtekintést.
A Feel-Ing Ingatlaniroda teljes körű, bankfüggetlen hitelügyintézéssel, jogi háttérrel és több mint 20 éves szakmai tapasztalattal segíti Önt a biztonságos vásárlásban.

Hirdetés feltöltve: 2026. 02. 05. Utoljára módosítva: 2026. 02. 05.

4 szobás családi házak ára Tatabányán

Ebből az összehasonlításból megtudhatod, hogyan viszonyul a lakás ára a környékbeli családi házak átlagos árához. Ez nem azt jelenti, hogy ennyivel olcsóbb vagy drágább, mint amennyit a lakás ér, hanem hogy ennyivel tér el a környékbeli átlagtól.

Ennek a m² ára
Tatabánya m² ár
936 e Ft
612 e Ft -53%
Ennek az ára
Tatabánya átlagár
89.9 M Ft m Ft
76.9 m Ft -17%

Az ingatlan elhelyezkedése

Cím: Tatabánya

Eladó családi házak a környékről

Eladó családi ház
Eladó családi ház

Tatabánya

149.9 M Ft
8 szoba
272 m2
Eladó családi ház
Eladó családi ház

Tatabánya

49.091 M Ft
4 szoba
113 m2
Eladó családi ház
Eladó családi ház

Nagyigmánd

129 M Ft
4 + 1 szoba
163 m2
Eladó családi ház
Eladó családi ház

Oroszlány

360 M Ft
27 szoba
478 m2
Eladó családi ház
Eladó családi ház

Pilismarót

33 M Ft
3 szoba
86 m2
Eladó családi ház
Eladó családi ház

Tatabánya

140 M Ft
5 szoba
150 m2
Eladó családi ház
Eladó családi ház

Tatabánya

127.89 M Ft
39074 m²
Eladó családi ház
Eladó családi ház

Tatabánya

89.9 M Ft
6 szoba
275 m2
Eladó családi ház
Eladó családi ház

Szomód

65 M Ft
6 szoba
240 m2
Eladó családi ház
Eladó családi ház

Tatabánya

180 M Ft
8 szoba
510 m2
Eladó családi ház
Eladó családi ház

Tatabánya

128 M Ft
5 szoba
154 m2
Eladó családi ház
Eladó családi ház

Komárom

38.542 M Ft
1 + 1 szoba
43 m2
Eladó családi ház
Eladó családi ház

Esztergom

124 M Ft
8 szoba
298 m2
Eladó családi ház
Eladó családi ház

Tatabánya

98 M Ft
3 szoba
90 m2
Eladó családi ház
Eladó családi ház

Tatabánya

63.183 M Ft
4 szoba
145 m2
Eladó családi ház
Eladó családi ház

Esztergom

128 M Ft
6 szoba
240 m2
Eladó családi ház
Eladó családi ház

Vértesszőlős

15.99 M Ft
2 szoba
80 m2
Eladó családi ház
Eladó családi ház

Tatabánya

127.89 M Ft
39074 m²
Eladó családi ház
Eladó családi ház

Tatabánya, Alsógalla

57 M Ft
4 + 1 szoba
205 m2
Eladó családi ház
Eladó családi ház

Tatabánya

132 M Ft
5 szoba
180 m2
Eladó családi ház
Eladó családi ház

Komárom

64.863 M Ft
3 szoba
73 m2
Eladó családi ház
Eladó családi ház

Tatabánya

14.5 M Ft
2 szoba
49 m2
Eladó családi ház
Eladó családi ház

Tatabánya

67 M Ft
3 szoba
120 m2
Eladó családi ház
Eladó családi ház

Nyergesújfalu

59.9 M Ft
3 szoba
92 m2

Falusi CSOK ingatlanok

Eladó családi ház
Eladó családi ház

Dunaszekcső

12.5 M Ft
3 szoba
110 m2
Eladó családi ház
Eladó családi ház

Bugac

55 M Ft
3 szoba
90 m2
Eladó családi ház
Eladó családi ház

Véménd

81.9 M Ft
3 szoba
150 m2
Eladó családi ház
Eladó családi ház

Pusztamonostor

22 M Ft
3 szoba
86 m2
Eladó családi ház
Eladó családi ház

Magyarpolány

90 M Ft
2 szoba
70 m2
Eladó családi ház
Eladó családi ház

Illocska

15 M Ft
2 szoba
105 m2
Eladó családi ház
Eladó családi ház

Sumony

19 M Ft
4 szoba
120 m2
Eladó családi ház
Eladó családi ház

Alattyán

8.5 M Ft
1 + 1 szoba
70 m2