Oasis Residence

Eladó családi ház
Tárnok

+ 17 kép 1/20
109 000 000 Ft109 M Ft 567 708 Ft/m2
5 szoba
192 m2
építés éve:1997

Részletes adatok

Telekméret: 1053 m2
Fűtés: Gázkazán
Energetikai besorolás: Nem adta meg a hirdető

Az OTP Bank lakáshitel ajánlataFizetett hirdetés

+36 70 237
Zatykó Krisztina
Budapest XI. kerület OTP Ingatlanpont

Érdekel az OTP Bank kedvezményes lakáshitel ajánlata? *

* A kérdésre „Igen” válasz bejelölése esetén, az „Üzenet küldése” gombra kattintva kijelentem, hogy az OTP Bank Nyrt. Adatkezelési tájékoztatójának tartalmát megismertem és tudomásul vettem.

Eladó családi ház leírása

CSALÁDI HÁZAT KERES, AMI A FŐVÁROSTÓL MINDÖSSZE 20km-EN BELÜL ELÉRHETŐ?
FELHÍVOM FIGYELMÉT ERRE AZ ELADÓ TÁRNOKON TALÁLHATÓ, SAROK TELKEN LÉVŐ CSALÁDI HÁZRA!

Két generáció együttélésére vagy lakásnak és üzleti tevékenységnek egyaránt megfelel .
Sarok teleknek köszönhetően kettő nagykapun és egy kiskapun is be tudunk jutni az udvarba.
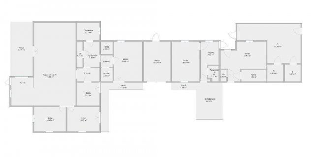
Az ingatlan első része 160nm-es, terasz 22nm, Amerikai-konyhás nappali 71nm, 3 szobás 14/14/20nm, lakás, majd egy aknás garázs 19nm, egy 32nm-es 1 szobás összkomfortos apartman, és a 72nm-en különböző méretű tárolókat, műhelyet találunk aminek egyikében wc és tusoló is kialakított.
A körbekerített sík udvarban a következőket láthatjuk. Hangulatos kerti fedett terasz, épített kemence, bográcsozó, kis halastó, melegház, gyümölcsös, autóbeálló és egy gépészetileg működő képes medence, aminek vázfala felújítást igényel.

Rövid műszaki ismertető:
Telek 1053nm,
1990-es évek végén épült, falazata ytong tégla,
7cm dryvit szigetelt az épület, gáz-cirkó padlófűtéses, tető szigetelt, cserepeslemez fedésű. Kerítése fa és lemezes. Kaputelefon, víztísztító berendezés van.
Nyílászárok fa hőszigetelt üveg, helyiségek járólappal burkoltak, mennyezet fa gerenda fedésű.

Tárnok Pest megye egyik legkedveltebb települése kiváló infrastruktúrája miatt.
M6- M7-es autópálya, iskola, óvodák, egészségház, vasútállomás, bevásárlási lehetőség percek alatt elérhető. M294787

Referencia szám: M294787

Hirdetés feltöltve: 2025. 12. 06. Utoljára módosítva: 2025. 12. 06.

5 szobás családi házak ára Tárnokon

Ebből az összehasonlításból megtudhatod, hogyan viszonyul a lakás ára a környékbeli családi házak átlagos árához. Ez nem azt jelenti, hogy ennyivel olcsóbb vagy drágább, mint amennyit a lakás ér, hanem hogy ennyivel tér el a környékbeli átlagtól.

Ennek a m² ára
Tárnok m² ár
568 e Ft
701 e Ft 19%
Ennek az ára
Tárnok átlagár
109 M Ft m Ft
131.3 m Ft 17%

Az ingatlan elhelyezkedése

Cím: Tárnok

Eladó családi házak a környékről

Eladó családi ház
Eladó családi ház

Budakeszi, Makkosmária

100 M Ft
1 szoba
10 m2
Eladó családi ház
Eladó családi ház

Tárnok

129 M Ft
5 szoba
190 m2
Eladó családi ház
Eladó családi ház

Tárnok

149.9 M Ft
4 szoba
255 m2
Eladó családi ház
Eladó családi ház

Tápiógyörgye

19.9 M Ft
3 szoba
65 m2
Eladó családi ház
Eladó családi ház

Remeteszőlős

399.9 M Ft
5 + 2 szoba
260 m2
Eladó családi ház
Eladó családi ház

Tárnok

97.99 M Ft
4 szoba
92 m2
Eladó családi ház
Eladó családi ház

Tárnok

79.9 M Ft
4 szoba
106 m2
Eladó családi ház
Eladó családi ház

Tápiószentmárton

7.9 M Ft
2 + 1 szoba
86 m2
Eladó családi ház
Eladó családi ház

Tárnok, Vörösmarty Mihály utca

109.901 M Ft
6 szoba
170 m2
Eladó családi ház
Eladó családi ház

Budaörs, Városközpont utca

119.5 M Ft
5 + 1 szoba
140 m2
Eladó családi ház
Eladó családi ház

Tápiószentmárton

48 M Ft
5 szoba
180 m2
Eladó családi ház
Eladó családi ház

Kerepes

199 M Ft
6 szoba
360 m2
Eladó családi ház
Eladó családi ház

Tárnok, Zapánszki út

104.9 M Ft
5 szoba
241 m2
Eladó családi ház
Eladó családi ház

Dunavarsány

69.9 M Ft
3 + 1 szoba
140 m2
Eladó családi ház
Eladó családi ház

Tahitótfalu

188 M Ft
7 szoba
280 m2
Eladó családi ház
Eladó családi ház

Tárnok

114.9 M Ft
5 szoba
210 m2
Eladó családi ház
Eladó családi ház

Budakeszi, Budakeszi kertváros

140 M Ft
2 szoba
55 m2
Eladó családi ház
Eladó családi ház

Tárnok

109.901 M Ft
6 szoba
170 m2
Eladó családi ház
Eladó családi ház

Budakeszi, Budakeszi kertváros

229 M Ft
10 szoba
450 m2
Eladó családi ház
Eladó családi ház

Tárnok

219.9 M Ft
2 szoba
148 m2
Eladó családi ház
Eladó családi ház

Veresegyház, Salamon utca

119.9 M Ft
4 szoba
160 m2
Eladó családi ház
Eladó családi ház

Tárnok

109 M Ft
5 szoba
192 m2
Eladó családi ház
Eladó családi ház

Dunavarsány

49.9 M Ft
3 + 2 szoba
130 m2
Eladó családi ház
Eladó családi ház

Tárnok

129 M Ft
5 szoba
190 m2

Falusi CSOK ingatlanok

Eladó családi ház
Eladó családi ház

Örkény

52.606 M Ft
3 szoba
109 m2
Eladó ikerház
Eladó ikerház

Balatonakali

165 M Ft
4 szoba
138 m2
Eladó családi ház
Eladó családi ház

Dunaalmás

52.5 M Ft
3 + 1 szoba
140 m2
Eladó családi ház
Eladó családi ház

Vasszécseny

20 M Ft
2 szoba
139 m2
Eladó családi ház
Eladó családi ház

Tapsony

23.8 M Ft
3 szoba
130 m2
Eladó családi ház
Eladó családi ház

Annavölgy

79 M Ft
2 szoba
67 m2
Eladó családi ház
Eladó családi ház

Sümegcsehi

119 M Ft
5 szoba
237 m2
Eladó családi ház
Eladó családi ház

Iváncsa

73.9 M Ft
1 + 3 szoba
97 m2