River Life

Eladó családi ház
Tarcal

Figyelem!

Ez az ingatlan a 2019.07.01-től induló falusi CSOK által támogatott településen található

+ 13 kép 1/16
14 900 000 Ft14.9 M Ft 338 636 Ft/m2
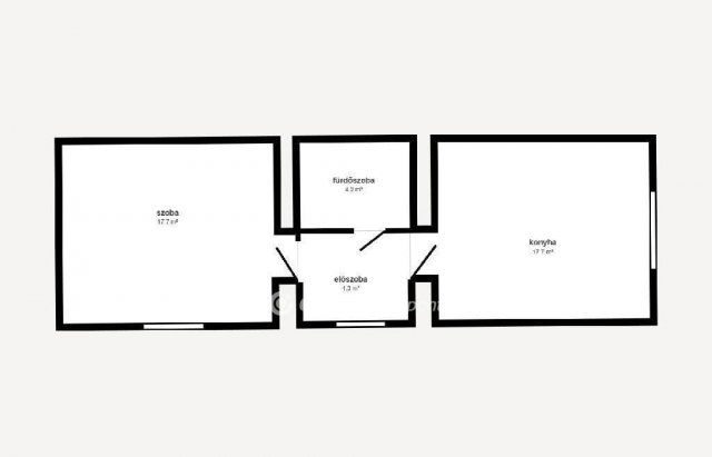
1 szoba
44 m2
építés éve:1958

Részletes adatok

Állapot: Átlagos
Telekméret: 581 m2
Fűtés: Gázkonvektor
Energetikai besorolás: Nem adta meg a hirdető

Az OTP Bank lakáshitel ajánlataFizetett hirdetés

+36 70 583
Szanyi Alexandra
OTPIP Nyíregyháza Hunyadi u.

Érdekel az OTP Bank kedvezményes lakáshitel ajánlata? *

* A kérdésre „Igen” válasz bejelölése esetén, az „Üzenet küldése” gombra kattintva kijelentem, hogy az OTP Bank Nyrt. Adatkezelési tájékoztatójának tartalmát megismertem és tudomásul vettem.

Eladó családi ház leírása

Eladó lakhatásra, valamint családi vállalkozásra is alkalmas ház Tarcal központi utcájában

A 44 nm alapterületű, kőből épült házhoz melléképületek, pince, valamint egy 581 nm-es telek is tartozik. Az ingatlan statikailag jó állapotban van, tető szerkezetét tekintve a gerendákat megerősítették, a léceket pedig kicserélték.

A felújítás során az épületben új műanyag nyílászárók kerültek beépítésre, valamint a fürdőszoba is teljes korszerűsítésen esett át. A melegvíz ellátásról villanybojler gondoskodik, a fűtést pedig gázkonvektorok biztosítják.

A bútorokkal berendezett ingatlan mind idegenforgalmi célra, mind saját pihenésre, illetve háztáji szőlész-borász tevékenységre is alkalmas. A szőlő feldolgozáshoz valamennyi berendezés a rendelkezésre áll egy több 100 literes palackozott készlettel egyetemben, mely komoly érdeklődő esetén a vételár részét képezi.

Az utcában borászatok és idegenforgalmi szálláshelyek találhatók, mint pl. a méltán híres, Andrássy Rezidencia, ahol ötcsillagos szálloda és wellness áll rendelkezésre a kikapcsolódni vágyóknak.

Banki hátterünkkel pénzügyi valamint finanszírozási kérdésekben is állunk rendelkezésére. Hívása során hivatkozzon az M309716-os referenciaszámra.

Hirdetés feltöltve: 2025. 10. 29. Utoljára módosítva: 2025. 11. 02.

Az ingatlan elhelyezkedése

Cím: Tarcal

Eladó családi házak a környékről

Eladó családi ház
Eladó családi ház

Gönc

26 M Ft
3 szoba
130 m2
Eladó családi ház
Eladó családi ház

Tarcal

49.99 M Ft
5 + 1 szoba
170 m2
Eladó családi ház
Eladó családi ház

Tarcal

49.99 M Ft
5 + 1 szoba
170 m2
Eladó családi ház
Eladó családi ház

Taktaszada, Thököly utca

37 M Ft
4 + 1 szoba
190 m2
Eladó családi ház
Eladó családi ház

Tarcal

19.9 M Ft
3 szoba
110 m2
Eladó családi ház
Eladó családi ház

Tarcal

295 M Ft
4 szoba
400 m2
Eladó családi ház
Eladó családi ház

Tarcal

34.9 M Ft
3 szoba
94 m2
Eladó családi ház
Eladó családi ház

Tarcal

14.9 M Ft
1 szoba
44 m2
Eladó családi ház
Eladó családi ház

Tarcal

49.99 M Ft
5 + 1 szoba
170 m2
Eladó családi ház
Eladó családi ház

Tarcal

7 M Ft
226 m²
226 m2
Eladó családi ház
Eladó családi ház

Taktaharkány, Magtár utca

9.9 M Ft
3 szoba
100 m2
Eladó családi ház
Eladó családi ház

Tarcal

34.9 M Ft
3 szoba
94 m2
Eladó családi ház
Eladó családi ház

Miskolc

25.9 M Ft
4 szoba
148 m2
Eladó családi ház
Eladó családi ház

Tarcal

34.9 M Ft
3 szoba
85 m2
Eladó családi ház
Eladó családi ház

Tiszalúc, Alkotmány utca

16.9 M Ft
4 szoba
137 m2
Eladó családi ház
Eladó családi ház

Ózd, Ózd falu, 48-as út

39.9 M Ft
3 + 1 szoba
300 m2
Eladó családi ház
Eladó családi ház

Tarcal

34.9 M Ft
3 szoba
94 m2
Eladó családi ház
Eladó családi ház

Nemesbikk, Kossuth utca 3

4.5 M Ft
2 szoba
80 m2
Eladó családi ház
Eladó családi ház

Tarcal

34.9 M Ft
3 szoba
94 m2
Eladó családi ház
Eladó családi ház

Miskolc

149 M Ft
4 szoba
463 m2
Eladó családi ház
Eladó családi ház

Tarcal

35 M Ft
3 szoba
98 m2
Eladó családi ház
Eladó családi ház

Kurityán

15.8 M Ft
3 szoba
68 m2
Eladó családi ház
Eladó családi ház

Tarcal

49.99 M Ft
5 + 1 szoba
170 m2
Eladó családi ház
Eladó családi ház

Tarcal

19.9 M Ft
3 szoba
110 m2

Falusi CSOK ingatlanok

Eladó családi ház
Eladó családi ház

Ráksi

69.9 M Ft
4 szoba
139 m2
Eladó családi ház
Eladó családi ház

Tésenfa, Kossuth utca 23/a

5.55 M Ft
1 + 1 szoba
109 m2
Eladó családi ház
Eladó családi ház

Szil

25 M Ft
2 szoba
90 m2
Eladó téglalakás
Eladó téglalakás

Táborfalva

25.8 M Ft
2 szoba
54 m2
Eladó családi ház
Eladó családi ház

Balatonkenese

88 M Ft
4 szoba
80 m2
Eladó családi ház
Eladó családi ház

Papkeszi

89.9 M Ft
9 szoba
403 m2
Eladó családi ház
Eladó családi ház

Sellye

43 M Ft
5 szoba
150 m2
Eladó téglalakás
Eladó téglalakás

Kőröshegy

64.9 M Ft
3 szoba
52 m2

Falusi CSOK ingatlanok

Eladó családi ház
Eladó családi ház

Bükkzsérc

42.5 M Ft
4 szoba
240 m2
Eladó családi ház
Eladó családi ház

Magyarpolány

90 M Ft
2 szoba
70 m2
Eladó családi ház
Eladó családi ház

Újkígyós

19.99 M Ft
2 + 1 szoba
72 m2
Eladó családi ház
Eladó családi ház

Geresdlak

44.9 M Ft
4 + 1 szoba
200 m2
Eladó családi ház
Eladó családi ház

Kisnána

27.9 M Ft
4 szoba
180 m2
Eladó családi ház
Eladó családi ház

Zengővárkony

35 M Ft
3 szoba
87 m2
Eladó családi ház
Eladó családi ház

Berzence

38.7 M Ft
5 szoba
110 m2
Eladó családi ház
Eladó családi ház

Nyékládháza

29.9 M Ft
2 + 1 szoba
111 m2