Oasis Residence

Eladó családi ház
Taktaharkány

Figyelem!

Ez az ingatlan a 2019.07.01-től induló falusi CSOK által támogatott településen található

+ 17 kép 1/20
26 910 000 Ft26.91 M Ft 80 328 Ft/m2
10 szoba
335 m2

Részletes adatok

Állapot: Átlagos
Telekméret: 417 m2
Fűtés: Egyéb
Energetikai besorolás: Nem adta meg a hirdető

Az OTP Bank lakáshitel ajánlataFizetett hirdetés

+36 20 447
Takács Alán
referens

Érdekel az OTP Bank kedvezményes lakáshitel ajánlata? *

* A kérdésre „Igen” válasz bejelölése esetén, az „Üzenet küldése” gombra kattintva kijelentem, hogy az OTP Bank Nyrt. Adatkezelési tájékoztatójának tartalmát megismertem és tudomásul vettem.

Eladó családi ház leírása

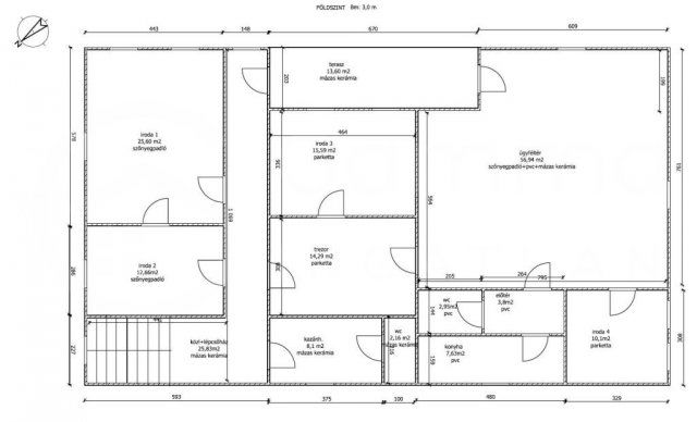
Miskolctól 25 km-re, Taktaharkányban 335.15 m²-esház, 417 m²-es telekkel!
Az ingatlan régebben irodaként volt hasznosítva, ennek megfelelően a földhivatali nyilvántartásban "kivett irodaház"-ként van nyilvántartva.
Ára: 26.910.000, -Ft+Áfa

Műszaki leírás:
1972-ben épült, 1992-ben a felépítmény ki lett bővitve és a tetőteret beépítették. Kialakítása földszint + tetőtér tagolódású, tégla és gázszilikát vegyes falazatú, vasbeton gerendás födém szerkezetű, összetett nyeregtetős, cserépfedéses épület. Homlokzata kőporos vakolattal ellátott. Homlokzati nyílászárói fa szerkezetű ablakok, hőszigetelt üvegezéssel, közepes műszaki állapotban. Fűtése gázkazánnal, radiátor hőleadókkal megoldott. Melegvíz-ellátását gázbojler biztosítja. A helyiségek padló burkolata mázas kerámia, padlószőnyeg, PVC és parketta, közepes műszaki állapotban.

Környezet:
Az ingatlan a település központjában, a Magtár utcában található.
Környezetében üzletek, valamint lakóházak találhatóak.

Közlekedés:
Aszfaltozott úton megközelíthető.
Tömegközlekedés buszmegálló és vasútállomás kb. 700 m.

Hirdetés feltöltve: 2026. 01. 21. Utoljára módosítva: 2026. 01. 22.

Az ingatlan elhelyezkedése

Cím: Taktaharkány

Eladó ingatlanok a környékről

Eladó téglalakás
Eladó téglalakás

Miskolc

54.9 M Ft
3 szoba
103 m2
Eladó családi ház
Eladó családi ház

Miskolc

149 M Ft
4 szoba
463 m2
Eladó családi ház
Eladó családi ház

Kurityán

15.8 M Ft
3 szoba
68 m2
Eladó családi ház
Eladó családi ház

Ózd

48.5 M Ft
4 + 1 szoba
211 m2
Eladó családi ház
Eladó családi ház

Ózd

15 M Ft
7 szoba
225 m2
Eladó családi ház
Eladó családi ház

Taktaharkány

18.9 M Ft
3 szoba
74 m2
Eladó családi ház
Eladó családi ház

Gönc

26 M Ft
3 szoba
130 m2
Eladó családi ház
Eladó családi ház

Taktaharkány, Kossuth utca 2

4.605 M Ft
1 + 1 szoba
59 m2
Eladó családi ház
Eladó családi ház

Taktaszada, Thököly utca

37 M Ft
4 + 1 szoba
190 m2
Eladó téglalakás
Eladó téglalakás

Miskolc

39.99 M Ft
2 + 1 szoba
56 m2
Eladó panellakás
Eladó panellakás

Miskolc

21.9 M Ft
1 + 1 szoba
39 m2
Eladó családi ház
Eladó családi ház

Tiszalúc

19.9 M Ft
4 szoba
180 m2
Eladó családi ház
Eladó családi ház

Taktaharkány

6.9 M Ft
4 + 2 szoba
115 m2
Eladó családi ház
Eladó családi ház

Ózd

26.5 M Ft
3 szoba
100 m2
Eladó családi ház
Eladó családi ház

Miskolc

93.5 M Ft
2 + 3 szoba
135 m2
Eladó panellakás
Eladó panellakás

Miskolc

20 M Ft
1 szoba
28 m2
Eladó ikerház
Eladó ikerház

Cserépfalu

50 M Ft
2 szoba
150 m2
Eladó családi ház
Eladó családi ház

Edelény

31.5 M Ft
2 szoba
75 m2
Eladó családi ház
Eladó családi ház

Taktaharkány

18.9 M Ft
3 szoba
74 m2
Eladó családi ház
Eladó családi ház

Miskolc

25.9 M Ft
4 szoba
148 m2
Eladó családi ház
Eladó családi ház

Ózd, 48-as út

39.9 M Ft
3 + 1 szoba
300 m2
Eladó családi ház
Eladó családi ház

Felsőnyárád

15.9 M Ft
2 szoba
88 m2
Eladó panellakás
Eladó panellakás

Tiszaújváros

35 M Ft
1 + 2 szoba
55 m2
Eladó családi ház
Eladó családi ház

Putnok

11 M Ft
3 szoba
79 m2

Falusi CSOK ingatlanok

Eladó téglalakás
Eladó téglalakás

Újlengyel, Árpád utca

78.909 M Ft
3 szoba
91 m2
Eladó családi ház
Eladó családi ház

Orci

59.9 M Ft
3 szoba
101 m2
Eladó családi ház
Eladó családi ház

Szigetcsép, Szabadság utca

62 M Ft
4 szoba
120 m2
Eladó családi ház
Eladó családi ház

Nemesbőd

87 M Ft
5 szoba
120 m2
Eladó családi ház
Eladó családi ház

Egyed

24.9 M Ft
2 + 1 szoba
56 m2
Eladó családi ház
Eladó családi ház

Szabadbattyán

163.99 M Ft
5 szoba
255 m2
Eladó családi ház
Eladó családi ház

Gyömöre

45.99 M Ft
2 szoba
118 m2
Eladó családi ház
Eladó családi ház

Rédics

65.027 M Ft
3 szoba
180 m2

Falusi CSOK ingatlanok

Eladó családi ház
Eladó családi ház

Kamut

28 M Ft
3 szoba
100 m2
Eladó családi ház
Eladó családi ház

Nagybörzsöny

79.9 M Ft
4 szoba
149 m2
Eladó ikerház
Eladó ikerház

Bodajk

64.9 M Ft
5 szoba
90 m2
Eladó családi ház
Eladó családi ház

Somogyszil

27.9 M Ft
3 szoba
140 m2
Eladó családi ház
Eladó családi ház

Pécsvárad

85 M Ft
4 szoba
100 m2
Eladó családi ház
Eladó családi ház

Szigetcsép, Szabadság utca

62 M Ft
4 szoba
120 m2
Eladó családi ház
Eladó családi ház

Újlengyel

108 M Ft
3 szoba
80 m2
Eladó családi ház
Eladó családi ház

Érsekcsanád

68.8 M Ft
3 szoba
120 m2