Kedves Felhasználónk! Rendszerfrissítés miatt az oldalunk 2026. február 9-én 12 órától várhatóan 20 óráig nem lesz elérhető. Köszönjük megértésed!
River Life

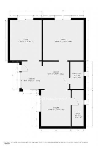
Eladó családi ház
Szomolya

Figyelem!

Ez az ingatlan a 2019.07.01-től induló falusi CSOK által támogatott településen található

+ 14 kép 1/17
22 000 000 Ft22 M Ft 301 370 Ft/m2
2 szoba
73 m2
építés éve:1950

Részletes adatok

Állapot: Átlagos
Telekméret: 1069 m2
Fűtés: Gázkonvektor
Parkolás: Garázs
Energetikai besorolás: Nem adta meg a hirdető

Az OTP Bank lakáshitel ajánlataFizetett hirdetés

+36 30 181
Molnár Tamás
referens

Érdekel az OTP Bank kedvezményes lakáshitel ajánlata? *

* A kérdésre „Igen” válasz bejelölése esetén, az „Üzenet küldése” gombra kattintva kijelentem, hogy az OTP Bank Nyrt. Adatkezelési tájékoztatójának tartalmát megismertem és tudomásul vettem.

Eladó családi ház leírása

Szomolyán, csendes utcában eladó egy 73,5 m2-es, két szobás családi ház 1069 m2-es, panorámás telken.

Az ingatlan tufa falazattal épült, szerkezetileg stabil, jól karbantartott, és villamos hálózata, valamint tetőszerkezete felújított. A ház ideális alapot kínál azok számára, akik saját ízlésükre formálnák otthonukat egy nyugodt, természetközeli környezetben.

A telek különlegessége a kőbe vájt, egykori istálló, amely kiválóan alkalmas lehet hangulatos nyári konyha, borospince vagy akár külön pihenőtér kialakítására.

A környék panorámás kilátást, friss levegőt és csendes vidéki hangulatot kínál, így az ingatlan állandó lakhatásra, hétvégi háznak vagy turisztikai célra is remek választás.

OTP Banki hátterünknek köszönhetően finanszírozási igényekben (pl. Otthon Start Program, Babaváró, Falusi CSOK, CSOK Plusz, Lakáshitel, Személyi kölcsön stb.), illetve biztosítások tekintetében is díjmentesen, soron kívüli ügyintézéssel segítem ügyfeleim! Referenciaszám: M316882

Hirdetés feltöltve: 2025. 11. 07. Utoljára módosítva: 2026. 02. 08.

Az ingatlan elhelyezkedése

Cím: Szomolya

Eladó ingatlanok a környékről

Eladó családi ház
Eladó családi ház

Ózd

26.5 M Ft
3 szoba
100 m2
Eladó családi ház
Eladó családi ház

Miskolc

79 M Ft
4 + 1 szoba
157 m2
Eladó családi ház
Eladó családi ház

Szikszó

89.9 M Ft
3 szoba
100 m2
Eladó családi ház
Eladó családi ház

Gönc

26 M Ft
3 szoba
130 m2
Eladó családi ház
Eladó családi ház

Szomolya

21.9 M Ft
3 szoba
75 m2
Eladó téglalakás
Eladó téglalakás

Miskolc

41 M Ft
2 szoba
50 m2
Eladó családi ház
Eladó családi ház

Szomolya

21.9 M Ft
3 szoba
75 m2
Eladó családi ház
Eladó családi ház

Miskolc

54.99 M Ft
4 szoba
103 m2
Eladó családi ház
Eladó családi ház

Miskolc

78 M Ft
3 szoba
105 m2
Eladó családi ház
Eladó családi ház

Miskolc

25.9 M Ft
4 szoba
148 m2
Eladó családi ház
Eladó családi ház

Ózd

25.99 M Ft
4 szoba
198 m2
Eladó családi ház
Eladó családi ház

Szomolya

19.99 M Ft
5 szoba
110 m2
Eladó családi ház
Eladó családi ház

Miskolc, Vargahegy, Margaréta utca

14.5 M Ft
1 szoba
42 m2
Eladó családi ház
Eladó családi ház

Léh

23.99 M Ft
2 + 1 szoba
100 m2
Eladó családi ház
Eladó családi ház

Szomolya

22 M Ft
2 szoba
73 m2
Eladó panellakás
Eladó panellakás

Miskolc

35.999 M Ft
1 + 2 szoba
54 m2
Eladó családi ház
Eladó családi ház

Miskolc

39.9 M Ft
7 szoba
130 m2
Eladó családi ház
Eladó családi ház

Rudabánya

19.9 M Ft
5 szoba
140 m2
Eladó családi ház
Eladó családi ház

Mályi

28.99 M Ft
4 szoba
130 m2
Eladó téglalakás
Eladó téglalakás

Miskolc

74.49 M Ft
3 szoba
67 m2
Eladó családi ház
Eladó családi ház

Kazincbarcika

75 M Ft
4 szoba
90 m2
Eladó családi ház
Eladó családi ház

Szomolya

21.9 M Ft
3 szoba
75 m2
Eladó családi ház
Eladó családi ház

Tiszalúc

19.9 M Ft
4 szoba
180 m2
Eladó családi ház
Eladó családi ház

Tarcal

19.9 M Ft
3 szoba
110 m2

Falusi CSOK ingatlanok

Eladó családi ház
Eladó családi ház

Véménd

46.9 M Ft
5 szoba
195 m2
Eladó családi ház
Eladó családi ház

Kaposgyarmat

695 M Ft
6 szoba
610 m2
Eladó családi ház
Eladó családi ház

Illocska

15 M Ft
2 szoba
105 m2
Eladó családi ház
Eladó családi ház

Kenyeri

39.9 M Ft
3 szoba
94 m2
Eladó családi ház
Eladó családi ház

Szakmár

12.9 M Ft
3 + 1 szoba
90 m2
Eladó családi ház
Eladó családi ház

Tésenfa, Kossuth utca 23/a

5.55 M Ft
1 + 1 szoba
109 m2
Eladó családi ház
Eladó családi ház

Beremend, 7827 Beremend, Petőfi Sándor utca 10

11.95 M Ft
1 + 1 szoba
124 m2
Eladó családi ház
Eladó családi ház

Győrság

477 M Ft
15 szoba
1115 m2

Falusi CSOK ingatlanok

Eladó családi ház
Eladó családi ház

Kesztölc

129.9 M Ft
8 szoba
210 m2
Eladó családi ház
Eladó családi ház

Somogyszil

27.9 M Ft
3 szoba
140 m2
Eladó családi ház
Eladó családi ház

Illocska

15 M Ft
2 szoba
105 m2
Eladó családi ház
Eladó családi ház

Lippó

10 M Ft
2 + 3 szoba
95 m2
Eladó családi ház
Eladó családi ház

Marcaltő

26 M Ft
3 szoba
103 m2
Eladó családi ház
Eladó családi ház

Jászalsószentgyörgy, Fő út 1

14.09 M Ft
1 + 1 szoba
116 m2
Eladó téglalakás
Eladó téglalakás

Balatonszemes

91.5 M Ft
2 szoba
60 m2
Eladó sorház
Eladó sorház

Tiszasziget, Sziget lakópark

33.9 M Ft
2 szoba
48 m2