Pesti Házak

Eladó családi ház
Szigetvár

+ 17 kép 1/20
48 600 000 Ft48.6 M Ft 385 714 Ft/m2
4 szoba
126 m2
építés éve:1980

Részletes adatok

Állapot: Átlagos
Telekméret: 314 m2
Fűtés: Gázkazán
Energetikai besorolás: Nem adta meg a hirdető

Az OTP Bank lakáshitel ajánlataFizetett hirdetés

+36 20 938
Vincze László György
Pécs Király utca 75 - OTP Ingatlanpont Iroda

Érdekel az OTP Bank kedvezményes lakáshitel ajánlata? *

* A kérdésre „Igen” válasz bejelölése esetén, az „Üzenet küldése” gombra kattintva kijelentem, hogy az OTP Bank Nyrt. Adatkezelési tájékoztatójának tartalmát megismertem és tudomásul vettem.

Eladó családi ház leírása

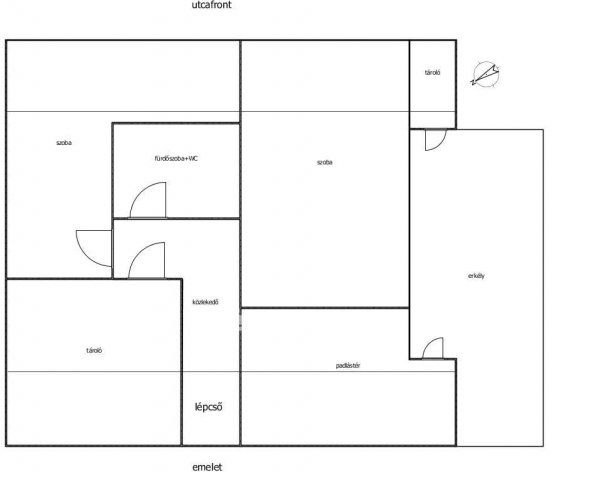
Szigetvár központjában, a Zrínyi-vártól és a Gyógyfürdőtől is sétatávolságban, egy csendes mellékutcában áll ez a gyönyörűen felújított, kétszintes családi ház. A földszinten egy nagy szoba, nappali konyha, fürdőszoba+wc és mosókonyha, a részben beépített tetőtérben két további szoba és egy újabb fürdőszoba+wc mellett egy nagyméretű fedett erkély található. A lakótér teljes alapterülete 120 négyzetméter, ebből a hasznos alapterület 108 négyzetméter. A jelenleg beépítetlen padlástéri tárolóból akár további két kisebb szoba is kialakítható.
Az összes nyílászárót műanyagra cserélték, redőnnyel, és szúnyoghálóval.
A tető egy éve lett felújítva, és szigetelve. A ház 10 centméteres külső szigetelést kapott.
A két családi házat magába foglaló, összesen 994 négyzetméteres, osztatlan közös tulajdonú ingatlan rendelkezik ügyvéd által ellenjegyzett használati megállapodással és megosztási vázrajzzal, így az eladásra kínált lakóház megfelel a kedvezményes hitel feltételeinek. Többek között az otthon start 3%-os hitelnek is.
A kizárólagos használatban álló, mintegy 200 négyzetméteres területen a lakóház mellett egy kis előkert, valamint fedett gépkocsibeálló és szerszámtároló melléképület áll, és ide tartozik még a lakóházak mögötti 114 négyzetméteres elkerített gyümölcsöskert is. A kert öntözésére fúrt kút is rendelkezésre áll.
Az épület fűtése egy kombi gázkazánnal és radiátorokkal történik, alternatív lehetőségként vegyestüzelésű kazánnal és hűtő-fűtő légkondival kiegészítve.
A lakás jelenlegi bútorzatának túlnyomó többsége megegyezés részét képezheti, ennek igény szerinti pontosítása későbbi megállapodás tárgya.

Referenciaszám: M315069

Hirdetés feltöltve: 2025. 10. 16. Utoljára módosítva: 2025. 11. 04.

Az ingatlan elhelyezkedése

Cím: Szigetvár

Eladó családi házak a környékről

Eladó családi ház
Eladó családi ház

Szigetvár

59.8 M Ft
5 szoba
160 m2
Eladó családi ház
Eladó családi ház

Magyarbóly

15.99 M Ft
4 szoba
110 m2
Eladó családi ház
Eladó családi ház

Versend

21.5 M Ft
4 szoba
128 m2
Eladó családi ház
Eladó családi ház

Mohács

16.2 M Ft
4 szoba
96 m2
Eladó családi ház
Eladó családi ház

Szigetvár

55 M Ft
6 szoba
280 m2
Eladó családi ház
Eladó családi ház

Szigetvár

65 M Ft
3 szoba
180 m2
Eladó családi ház
Eladó családi ház

Siklós, Külterület

61.5 M Ft
2 szoba
110 m2
Eladó családi ház
Eladó családi ház

Siklós

270 M Ft
8 szoba
600 m2
Eladó családi ház
Eladó családi ház

Mohács

25 M Ft
4 szoba
120 m2
Eladó családi ház
Eladó családi ház

Pécs

299 M Ft
5 szoba
350 m2
Eladó családi ház
Eladó családi ház

Somogyviszló

5.5 M Ft
1 szoba
45 m2
Eladó családi ház
Eladó családi ház

Szigetvár

65 M Ft
3 szoba
180 m2
Eladó családi ház
Eladó családi ház

Szigetvár

24.99 M Ft
2 + 1 szoba
105 m2
Eladó családi ház
Eladó családi ház

Szigetvár, Széchenyi utca

40 M Ft
4 szoba
205 m2
Eladó családi ház
Eladó családi ház

Szigetvár

34.5 M Ft
3 szoba
90 m2
Eladó családi ház
Eladó családi ház

Zaláta

7.5 M Ft
2 szoba
72 m2
Eladó családi ház
Eladó családi ház

Szigetvár

17.5 M Ft
2 szoba
59 m2
Eladó családi ház
Eladó családi ház

Pécs, Kertváros, Táncsics Mihály utca

74.9 M Ft
6 szoba
185 m2
Eladó családi ház
Eladó családi ház

Szigetvár

59.8 M Ft
5 szoba
160 m2
Eladó családi ház
Eladó családi ház

Szigetvár

28.5 M Ft
5 + 1 szoba
145 m2
Eladó családi ház
Eladó családi ház

Szigetvár

34.5 M Ft
3 szoba
90 m2
Eladó családi ház
Eladó családi ház

Pécs, Deindol, Nagydeindoli

5.9 M Ft
902 m2
Eladó családi ház
Eladó családi ház

Palotabozsok

9.9 M Ft
3 szoba
141 m2
Eladó családi ház
Eladó családi ház

Lippó, Kossuth

95.97 M Ft
2 szoba
160 m2

Falusi CSOK ingatlanok

Eladó családi ház
Eladó családi ház

Vitnyéd, Petőfi Sándor utca 3

16.71 M Ft
1 + 1 szoba
99 m2
Eladó családi ház
Eladó családi ház

Mórichida

44.9 M Ft
3 szoba
89 m2
Eladó családi ház
Eladó családi ház

Ráksi

69.9 M Ft
4 szoba
139 m2
Eladó családi ház
Eladó családi ház

Kenyeri

21.8 M Ft
2 szoba
75 m2
Eladó családi ház
Eladó családi ház

Kemeneshőgyész

8 M Ft
2 szoba
60 m2
Eladó panellakás
Eladó panellakás

Pétfürdő

49.9 M Ft
3 szoba
71 m2
Eladó családi ház
Eladó családi ház

Döbrönte

110 M Ft
2 + 2 szoba
183 m2
Eladó családi ház
Eladó családi ház

Bajánsenye

34.9 M Ft
5 szoba
130 m2