Astora Márvány8

Eladó családi ház
Szigetszentmiklós

+ 17 kép 1/20
149 900 000 Ft149.9 M Ft 563 534 Ft/m2
6 + 1 szoba
266 m²
építés éve:1980

Részletes adatok

Állapot: Felújított
Telekméret: 719 m2
Fűtés: Gázkazán
Komfort: Összkomfortos
Energetikai besorolás: Nem adta meg a hirdető

Az OTP Bank lakáshitel ajánlataFizetett hirdetés

+36 30 635
Ács Katalin
Szigetszentmiklós OTP Ip

Érdekel az OTP Bank kedvezményes lakáshitel ajánlata? *

* A kérdésre „Igen” válasz bejelölése esetén, az „Üzenet küldése” gombra kattintva kijelentem, hogy az OTP Bank Nyrt. Adatkezelési tájékoztatójának tartalmát megismertem és tudomásul vettem.

Eladó családi ház leírása

Tágas otthon és vállalkozás egy helyen! 266 m2-es családi ház Szigetszentmiklós szívében!
Leírás:
Szigetszentmiklós abszolút központjában, mégis nyugodt környezetben eladó egy kiváló adottságokkal rendelkező, nettó 266 négyzetméteres, kétgenerációsnak is alkalmas családi ház! Ha tágas tereket, központi elhelyezkedést és remek közlekedést keres, ez az ingatlan Önre vár.
Az ingatlan főbb jellemzői:
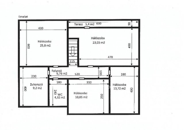
Alapterület: 266 m2 lakótér.
Elrendezés: 6 tágas szoba + 1 félszoba, amely ideális nagycsaládosoknak és otthoni vállalkozásra is.
Állapot: Jó állapotú, folyamatosan karbantartott Családi ház.
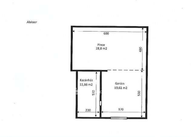
Telek: 719 m2-es parkosított udvar.
Miért válassza ezt a házat?
Központi elhelyezkedés: Szigetszentmiklós szívében minden karnyújtásnyira van: szakorvosi rendelő, Városháza, posta, iskolák, óvodák és bevásárlási lehetőségek.
Kiváló közlekedés: Az M0-ás autóút mindössze 5-8 perc alatt elérhető, így Budapest belvárosa vagy a környező agglomeráció is gyorsan megközelíthető.
Az OTP Bankcsoport teljeskörű ügyintézéssel áll az eladók és a vevők rendelkezésére! A kínálatunkból választott ingatlan finanszírozásához kedvezményes hitelkonstrukciókat kínálunk. Az adásvételi szerződés megkötéséhez igény szerint megbízható ügyvédi közreműködést biztosítunk és segítséget nyújtunk az adásvételhez kapcsolódó ügyek intézéséhez. Referenciaszám:M320424

Az energetikai tanúsítvány készítése folyamatban van, amint rendelkezésre áll, úgy azzal a hirdetés frissítésre kerül.

Hirdetés feltöltve: 2026. 04. 22. Utoljára módosítva: 2026. 05. 20.

Az ingatlan elhelyezkedése

Cím: Szigetszentmiklós

Eladó családi házak a környékről

Szigetszentmiklós
Eladó családi ház

Szigetszentmiklós

101 M Ft
5 szoba
160 m²
Szigetszentmiklós
Eladó családi ház

Szigetszentmiklós

264 M Ft
4 szoba
255 m²
Tápiógyörgye
Eladó családi ház

Tápiógyörgye

19.9 M Ft
3 szoba
65 m²
Tápiószele
Eladó családi ház

Tápiószele

37.9 M Ft
4 szoba
141 m²
Szigetszentmiklós
Eladó családi ház

Szigetszentmiklós

139.9 M Ft
5 szoba
113 m²
Szigetszentmiklós
Eladó családi ház

Szigetszentmiklós

149.9 M Ft
5 + 1 szoba
280 m²
Szigetszentmiklós
Eladó családi ház

Szigetszentmiklós

170 M Ft
8 szoba
290 m²
Szigetszentmiklós
Eladó családi ház

Szigetszentmiklós

149.9 M Ft
5 + 1 szoba
280 m²
Kerepes
Eladó családi ház

Kerepes

81.99 M Ft
5 szoba
102 m²
Pécel, Reményik Sándor utca
Eladó családi ház

Pécel

296 M Ft
6 szoba
396 m²
Őrbottyán
Eladó családi ház

Őrbottyán

154 M Ft
4 + 1 szoba
115 m²
Budakeszi
Eladó családi ház

Budakeszi

130 M Ft
5 szoba
30 m²
Tápiószentmárton
Eladó családi ház

Tápiószentmárton

48 M Ft
5 szoba
180 m²
Remeteszőlős
Eladó családi ház

Remeteszőlős

399.9 M Ft
5 + 2 szoba
260 m²
Szigetszentmiklós
Eladó családi ház

Szigetszentmiklós

155.9 M Ft
4 + 1 szoba
240 m²
Szigetszentmiklós, Városközpont, Föveny köz
Eladó családi ház

Szigetszentmiklós

139.99 M Ft
6 szoba
226 m²
Budaörs
Eladó családi ház

Budaörs

400 M Ft
12 szoba
583 m²
Budakeszi, Budakeszi kertváros
Eladó családi ház

Budakeszi

229 M Ft
10 szoba
450 m²
Szigetszentmiklós
Eladó családi ház

Szigetszentmiklós

139.99 M Ft
6 szoba
226 m²
Szigetszentmiklós
Eladó családi ház

Szigetszentmiklós

109 M Ft
4 szoba
101 m²
Nagykáta
Eladó családi ház

Nagykáta

130 M Ft
3 szoba
203 m²
Szigetszentmiklós
Eladó családi ház

Szigetszentmiklós

109 M Ft
4 szoba
112 m²
Szigetszentmiklós, Városkörnyék, Híradó utca
Eladó családi ház

Szigetszentmiklós

66 M Ft
2 szoba
80 m²
Tápiószentmárton
Eladó családi ház

Tápiószentmárton

16.5 M Ft
3 szoba
50 m²

Falusi CSOK ingatlanok

Kunszállás
Eladó családi ház

Kunszállás

65.9 M Ft
4 szoba
90 m²
Balatonszemes, Ady E. utca 6
Eladó téglalakás

Balatonszemes

108.9 M Ft
2 + 1 szoba
63 m²
Kunadacs
Eladó családi ház

Kunadacs

80 M Ft
4 szoba
148 m²
Dunaegyháza
Eladó családi ház

Dunaegyháza

29.49 M Ft
3 szoba
70 m²
Lajoskomárom
Eladó családi ház

Lajoskomárom

22.9 M Ft
2 szoba
66 m²
Pécsvárad
Eladó családi ház

Pécsvárad

189 M Ft
7 szoba
618 m²
Balatonszemes
Eladó téglalakás

Balatonszemes

125.2 M Ft
2 szoba
50 m²
Tihany
Eladó családi ház

Tihany

200 M Ft
3 szoba
120 m²