Astora Olive Club House

Eladó családi ház
Szigetszentmiklós

+ 17 kép 1/20
149 900 000 Ft149.9 M Ft 563 534 Ft/m2
6 + 1 szoba
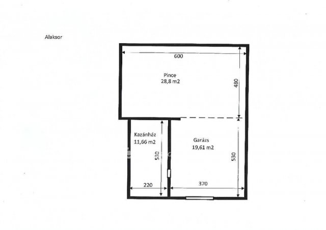
266 m²
építés éve:1980

Részletes adatok

Állapot: Felújított
Telekméret: 719 m2
Fűtés: Gázkazán
Energetikai besorolás: Nem adta meg a hirdető

Az OTP Bank lakáshitel ajánlataFizetett hirdetés

+36 70 324
Máté Katalin
Szigetszentmiklós OTP Ip

Érdekel az OTP Bank kedvezményes lakáshitel ajánlata? *

* A kérdésre „Igen” válasz bejelölése esetén, az „Üzenet küldése” gombra kattintva kijelentem, hogy az OTP Bank Nyrt. Adatkezelési tájékoztatójának tartalmát megismertem és tudomásul vettem.

Eladó családi ház leírása

Tágas otthon és vállalkozás egy helyen! 266 m2-es családi ház Szigetszentmiklós szívében!
Leírás:
Szigetszentmiklós abszolút központjában, mégis nyugodt környezetben eladó egy kiváló adottságokkal rendelkező, nettó 266 négyzetméteres, kétgenerációsnak is alkalmas családi ház! Ha tágas tereket, központi elhelyezkedést és remek közlekedést keres, ez az ingatlan Önre vár.
Az ingatlan főbb jellemzői:
Alapterület: 266 m2 lakótér.
Elrendezés: 6 tágas szoba + 1 félszoba, amely ideális nagycsaládosoknak és otthoni vállalkozásra is.
Állapot: Jó állapotú, folyamatosan karbantartott Családi ház.
Telek: 719 m2-es parkosított udvar.
Miért válassza ezt a házat?
Központi elhelyezkedés: Szigetszentmiklós szívében minden karnyújtásnyira van: szakorvosi rendelő, Városháza, posta, iskolák, óvodák és bevásárlási lehetőségek.
Kiváló közlekedés: Az M0-ás autóút mindössze 5-8 perc alatt elérhető, így Budapest belvárosa vagy a környező agglomeráció is gyorsan megközelíthető.
Az OTP Bankcsoport teljeskörű ügyintézéssel áll az eladók és a vevők rendelkezésére! A kínálatunkból választott ingatlan finanszírozásához kedvezményes hitelkonstrukciókat kínálunk. Az adásvételi szerződés megkötéséhez igény szerint megbízható ügyvédi közreműködést biztosítunk és segítséget nyújtunk az adásvételhez kapcsolódó ügyek intézéséhez. Referenciaszám:M320424

Az energetikai tanúsítvány készítése folyamatban van, amint rendelkezésre áll, úgy azzal a hirdetés frissítésre kerül.

Hirdetés feltöltve: 2026. 04. 18. Utoljára módosítva: 2026. 05. 11.

Az ingatlan elhelyezkedése

Cím: Szigetszentmiklós

Eladó családi házak a környékről

Szigetszentmiklós
Eladó családi ház

Szigetszentmiklós

149.9 M Ft
5 + 1 szoba
280 m²
Tápiószőlős
Eladó családi ház

Tápiószőlős

34.9 M Ft
5 szoba
210 m²
Szigetszentmiklós
Eladó családi ház

Szigetszentmiklós

139.99 M Ft
6 szoba
226 m²
Budakeszi
Eladó családi ház

Budakeszi

130 M Ft
5 szoba
30 m²
Őrbottyán
Eladó családi ház

Őrbottyán

154 M Ft
4 + 1 szoba
115 m²
Kerepes
Eladó családi ház

Kerepes

81.99 M Ft
5 szoba
102 m²
Budakeszi, Budakeszi kertváros
Eladó családi ház

Budakeszi

229 M Ft
10 szoba
450 m²
Dunakeszi
Eladó családi ház

Dunakeszi

250 M Ft
4 szoba
180 m²
Szigetszentmiklós
Eladó családi ház

Szigetszentmiklós

109 M Ft
4 szoba
112 m²
Tápiószele
Eladó családi ház

Tápiószele

45 M Ft
6 szoba
360 m²
Szigetszentmiklós
Eladó családi ház

Szigetszentmiklós

109 M Ft
4 szoba
101 m²
Tápiószele
Eladó családi ház

Tápiószele

32.9 M Ft
4 szoba
200 m²
Szigetszentmiklós
Eladó családi ház

Szigetszentmiklós

109 M Ft
4 szoba
101 m²
Tápiószentmárton
Eladó családi ház

Tápiószentmárton

16.5 M Ft
3 szoba
50 m²
Szigetszentmiklós, Városközpont, Föveny köz
Eladó családi ház

Szigetszentmiklós

139.99 M Ft
6 szoba
226 m²
Szigetszentmiklós, Bucka negyed
Eladó családi ház

Szigetszentmiklós

79 M Ft
6 + 1 szoba
265 m²
Szigetszentmiklós
Eladó családi ház

Szigetszentmiklós

109 M Ft
4 szoba
101 m²
Szigetszentmiklós
Eladó családi ház

Szigetszentmiklós

101 M Ft
5 szoba
160 m²
Szigetszentmiklós
Eladó családi ház

Szigetszentmiklós

149 M Ft
5 szoba
275 m²
Szigetszentmiklós
Eladó családi ház

Szigetszentmiklós

170 M Ft
8 szoba
290 m²
Érd, Érdliget - Kutyavár, Érd-liget
Eladó családi ház

Érd

230 M Ft
7 szoba
280 m²
Tápiógyörgye
Eladó családi ház

Tápiógyörgye

19.9 M Ft
3 szoba
65 m²
Szigetszentmiklós
Eladó családi ház

Szigetszentmiklós

149.9 M Ft
5 + 1 szoba
280 m²
Remeteszőlős
Eladó családi ház

Remeteszőlős

399.9 M Ft
5 + 2 szoba
260 m²

Falusi CSOK ingatlanok

Balatonfenyves, Örvös utca
Eladó családi ház

Balatonfenyves

424.8 M Ft
4 szoba
330 m²
Szigliget
Eladó családi ház

Szigliget

299 M Ft
3 szoba
95 m²
Nyáregyháza
Eladó ikerház

Nyáregyháza

75.9 M Ft
4 szoba
0 m²
Békésszentandrás, Dinnyelaposi Üdülő-sor 1/1
Eladó családi ház

Békésszentandrás

550 M Ft
3 szoba
418 m²
Bag
Eladó családi ház

Bag

16.9 M Ft
6 szoba
160 m²
Nyáregyháza
Eladó ikerház

Nyáregyháza

75.9 M Ft
4 szoba
0 m²
Egerbakta
Eladó családi ház

Egerbakta

43.9 M Ft
5 + 1 szoba
160 m²
Kondoros
Eladó családi ház

Kondoros

25 M Ft
4 szoba
150 m²