NapForrás 20 - Buda

Eladó családi ház
Szigetszentmiklós

+ 3 kép 1/6
99 990 000 Ft99.99 M Ft 847 373 Ft/m2
5 szoba
118 m2
építés éve:2025

Részletes adatok

Telekméret: 830 m2
Fűtés: Egyéb
Energetikai besorolás: Nem adta meg a hirdető

Az OTP Bank lakáshitel ajánlataFizetett hirdetés

+36 70 772
Takács Dávid
referens

Érdekel az OTP Bank kedvezményes lakáshitel ajánlata? *

* A kérdésre „Igen” válasz bejelölése esetén, az „Üzenet küldése” gombra kattintva kijelentem, hogy az OTP Bank Nyrt. Adatkezelési tájékoztatójának tartalmát megismertem és tudomásul vettem.

Eladó családi ház leírása

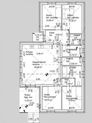
Eladó egy praktikus elrendezésű, nappali + 4 szobás, önálló családi ház Szigetszentmiklós rendezett, újépítésű környezetében.

A bruttó 118 m²-es épület egy 830 m²-es, utcafronti telken valósul meg, ideális otthonteremtési lehetőséget kínálva családok számára.

Műszaki tartalom:
- 30 cm-es Porotherm főfalak, 15 cm-es homlokzati hőszigeteléssel
- 10 cm-es válaszfalak
- Padlófűtés és melegvíz hőszivattyús rendszerrel – energiatakarékos, korszerű megoldás
- Műanyag, hőszigetelt nyílászárók
- Fa födém, Bramac beton cserép fedéssel
- 25 cm-es födémszigetelés
- Kétszeri glettelés és fehér falfestés
- Burkolatok szabadon választhatók: hidegburkolat és konyhai fali burkolat: 4.000 Ft/m²-ig; melegburkolat: 3.500 Ft/m²-ig
- Terasz: simított beton kialakítással

További előnyök:
- Várható átadás: 2025 vége – 2026 eleje
- Céges kivitelezés – illetékmentesség!
- CSOK Plusz igényelhető
- Csendes, új építésű környezet, alacsony fenntartási költségekkel

Ha felkeltette érdeklődését ez az ingatlan, keressen minket bizalommal, és örömmel mutatjuk be a lehetőségeket személyesen is!

A Custom Dream Home teljes körű ügyintézéssel áll eladók és vevők rendelkezésére – ingatlanközvetítés szívvel-lélekkel, az Ön igényeire szabva.

Szolgáltatásaink:
- Ingyenes hiteltanácsadás, CSOK+, Babaváró és lakáshitel-ügyintézés pénzügyi szakértő bevonásával
- Díjmentes ingatlanérték-meghatározás
- Energetikai tanúsítvány készítés
- Ügyvédi és jogi tanácsadás kedvező áron

A megjelenő információk tájékoztató jellegűek.

Referencia szám: CD25621-ZE

Hirdetés feltöltve: 2025. 06. 27. Utoljára módosítva: 2025. 11. 05.

5 szobás családi házak ára Szigetszentmiklóson

Ebből az összehasonlításból megtudhatod, hogyan viszonyul a lakás ára a környékbeli családi házak átlagos árához. Ez nem azt jelenti, hogy ennyivel olcsóbb vagy drágább, mint amennyit a lakás ér, hanem hogy ennyivel tér el a környékbeli átlagtól.

Ennek a m² ára
Szigetszentmiklós m² ár
847 e Ft
690 e Ft -23%
Ennek az ára
Szigetszentmiklós átlagár
99.99 M Ft m Ft
134.8 m Ft 26%

Az ingatlan elhelyezkedése

Cím: Szigetszentmiklós

Eladó családi házak a környékről

Eladó családi ház
Eladó családi ház

Budakeszi, Budakeszi kertváros

229 M Ft
10 szoba
450 m2
Eladó családi ház
Eladó családi ház

Remeteszőlős

399.9 M Ft
5 + 2 szoba
260 m2
Eladó családi ház
Eladó családi ház

Pécel, Reményik Sándor utca

296 M Ft
6 szoba
396 m2
Eladó családi ház
Eladó családi ház

Érd

164.9 M Ft
5 szoba
192 m2
Eladó családi ház
Eladó családi ház

Sződ, Rátóti utca

149.99 M Ft
11 szoba
270 m2
Eladó családi ház
Eladó családi ház

Kerepes

81.99 M Ft
5 szoba
102 m2
Eladó családi ház
Eladó családi ház

Tápiószentmárton

48 M Ft
5 szoba
180 m2
Eladó családi ház
Eladó családi ház

Szigetszentmiklós, Szigetszentmiklós kertvárosi részén

135 M Ft
6 szoba
180 m2
Eladó családi ház
Eladó családi ház

Szigetszentmiklós, Városkörnyék, Híradó utca

66 M Ft
2 szoba
80 m2
Eladó családi ház
Eladó családi ház

Szigetszentmiklós

170 M Ft
8 szoba
290 m2
Eladó családi ház
Eladó családi ház

Tápiószentmárton

7.9 M Ft
2 + 1 szoba
86 m2
Eladó családi ház
Eladó családi ház

Tápiószele

32.9 M Ft
4 szoba
200 m2
Eladó családi ház
Eladó családi ház

Dunavarsány

46.9 M Ft
3 + 2 szoba
130 m2
Eladó családi ház
Eladó családi ház

Szigetszentmiklós, Városkörnyék, Szilvás utca

310 M Ft
5 + 6 szoba
270 m2
Eladó családi ház
Eladó családi ház

Budakeszi

130 M Ft
5 szoba
30 m2
Eladó családi ház
Eladó családi ház

Szigetszentmiklós

149.9 M Ft
5 + 1 szoba
280 m2
Eladó családi ház
Eladó családi ház

Szigetszentmiklós, Határ út közeli utca

85 M Ft
6 szoba
195 m2
Eladó családi ház
Eladó családi ház

Budaörs, Városközpont utca

119.5 M Ft
5 + 1 szoba
140 m2
Eladó családi ház
Eladó családi ház

Szigetszentmiklós, Fenyő u8tca közeli utca

135 M Ft
5 szoba
160 m2
Eladó családi ház
Eladó családi ház

Szigetszentmiklós

92.5 M Ft
4 szoba
101 m2
Eladó családi ház
Eladó családi ház

Szigetszentmiklós

85 M Ft
6 szoba
194 m2
Eladó családi ház
Eladó családi ház

Szigetszentmiklós

149 M Ft
4 szoba
163 m2
Eladó családi ház
Eladó családi ház

Szigetszentmiklós, Városkörnyék, Szilvás utca

310 M Ft
9 szoba
270 m2
Eladó családi ház
Eladó családi ház

Budaörs, Bányász utca

385 M Ft
6 szoba
300 m2

Falusi CSOK ingatlanok

Eladó családi ház
Eladó családi ház

Ceglédbercel

95 M Ft
6 szoba
220 m2
Eladó ikerház
Eladó ikerház

Balatonakali

129 M Ft
4 szoba
145 m2
Eladó családi ház
Eladó családi ház

Besnyő

149 M Ft
6 szoba
285 m2
Eladó családi ház
Eladó családi ház

Pécsvárad

140 M Ft
2 szoba
79 m2
Eladó családi ház
Eladó családi ház

Püspökhatvan

44.9 M Ft
3 szoba
80 m2
Eladó családi ház
Eladó családi ház

Jászkarajenő

19.9 M Ft
3 szoba
81 m2
Eladó családi ház
Eladó családi ház

Meggyeskovácsi

22.5 M Ft
3 szoba
88 m2
Eladó családi ház
Eladó családi ház

Sárisáp, Orgona utca

60 M Ft
4 szoba
145 m2