Aerogate Homes

Eladó családi ház
Szigethalom

+ 16 kép 1/19
69 900 000 Ft69.9 M Ft 862 963 Ft/m2
3 szoba
81 m2
építés éve:1960

Részletes adatok

Állapot: Átlagos
Telekméret: 2660 m2
Fűtés: Gázkazán
Energetikai besorolás: Nem adta meg a hirdető

Az OTP Bank lakáshitel ajánlataFizetett hirdetés

+36 70 465
Bittera Viktória
Szi-We Otthona Kft

Érdekel az OTP Bank kedvezményes lakáshitel ajánlata? *

* A kérdésre „Igen” válasz bejelölése esetén, az „Üzenet küldése” gombra kattintva kijelentem, hogy az OTP Bank Nyrt. Adatkezelési tájékoztatójának tartalmát megismertem és tudomásul vettem.

Eladó családi ház leírása

Fedezze fel ezt a kivételes lehetőséget, amely a Pest vármegyei Szigethalom csendes, barátságos környezetében várja Önt!
VADREGÉNYES OTTHON, AHOL AKÁR VÁLLALKOZÁSÁT IS MEGTEREMTHETI

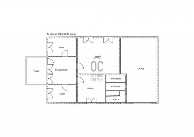
Az ingatlan, amelyet most bemutatunk, ideális választás lehet üzleti vállalkozások számára, valamint azok számára, akik szeretnék saját otthonukat kialakítani egy nyugodt, de mégis jól megközelíthető helyen. Különlegessége, hogy minden közmű (víz, villany, gáz, csatorna) be lett vezetve. A 81 nm-es ház egy tágas, 2660 nm-es telken helyezkedik el, amely lehetőséget biztosít akár egy jövőbeli vállalkozás kialakítására is. A kertben gyümölcsfák, szőlő ültetvény, és az ott található kis ház alatt borospince található. Az ingatlan három szobával és egy fürdőszobával rendelkezik, így elegendő teret biztosít családok számára, de könnyedén átalakítható irodává vagy más üzleti célra is. A ház átlagos állapotú, fűtéséről gázkazán gondoskodik a téli hónapokban, míg a 8 nm-es terasz ideális helyszín a pihenésre és a szabadban való időtöltésre. A garázsban pedig egy autó kényelmesen elfér, a kertben pedig több autó részére beállási lehetőség, így a parkolás sosem jelenthet problémát. Az ingatlan lakható állapotú, de korszerűsítést igényel.

Bővebben az ingatlanról:
- többnyire műanyag hőszigetelt nyílászárók
- fűtéséről gázkazán gondoskodik radiátorokon keresztül
- alternatív fűtésként vegyes tüzelésű kazán radiátoros hőleadással
- 8 nm-es fedett terasz
- 40 nm-es garázs, benne kis műhellyel
- 15 nm-es tároló, boros pincével
- a kertben fúrt kút biztosítja az öntözést

Az ingatlan Gksz-1 besorolású (kereskedelmi, szolgáltató), így a családi otthon megteremtése mellett a megélhetését is finanszírozhatja.

Szigethalom nemcsak a csendes környékéről ismert, hanem kiváló közlekedési lehetőségeiről is. A település könnyen megközelíthető autóval, hiszen a közeli főutak gyors hozzáférést biztosítanak Budapesthez és a környező településekhez. A tömegközlekedés is jól kiépített, így az ingatlan közelében található buszmegállók, és HÉV révén a város könnyedén elérhető. A környék biztonságos és kellemes, ideális választás családoknak és vállalkozásoknak egyaránt. A település számos szolgáltatást kínál, legyen szó boltokról, éttermekről vagy iskolákról, így minden szükséges kényelem a közelben megtalálható. A természet közelsége lehetőséget biztosít a szabadtéri programokra, sétákra és sportolásra, így az ingatlan nemcsak lakóhelyként, hanem aktív életmódot folytató családok számára is ideális választás. Ez a tehermentes ingatlan számos lehetőséget rejt magában, legyen szó lakó- vagy befektetési céllal történő vásárlásról. Ne habozzon, hiszen az ilyen lehetőségek gyorsan elkelnek!

Amennyiben bármilyen kérdése lenne az ingatlannal kapcsolatban, bizalommal kereshet minket, szívesen állunk rendelkezésére, hogy segíthessünk a legjobb döntés meghozatalában.

Hívjon a hét bármely napján!

Referencia szám: H507490-ZE

Hirdetés feltöltve: 2025. 09. 24. Utoljára módosítva: 2025. 11. 11.

3 szobás családi házak ára Szigethalmon

Ebből az összehasonlításból megtudhatod, hogyan viszonyul a lakás ára a környékbeli családi házak átlagos árához. Ez nem azt jelenti, hogy ennyivel olcsóbb vagy drágább, mint amennyit a lakás ér, hanem hogy ennyivel tér el a környékbeli átlagtól.

Ennek a m² ára
Szigethalom m² ár
863 e Ft
900 e Ft 4%
Ennek az ára
Szigethalom átlagár
69.9 M Ft m Ft
69 m Ft -1%

Az ingatlan elhelyezkedése

Cím: Szigethalom

Eladó családi házak a környékről

Eladó családi ház
Eladó családi ház

Szigethalom

141.99 M Ft
7 szoba
186 m2
Eladó családi ház
Eladó családi ház

Tápiószentmárton

7.9 M Ft
2 + 1 szoba
86 m2
Eladó családi ház
Eladó családi ház

Tápiógyörgye

19.9 M Ft
3 szoba
65 m2
Eladó családi ház
Eladó családi ház

Szigethalom, Kolozsvári közeli utca

97 M Ft
6 szoba
204 m2
Eladó családi ház
Eladó családi ház

Szigethalom

259.9 M Ft
7 szoba
300 m2
Eladó családi ház
Eladó családi ház

Szigethalom

44.9 M Ft
2 szoba
44 m2
Eladó családi ház
Eladó családi ház

Kerepes

199 M Ft
6 szoba
360 m2
Eladó családi ház
Eladó családi ház

Szigethalom

74.89 M Ft
2 szoba
86 m2
Eladó családi ház
Eladó családi ház

Szigethalom

69.9 M Ft
2 + 3 szoba
76 m2
Eladó családi ház
Eladó családi ház

Szigethalom

74.89 M Ft
3 szoba
86 m2
Eladó családi ház
Eladó családi ház

Sződ, Rátóti utca

149.99 M Ft
11 szoba
270 m2
Eladó családi ház
Eladó családi ház

Szigethalom

85 M Ft
4 szoba
80 m2
Eladó családi ház
Eladó családi ház

Kerepes

81.99 M Ft
5 szoba
102 m2
Eladó családi ház
Eladó családi ház

Szigethalom

71.8 M Ft
3 szoba
87 m2
Eladó családi ház
Eladó családi ház

Érd

164.9 M Ft
5 szoba
192 m2
Eladó családi ház
Eladó családi ház

Remeteszőlős

399.9 M Ft
5 + 2 szoba
260 m2
Eladó családi ház
Eladó családi ház

Budakeszi, Budakeszi kertváros

140 M Ft
2 szoba
55 m2
Eladó családi ház
Eladó családi ház

Szigethalom

79.9 M Ft
3 szoba
75 m2
Eladó családi ház
Eladó családi ház

Szigethalom

64.9 M Ft
2 szoba
82 m2
Eladó családi ház
Eladó családi ház

Szigetszentmiklós, Tököli út közeli utca

120 M Ft
7 szoba
525 m2
Eladó családi ház
Eladó családi ház

Budakeszi, Budakeszi kertváros

229 M Ft
10 szoba
450 m2
Eladó családi ház
Eladó családi ház

Leányfalu

237 M Ft
9 szoba
800 m2
Eladó családi ház
Eladó családi ház

Tápiószele

37.9 M Ft
4 szoba
141 m2
Eladó családi ház
Eladó családi ház

Szigethalom

259.9 M Ft
7 szoba
300 m2

Falusi CSOK ingatlanok

Eladó családi ház
Eladó családi ház

Várbalog

47.98 M Ft
3 szoba
85 m2
Eladó családi ház
Eladó családi ház

Vilonya

135 M Ft
3 + 2 szoba
125 m2
Eladó családi ház
Eladó családi ház

Törtel

14 M Ft
3 + 2 szoba
55 m2
Eladó családi ház
Eladó családi ház

Kocsér

19.9 M Ft
1 + 2 szoba
73 m2
Eladó családi ház
Eladó családi ház

Nyékládháza

75 M Ft
4 szoba
140 m2
Eladó családi ház
Eladó családi ház

Tápióság

12.9 M Ft
1 szoba
50 m2
Eladó családi ház
Eladó családi ház

Pécsvárad

140 M Ft
3 szoba
95 m2
Eladó családi ház
Eladó családi ház

Ágasegyháza

29.7 M Ft
3 szoba
75 m2