Aerogate Homes

Eladó családi ház
Szentes

+ 17 kép 1/20
42 990 000 Ft42.99 M Ft 330 692 Ft/m2
3 szoba
130 m2
építés éve:1980

Részletes adatok

Telekméret: 472 m2
Fűtés: Gázkazán
Energetikai besorolás: Nem adta meg a hirdető

Az OTP Bank lakáshitel ajánlataFizetett hirdetés

+36 20 495
Boda Sándor
referens

Érdekel az OTP Bank kedvezményes lakáshitel ajánlata? *

* A kérdésre „Igen” válasz bejelölése esetén, az „Üzenet küldése” gombra kattintva kijelentem, hogy az OTP Bank Nyrt. Adatkezelési tájékoztatójának tartalmát megismertem és tudomásul vettem.

Eladó családi ház leírása

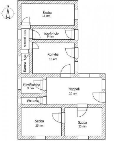
Szentes központjában családi ház eladó! Kizárólag az OTP Ingatlanpont kínálatában! Eladásra kínálunk Szentes szívében egy 130 nm-es családi házat, amely egy 472 nm-es telken helyezkedik el. Az ingatlan az évek során részlegesen felújításon esett át, radiátoros fűtéssel rendelkezik, valamint vegyestüzelésű kazán is biztosítja a meleget. A belső térben 3 kényelmes szoba, egy nagy előszoba (akár nappaliként is használható), konyha, fürdőszoba, külön WC, kamra és kazánház kapott helyet. A melegvizet bojler biztosítja. A telken ipari áram is van. Az udvarban melléképület és dupla garázs is található, a szennyvíz derítőaknával megoldott. A ház központi, jól megközelíthető helyen van, mégis csendes, kellemes környezetben. Minden fontos szolgáltatás, bolt, iskola, óvoda, orvosirendelő karnyújtásnyira elérhető. Ez az otthon remek választás lehet családoknak vagy akár vállalkozásra is. Ha érdeklődsz az ingatlan iránt, keress bizalommal! Nézzük meg együtt! Legújabb szolgáltatásként ajánlom minden kedves ügyfelem részére az OTP Bank által közvetített Babaváró, CSOK PLUSZ, Otthon Start Hitelprogram vagy egyéb kölcsönök intézését. Az OTP Ingatlanpont kedvezményes pénzügyi konstrukciókkal áll ügyfelei rendelkezésére! VIP-szolgáltatást nyújtunk az OTP-hiteltermékek ügyintézésében. Jogi és pénzügyi segítséget nyújtanak szakértőink, hogy az adásvétel folyamata gördülékeny legyen. Amennyiben a vételár a kérdés, és úgy gondolja még nincs meg az összeg a leendő új otthonra? Lehet, hogy még is rendelkezésére áll a vételár csak még Ön nem is tudja? Tisztában van valóban az anyagi lehetőségeivel? Az áthidaló megoldásokkal? Esetleg csak az az akadály, hogy nem adta el még a saját ingatlanját? Nem gond, a tulajdonosaink, eladóink szívesen megvárják Önt, segítünk a gyors értékesítésben is. Ne maradjon le a vételről, ha már megtalálta a megfelelő új otthont! Szolgáltatásunk ingyenes, kizárólag sikeres értékesítés esetén van megbízási díj fizetési kötelezettség. A vevők is nálunk vannak és lehet az Ön ingatlanjára várnak?! Tudjon meg többet, hívjon bizalommal! Eladó ingatlanja van? Nincs vevője? Hívjon segítek az értékesítésben! Kedvező hitelajánlatokkal (BABAVÁRÓ hitel, piaci hitel, és szabadfelhasználású hitel) várjuk jelentkezését. Számos konstrukció közül választhatnak. Irodáink Szentes, Petőfi utca 12. (a buszmegálló felől) és Csongrád, Fő utca 54. szám alatt várja a személyes érdeklődőket. ***VÁLASSZUK KI EGYÜTT AZ ÖNNEK LEGMEGFELELŐBB AJÁNLATOT! BANKI SORBAN ÁLLÁS NÉLKÜL! ***

Hirdetés feltöltve: 2025. 11. 13. Utoljára módosítva: 2026. 01. 26.

3 szobás családi házak ára Szentesen

Ebből az összehasonlításból megtudhatod, hogyan viszonyul a lakás ára a környékbeli családi házak átlagos árához. Ez nem azt jelenti, hogy ennyivel olcsóbb vagy drágább, mint amennyit a lakás ér, hanem hogy ennyivel tér el a környékbeli átlagtól.

Ennek a m² ára
Szentes m² ár
331 e Ft
332 e Ft 0%
Ennek az ára
Szentes átlagár
42.99 M Ft m Ft
38 m Ft -13%

Az ingatlan elhelyezkedése

Cím: Szentes

Eladó családi házak a környékről

Eladó családi ház
Eladó családi ház

Szeged

109 M Ft
2 szoba
980 m2
Eladó családi ház
Eladó családi ház

Szentes

43.9 M Ft
3 szoba
102 m2
Eladó családi ház
Eladó családi ház

Hódmezővásárhely, Kishomok, Új-Kishomok

69 M Ft
3 szoba
100 m2
Eladó családi ház
Eladó családi ház

Szentes

43 M Ft
6 szoba
225 m2
Eladó családi ház
Eladó családi ház

Szeged

149.9 M Ft
10 szoba
310 m2
Eladó családi ház
Eladó családi ház

Hódmezővásárhely

120 M Ft
7 szoba
236 m2
Eladó családi ház
Eladó családi ház

Szentes

108 M Ft
5 + 2 szoba
214 m2
Eladó családi ház
Eladó családi ház

Szeged

225 M Ft
5 szoba
203 m2
Eladó családi ház
Eladó családi ház

Szentes

58 M Ft
4 szoba
147 m2
Eladó családi ház
Eladó családi ház

Szeged

259 M Ft
6 szoba
314 m2
Eladó családi ház
Eladó családi ház

Makó, Ráday 9/b

42 M Ft
1 szoba
150 m2
Eladó családi ház
Eladó családi ház

Szentes

69 M Ft
4 szoba
240 m2
Eladó családi ház
Eladó családi ház

Szentes

64 M Ft
5 + 2 szoba
218 m2
Eladó családi ház
Eladó családi ház

Szentes

28.5 M Ft
2 szoba
76 m2
Eladó családi ház
Eladó családi ház

Szentes

29.5 M Ft
4 szoba
128 m2
Eladó családi ház
Eladó családi ház

Mórahalom

63 M Ft
3 szoba
94 m2
Eladó családi ház
Eladó családi ház

Szentes

14.9 M Ft
2 szoba
66 m2
Eladó családi ház
Eladó családi ház

Szentes

25 M Ft
4 szoba
123 m2
Eladó családi ház
Eladó családi ház

Szentes

24 M Ft
4 szoba
115 m2
Eladó családi ház
Eladó családi ház

Szentes

45 M Ft
3 szoba
180 m2
Eladó családi ház
Eladó családi ház

Szentes

27 M Ft
3 szoba
140 m2
Eladó családi ház
Eladó családi ház

Szeged

79.9 M Ft
5 szoba
135 m2
Eladó családi ház
Eladó családi ház

Szeged, Alsóváros, Szabadság tér

89.9 M Ft
3 + 1 szoba
100 m2
Eladó családi ház
Eladó családi ház

Szentes

25.5 M Ft
2 szoba
65 m2

Falusi CSOK ingatlanok

Eladó téglalakás
Eladó téglalakás

Várbalog

38.9 M Ft
3 szoba
45 m2
Eladó családi ház
Eladó családi ház

Sumony

19 M Ft
4 szoba
120 m2
Eladó családi ház
Eladó családi ház

Nagytevel

41.9 M Ft
2 + 1 szoba
75 m2
Eladó családi ház
Eladó családi ház

Rádfalva

13.8 M Ft
2 szoba
68 m2
Eladó családi ház
Eladó családi ház

Gersekarát

21.9 M Ft
3 szoba
80 m2
Eladó családi ház
Eladó családi ház

Pánd

28.9 M Ft
3 szoba
74 m2
Eladó családi ház
Eladó családi ház

Bezenye

84.9 M Ft
4 szoba
139 m2
Eladó téglalakás
Eladó téglalakás

Várbalog

48.9 M Ft
2 szoba
65 m2