Stay Family Park

Eladó családi ház
Szentes

+ 17 kép 1/20
66 900 000 Ft66.9 M Ft 395 858 Ft/m2
3 szoba
169 m2
építés éve:1976

Részletes adatok

Telekméret: 569 m2
Fűtés: Gázkazán
Energetikai besorolás: Nem adta meg a hirdető

Az OTP Bank lakáshitel ajánlataFizetett hirdetés

+36 30 656
Fábrik-Csendes Zsuzsanna
Szentes OTP Ingatlanpont Iroda Petőfi utca 12.

Érdekel az OTP Bank kedvezményes lakáshitel ajánlata? *

* A kérdésre „Igen” válasz bejelölése esetén, az „Üzenet küldése” gombra kattintva kijelentem, hogy az OTP Bank Nyrt. Adatkezelési tájékoztatójának tartalmát megismertem és tudomásul vettem.

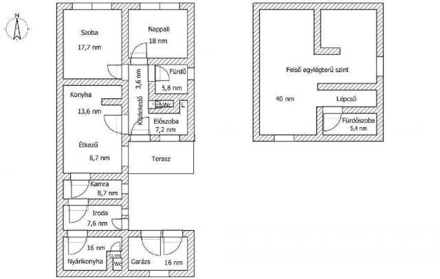
Eladó családi ház leírása

Kizárólag az OTP Ingatlanpont kínálatában! Otthon, ahol a családi emlékek születnek! Szentes csendes, barátságos részén még is a központhoz közel, eladó egy 169-nm-es, kétszintes családi ház, 569 nm-es telekkel, tökéletes választás mindazoknak, akik szeretnének tágas, szeretetteljes otthonba költözni. A földszinten található: nappali és egy szoba, sarokkádas és zuhanyzós fürdőszoba, külön WC, előszoba, nagy konyha étkezővel, kamra és irodahelyiség, mely közvetlen összeköttetésben van a melléképülettel. Az udvar felől és a házból is megközelíthető a nyárikonyha, külön WC-vel rendelkezik. Az emeleten egy nagylégterű szoba és fürdőszoba található WC-vel. Az udvaron fűtött garázs, kisebb tárolók és egy szín biztosítanak rengeteg helyet a kerti eszközöknek és a kertben végezhető hobbiknak. Amit még szeretni fogsz ebben a házban: napelemek a takarékos energiafelhasználásért, gázfűtés, fa tüzelésű kazán és 2 klíma. Télen-nyáron komfortos hőmérséklet, 5 cm hőszigetelés, energiahatékony megoldások. Ez a ház nem csak falakat és tetőt ad, hanem egy meleg, barátságos otthont, ahol a család minden tagja megtalálhatja a saját kis zugát. Legújabb szolgáltatásként ajánlom minden kedves ügyfelem részére az OTP Bank által közvetített Babaváró, CSOK PLUSZ, Otthon Start Hitelprogram vagy egyéb kölcsönök intézését. Az OTP Ingatlanpont kedvezményes pénzügyi konstrukciókkal áll ügyfelei rendelkezésére! VIP-szolgáltatást nyújtunk az OTP-hiteltermékek ügyintézésében. Jogi és pénzügyi segítséget nyújtanak szakértőink, hogy az adásvétel folyamata gördülékeny legyen. Amennyiben a vételár a kérdés, és úgy gondolja még nincs meg az összeg a leendő új otthonra? Lehet, hogy még is rendelkezésére áll a vételár csak még Ön nem is tudja? Tisztában van valóban az anyagi lehetőségeivel? Az áthidaló megoldásokkal? Esetleg csak az az akadály, hogy nem adta el még a saját ingatlanját? Nem gond, a tulajdonosaink, eladóink szívesen megvárják Önt, segítünk a gyors értékesítésben is. Ne maradjon le a vételről, ha már megtalálta a megfelelő új otthont! Szolgáltatásunk ingyenes, kizárólag sikeres értékesítés esetén van megbízási díj fizetési kötelezettség. A vevők is nálunk vannak és lehet az Ön ingatlanjára várnak?! Tudjon meg többet, hívjon bizalommal! Eladó ingatlanja van? Nincs vevője? Hívjon segítek az értékesítésben! Kedvező hitelajánlatokkal (BABAVÁRÓ hitel, piaci hitel, és szabadfelhasználású hitel) várjuk jelentkezését. Számos konstrukció közül választhatnak. Irodáink Szentes, Petőfi utca 12. (a buszmegálló felől) és Csongrád, Fő utca 54. szám alatt várja a személyes érdeklődőket. ***VÁLASSZUK KI EGYÜTT AZ ÖNNEK LEGMEGFELELŐBB AJÁNLATOT! BANKI SORBAN ÁLLÁS NÉLKÜL! ***

Referencia szám: M312227-ZE

Hirdetés feltöltve: 2025. 10. 29. Utoljára módosítva: 2025. 11. 07.

3 szobás családi házak ára Szentesen

Ebből az összehasonlításból megtudhatod, hogyan viszonyul a lakás ára a környékbeli családi házak átlagos árához. Ez nem azt jelenti, hogy ennyivel olcsóbb vagy drágább, mint amennyit a lakás ér, hanem hogy ennyivel tér el a környékbeli átlagtól.

Ennek a m² ára
Szentes m² ár
396 e Ft
310 e Ft -27%
Ennek az ára
Szentes átlagár
66.9 M Ft m Ft
40.3 m Ft -66%

Az ingatlan elhelyezkedése

Cím: Szentes

Eladó családi házak a környékről

Eladó családi ház
Eladó családi ház

Röszke

15.9 M Ft
3 szoba
80 m2
Eladó családi ház
Eladó családi ház

Szentes

25 M Ft
4 szoba
123 m2
Eladó családi ház
Eladó családi ház

Szeged

259 M Ft
6 szoba
314 m2
Eladó családi ház
Eladó családi ház

Szentes

29.5 M Ft
4 szoba
128 m2
Eladó családi ház
Eladó családi ház

Szentes

58 M Ft
4 szoba
147 m2
Eladó családi ház
Eladó családi ház

Makó, Királyhegyesi utca

25 M Ft
3 szoba
90 m2
Eladó családi ház
Eladó családi ház

Szeged

160 M Ft
5 szoba
187 m2
Eladó családi ház
Eladó családi ház

Szentes

45 M Ft
3 szoba
180 m2
Eladó családi ház
Eladó családi ház

Szeged

149.9 M Ft
10 szoba
310 m2
Eladó családi ház
Eladó családi ház

Szentes

67 M Ft
6 szoba
173 m2
Eladó családi ház
Eladó családi ház

Hódmezővásárhely, Kishomok, Új-Kishomok

60 M Ft
3 szoba
100 m2
Eladó családi ház
Eladó családi ház

Szentes

20.5 M Ft
3 szoba
80 m2
Eladó családi ház
Eladó családi ház

Szentes

58 M Ft
4 szoba
147 m2
Eladó családi ház
Eladó családi ház

Szentes

19 M Ft
4 szoba
131 m2
Eladó családi ház
Eladó családi ház

Szentes

67 M Ft
6 szoba
173 m2
Eladó családi ház
Eladó családi ház

Szentes

25.5 M Ft
2 szoba
65 m2
Eladó családi ház
Eladó családi ház

Szeged

79.9 M Ft
5 szoba
135 m2
Eladó családi ház
Eladó családi ház

Mindszent

49.9 M Ft
8 szoba
280 m2
Eladó családi ház
Eladó családi ház

Szentes

28.5 M Ft
2 szoba
76 m2
Eladó családi ház
Eladó családi ház

Baks, Kossuth Lajos utca

40 M Ft
3 szoba
300 m2
Eladó családi ház
Eladó családi ház

Szentes, Soós utca 16

19.91 M Ft
1 + 1 szoba
51 m2
Eladó családi ház
Eladó családi ház

Szentes

108 M Ft
5 + 2 szoba
214 m2
Eladó családi ház
Eladó családi ház

Szentes

128 M Ft
3 szoba
372 m2
Eladó családi ház
Eladó családi ház

Baks

27.9 M Ft
2 szoba
82 m2

Falusi CSOK ingatlanok

Eladó családi ház
Eladó családi ház

Segesd

3.9 M Ft
2 szoba
65 m2
Eladó családi ház
Eladó családi ház

Kaposgyarmat

695 M Ft
6 szoba
610 m2
Eladó családi ház
Eladó családi ház

Törtel

25.9 M Ft
5 szoba
95 m2
Eladó családi ház
Eladó családi ház

Elek

18 M Ft
4 szoba
180 m2
Eladó családi ház
Eladó családi ház

Mencshely

99 M Ft
3 szoba
126 m2
Eladó családi ház
Eladó családi ház

Balatonkeresztúr

41.9 M Ft
2 szoba
57 m2
Eladó családi ház
Eladó családi ház

Ceglédbercel, Iskola utca

79.99 M Ft
5 szoba
90 m2
Eladó családi ház
Eladó családi ház

Tápiógyörgye

33 M Ft
3 + 2 szoba
140 m2