Eladó családi ház
Szentes

+ 17 kép 1/20
59 000 000 Ft59 M Ft 226 054 Ft/m2
1 + 2 szoba
261 m2
építés éve:2000

Részletes adatok

Állapot: Átlagos
Telekméret: 919 m2
Fűtés: Gázkazán
Parkolás: Garázs
Energetikai besorolás: Nem adta meg a hirdető
Zenga Premier

Friss hirdetések, amiket nem találsz meg más ingatlankereső portálon.

Fedezd fel elsőként a Zenga Premier címkés eladó ingatlanokat!

További részletek a zenga.hu-n

Az OTP Bank lakáshitel ajánlataFizetett hirdetés

+36 70 429
Majzik Alexandra
referens

Érdekel az OTP Bank kedvezményes lakáshitel ajánlata? *

* A kérdésre „Igen” válasz bejelölése esetén, az „Üzenet küldése” gombra kattintva kijelentem, hogy az OTP Bank Nyrt. Adatkezelési tájékoztatójának tartalmát megismertem és tudomásul vettem.

Eladó családi ház leírása

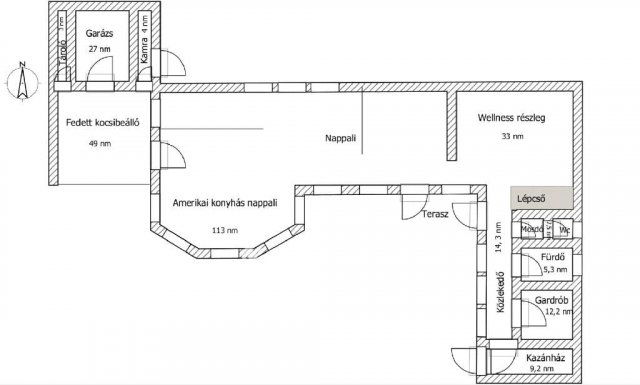
Kizárólag az OTP Ingatlanpont kínálatában! Eladó mediterrán stílusú, 261 nm-es családi ház Szentesen, a kórház közelében. Szentes egyik kedvelt, csendes részén eladó egy tágas, világos és mediterrán hangulatú családi ház, amely 2000-ben épült téglából, hőszigetelt falazattal. Az épületben különleges exkluzív látszó belső tetőszerkezet látható. Aminek stílusa visszaköszön a külső homlokzaton, nyílászárókon és az udvaron egyaránt. A természetes fa mennyezet és díszítések különleges, meleg atmoszférát teremtenek, a hatalmas terek pedig igazi otthonérzetet nyújtanak. A galérián két félszoba található, a házban külön WC és fürdőszoba szolgálja a kényelmet. A nappali és az étkező egy légtérben, napfényes és hangulatos, a kandalló pedig igazi ékköve a térnek. A jelenleg 919 nm-es udvar parkosított, füvesített és rendezett. Tervben van a telek szétválasztása lehetőleg külön helyrajzi számon, mert a telek másik végében is van egy ház, ami viszont nem eladó, így a leendő vásárló majd kb. 500 m2 telekrészt kap. A szétválasztást követően mindkét ház saját elkerített udvarral és saját utcafronttal fog rendelkezni. A házhoz tartozik garázs, kamra, tárolóhelység és 2 fedett kocsibeálló. Könnyen megközelíthető, a környéken minden fontos szolgáltatás elérhető (bolt, iskola, buszmegálló, orvosi rendelő stb.). Tökéletes választás azoknak, akik nagy, napfényes tereket, a természetes anyagokat és a mediterrán hangulatot kedvelik. A jakuzzi és szauna révén akár luxus wellness otthonként is funkcionálhat. Legújabb szolgáltatásként ajánlom minden kedves ügyfelem részére az OTP Bank által közvetített Babaváró, CSOK PLUSZ, Otthon Start Hitelprogram vagy egyéb kölcsönök intézését. Az OTP Ingatlanpont kedvezményes pénzügyi konstrukciókkal áll ügyfelei rendelkezésére! VIP-szolgáltatást nyújtunk az OTP-hiteltermékek ügyintézésében. Jogi és pénzügyi segítséget nyújtanak szakértőink, hogy az adásvétel folyamata gördülékeny legyen. Amennyiben a vételár a kérdés, és úgy gondolja még nincs meg az összeg a leendő új otthonra? Lehet, hogy még is rendelkezésére áll a vételár csak még Ön nem is tudja? Tisztában van valóban az anyagi lehetőségeivel? Az áthidaló megoldásokkal? Esetleg csak az az akadály, hogy nem adta el még a saját ingatlanját? Nem gond, a tulajdonosaink, eladóink szívesen megvárják Önt, segítünk a gyors értékesítésben is. Ne maradjon le a vételről, ha már megtalálta a megfelelő új otthont! Szolgáltatásunk ingyenes, kizárólag sikeres értékesítés esetén van megbízási díj fizetési kötelezettség. A vevők is nálunk vannak és lehet az Ön ingatlanjára várnak?! Tudjon meg többet, hívjon bizalommal! Eladó ingatlanja van? Nincs vevője? Hívjon segítek az értékesítésben! Kedvező hitelajánlatokkal (BABAVÁRÓ hitel, piaci hitel, és szabadfelhasználású hitel) várjuk jelentkezését. Számos konstrukció közül választhatnak. Irodáink Szentes, Petőfi utca 12. (a buszmegálló felől) és Csongrád, Fő utca 54. szám alatt várja a személyes érdeklődőket. ***VÁLASSZUK KI EGYÜTT AZ ÖNNEK LEGMEGFELELŐBB AJÁNLATOT! BANKI SORBAN ÁLLÁS NÉLKÜL! ***

Hirdetés feltöltve: 2025. 10. 07. Utoljára módosítva: 2025. 10. 07.

3 szobás családi házak ára Szentesen

Ebből az összehasonlításból megtudhatod, hogyan viszonyul a lakás ára a környékbeli családi házak átlagos árához. Ez nem azt jelenti, hogy ennyivel olcsóbb vagy drágább, mint amennyit a lakás ér, hanem hogy ennyivel tér el a környékbeli átlagtól.

Ennek a m² ára
Szentes m² ár
226 e Ft
296 e Ft 24%
Ennek az ára
Szentes átlagár
59 M Ft m Ft
40.4 m Ft -46%

Az ingatlan elhelyezkedése

Cím: Szentes

Eladó családi házak a környékről

Eladó családi ház
Eladó családi ház

Szentes

25 M Ft
4 szoba
123 m2
Eladó családi ház
Eladó családi ház

Baks, Kossuth Lajos utca

40 M Ft
3 szoba
300 m2
Eladó családi ház
Eladó családi ház

Szeged

220 M Ft
5 szoba
175 m2
Eladó családi ház
Eladó családi ház

Szeged

149.9 M Ft
10 szoba
310 m2
Eladó családi ház
Eladó családi ház

Szentes

46.9 M Ft
6 szoba
225 m2
Eladó családi ház
Eladó családi ház

Szentes

55 M Ft
4 szoba
200 m2
Eladó családi ház
Eladó családi ház

Szeged

220 M Ft
5 + 2 szoba
207 m2
Eladó családi ház
Eladó családi ház

Szentes

13.9 M Ft
2 + 1 szoba
72 m2
Eladó családi ház
Eladó családi ház

Szentes, Soós utca 16

19.91 M Ft
1 + 1 szoba
51 m2
Eladó családi ház
Eladó családi ház

Szentes

58 M Ft
4 szoba
147 m2
Eladó családi ház
Eladó családi ház

Szeged

195 M Ft
4 szoba
210 m2
Eladó családi ház
Eladó családi ház

Makó, Királyhegyesi utca

25 M Ft
3 szoba
90 m2
Eladó családi ház
Eladó családi ház

Szentes

20.5 M Ft
3 szoba
80 m2
Eladó családi ház
Eladó családi ház

Szeged

200 M Ft
4 szoba
236 m2
Eladó családi ház
Eladó családi ház

Szeged

225 M Ft
5 szoba
203 m2
Eladó családi ház
Eladó családi ház

Szeged

220 M Ft
5 + 1 szoba
190 m2
Eladó családi ház
Eladó családi ház

Szentes

45 M Ft
3 szoba
180 m2
Eladó családi ház
Eladó családi ház

Szentes

67 M Ft
6 szoba
173 m2
Eladó családi ház
Eladó családi ház

Tiszasziget

58.9 M Ft
5 szoba
111 m2
Eladó családi ház
Eladó családi ház

Szentes

14.9 M Ft
2 szoba
66 m2
Eladó családi ház
Eladó családi ház

Szentes

29.9 M Ft
3 + 1 szoba
95 m2
Eladó családi ház
Eladó családi ház

Szentes

50 M Ft
4 szoba
156 m2
Eladó családi ház
Eladó családi ház

Szentes

19 M Ft
4 szoba
131 m2
Eladó családi ház
Eladó családi ház

Szentes

28.5 M Ft
2 szoba
76 m2

Falusi CSOK ingatlanok

Eladó családi ház
Eladó családi ház

Buzsák

16.9 M Ft
4 szoba
100 m2
Eladó családi ház
Eladó családi ház

Szigetcsép

27.9 M Ft
3 szoba
81 m2
Eladó téglalakás
Eladó téglalakás

Hegyeshalom

28 M Ft
1 szoba
29 m2
Eladó téglalakás
Eladó téglalakás

Besnyő

54.9 M Ft
2 + 1 szoba
56 m2
Eladó családi ház
Eladó családi ház

Magyarpolány

53 M Ft
2 szoba
71 m2
Eladó családi ház
Eladó családi ház

Úrkút, Temető utca

99 M Ft
7 szoba
540 m2
Eladó családi ház
Eladó családi ház

Fonyód

79.9 M Ft
7 szoba
149 m2
Eladó családi ház
Eladó családi ház

Magyarszék

48.5 M Ft
3 + 1 szoba
86 m2