Eladó családi ház
Szentes

+ 17 kép 1/20
55 000 000 Ft55 M Ft 470 085 Ft/m2
3 + 1 szoba
117 m2
építés éve:1997

Részletes adatok

Telekméret: 539 m2
Fűtés: Gázkazán
Energetikai besorolás: Nem adta meg a hirdető

Az OTP Bank lakáshitel ajánlataFizetett hirdetés

+36 20 985
Petkov Gyöngyi Katalin
Csongrád OTP Ingatlanpont Iroda

Érdekel az OTP Bank kedvezményes lakáshitel ajánlata? *

* A kérdésre „Igen” válasz bejelölése esetén, az „Üzenet küldése” gombra kattintva kijelentem, hogy az OTP Bank Nyrt. Adatkezelési tájékoztatójának tartalmát megismertem és tudomásul vettem.

Eladó családi ház leírása

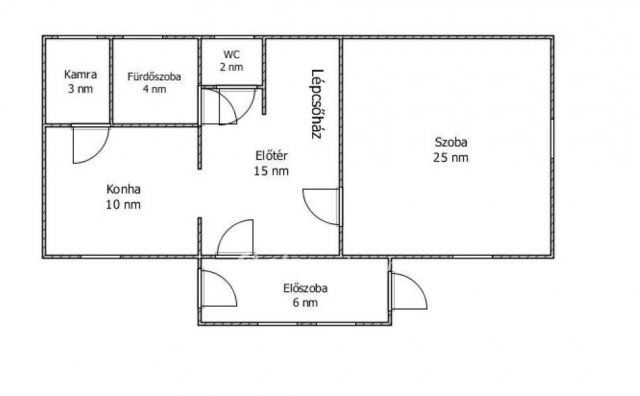
Kétszintes családi ház eladó Szentesen. A 117 nm-es, nappali + 3 szobával és 2 fürdőszobával rendelkező tégla építésű ház kertvárosi környezetben helyezkedik el egy 539 nm-es telken. Az előszobán keresztül a nagy előtéren áthaladva jutunk a hatalmas, világos nappaliba. A földszinten van a konyha, a kamra és egy fürdőszoba, valamint egy WC helyiség. A hűtő-fűtő klímát az előtérben helyezték el. Az emeleten további 3 külön bejáratú szoba és egy fürdőszoba kapott helyet. A jó állapotú ház fűtését gázkazán, a meleg vizet gázbojler biztosítja, ablakai 3 rétegű műanyag nyílászárók. A ház szigetelése 5 cm-es nikecell, rajta nemesvakolat. A szobák padlóburkolata laminált padló, a többi helyiség hidegburkolattal fedett. A melléképületben van egy fűtött konyha meleg víz ellátással, egy félkész fürdőszoba és a garázs. A nagy garázsban a parkoló autó mellett még nagy mennyiségű holmi tárolására is van lehetőség. A melléképület felett beépíthető tetőtér van. Az udvaron még további 2 autó számára van fedett kocsibeálló. Az ingatlan tehermentes, hitelezhető! Amennyiben az OTP Ingatlanpont kínálatából választ, számíthat szakmai támogatásunkra a teljes vételi folyamat során az adásvételi szerződés megkötésétől a hitel-ügyintézésen át az ingatlan átadásáig. Az OTP Ingatlanpont kedvezményes pénzügyi konstrukciókkal áll ügyfelei rendelkezésére, és VIP-szolgáltatást nyújt az OTP-hiteltermékek , valamint CSOK+-ügyintézésben. Kedvező hitelajánlatokkal (BABAVÁRÓ hitel, piaci hitel, és szabadfelhasználású hitel) várjuk jelentkezését. Számos konstrukció közül választhatnak. Irodáink Szentes, Petőfi utca 12. A buszmegálló felől, és Csongrád, Fő utca 54. szám alatt várja a személyes érdeklődőket. ***VÁLASSZUK KI EGYÜTT AZ ÖNNEK LEGMEGFELELŐBB AJÁNLATOT! BANKI SORBAN ÁLLÁS NÉLKÜL! ***

Referencia szám: M311515-ZE

Hirdetés feltöltve: 2025. 10. 04. Utoljára módosítva: 2025. 10. 04.

4 szobás családi házak ára Szentesen

Ebből az összehasonlításból megtudhatod, hogyan viszonyul a lakás ára a környékbeli családi házak átlagos árához. Ez nem azt jelenti, hogy ennyivel olcsóbb vagy drágább, mint amennyit a lakás ér, hanem hogy ennyivel tér el a környékbeli átlagtól.

Ennek a m² ára
Szentes m² ár
470 e Ft
419 e Ft -12%
Ennek az ára
Szentes átlagár
55 M Ft m Ft
54.8 m Ft 0%

Az ingatlan elhelyezkedése

Cím: Szentes

Eladó családi házak a környékről

Eladó családi ház
Eladó családi ház

Mindszent

49.9 M Ft
8 szoba
280 m2
Eladó családi ház
Eladó családi ház

Szentes

29.9 M Ft
3 + 1 szoba
95 m2
Eladó családi ház
Eladó családi ház

Szentes

19 M Ft
4 szoba
131 m2
Eladó családi ház
Eladó családi ház

Szentes

14.9 M Ft
2 szoba
66 m2
Eladó családi ház
Eladó családi ház

Szentes

67 M Ft
6 szoba
173 m2
Eladó családi ház
Eladó családi ház

Szeged

220 M Ft
5 szoba
175 m2
Eladó családi ház
Eladó családi ház

Szeged

160 M Ft
5 szoba
187 m2
Eladó családi ház
Eladó családi ház

Szentes

44.9 M Ft
3 szoba
102 m2
Eladó családi ház
Eladó családi ház

Szentes

27 M Ft
3 szoba
140 m2
Eladó családi ház
Eladó családi ház

Szentes

29.99 M Ft
4 szoba
112 m2
Eladó családi ház
Eladó családi ház

Szeged

125 M Ft
4 szoba
106 m2
Eladó családi ház
Eladó családi ház

Tiszasziget

58.9 M Ft
5 szoba
111 m2
Eladó családi ház
Eladó családi ház

Szeged

79.9 M Ft
5 szoba
135 m2
Eladó családi ház
Eladó családi ház

Szeged

200 M Ft
4 szoba
236 m2
Eladó családi ház
Eladó családi ház

Makó, Ráday 9/b

42 M Ft
1 szoba
150 m2
Eladó családi ház
Eladó családi ház

Szeged

220 M Ft
5 + 2 szoba
207 m2
Eladó családi ház
Eladó családi ház

Szentes

58 M Ft
4 szoba
147 m2
Eladó családi ház
Eladó családi ház

Szentes

64 M Ft
5 + 2 szoba
218 m2
Eladó családi ház
Eladó családi ház

Hódmezővásárhely, Kishomok, Új-Kishomok

60 M Ft
3 szoba
100 m2
Eladó családi ház
Eladó családi ház

Szentes

50 M Ft
4 szoba
156 m2
Eladó családi ház
Eladó családi ház

Szentes

28.5 M Ft
2 szoba
76 m2
Eladó családi ház
Eladó családi ház

Szentes

23 M Ft
3 szoba
65 m2
Eladó családi ház
Eladó családi ház

Szentes

46.9 M Ft
6 szoba
225 m2
Eladó családi ház
Eladó családi ház

Szentes

45 M Ft
3 szoba
180 m2

Falusi CSOK ingatlanok

Eladó családi ház
Eladó családi ház

Iváncsa

73.9 M Ft
1 + 3 szoba
97 m2
Eladó családi ház
Eladó családi ház

Miháld

39.9 M Ft
5 szoba
101 m2
Eladó családi ház
Eladó családi ház

Segesd

14.3 M Ft
3 szoba
100 m2
Eladó családi ház
Eladó családi ház

Kunadacs

34 M Ft
240 m2
Eladó családi ház
Eladó családi ház

Ceglédbercel

63 M Ft
3 szoba
70 m2
Eladó családi ház
Eladó családi ház

Vácegres

28 M Ft
1 + 3 szoba
44 m2
Eladó családi ház
Eladó családi ház

Hernádnémeti

19.9 M Ft
2 szoba
62 m2
Eladó ikerház
Eladó ikerház

Besnyő

89.5 M Ft
1 + 3 szoba
93 m2