Astora Art House

Eladó családi ház
Szekszárd

+ 17 kép 1/20
69 900 000 Ft69.9 M Ft 776 667 Ft/m2
3 szoba
90 m2
építés éve:1970

Részletes adatok

Állapot: Átlagos
Telekméret: 640 m2
Fűtés: Gázkonvektor
Energetikai besorolás: Nem adta meg a hirdető

Az OTP Bank lakáshitel ajánlataFizetett hirdetés

+36 70 886
Balla Ildikó
referens

Érdekel az OTP Bank kedvezményes lakáshitel ajánlata? *

* A kérdésre „Igen” válasz bejelölése esetén, az „Üzenet küldése” gombra kattintva kijelentem, hogy az OTP Bank Nyrt. Adatkezelési tájékoztatójának tartalmát megismertem és tudomásul vettem.

Eladó családi ház leírása

Eladó Szekszárdon, egy modernizált családi ház!
Tolna vármegye székhelyén, Szekszárdon eladásra kínálok egy 90 m2-es részben felújított, 1/1 tulajdonú, tehermentes, napkollektorral ellátott, részben bútorozott, 3 szobás családi házat!

A tágas, igényesen kialakított telek 640 m2, amely kiszolgál minden igényt. A ház a fekvésének köszönhetően, és az évszaktól függetlenül is folymatos természetes fényt kap.

Az ingatlan körbejárható, a szomszédok segítőkészek, csendesek, sosem volt rájuk panasz. Az udvaron gyümölcsfák, kerti csap és ásott kút is található. A ház hátsó részén egy új, fedett, és igényes kialakított 14 m2-es terasz található amely bármely családi rendezvények a helyszíne lehet!

2022-ben a majd 6kW-os teljesítményű napkollektorral egyidejűleg a tető is fel lett újítva, ami magában foglalja az új:
- cserépléceket,
- tetőfliát,
- a Bramac cserepet,
- a 22 cm-es födém szigetelést,
- és a csatornát is.

Emellett a ház 2004-ben 5 cm-es szigetelést kapott és egyidejűleg a nyílászárók is cserélve lettek.
Az ingatlan fűtése külön termosztátról vezérelhető gázkonvektoros hőleadású rendszer, ami kiegészül egy, a nappaliban elhelyezett vegyestüzelésű kályhával.

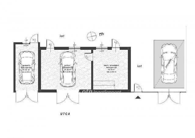
A melléképületben akár 3 autó is parkolhat, alatta pedig egy betonfödémmel ellátott száraz pince található, ami rengeteg lehetőséget rejt magában!

Az ingatlan lokációja kiváló: Tesco Hipermarket, Lidl, Obi, éttermek csak pár percre.

Amennyiben a hirdetésem felkeltette az érdeklődésést, hívjon a hét bármely napján!

69900000 Ft

Referencia szám: M317538

Referencia szám: M317538

Hirdetés feltöltve: 2025. 12. 18. Utoljára módosítva: 2026. 01. 29.

3 szobás családi házak ára Szekszárdon

Ebből az összehasonlításból megtudhatod, hogyan viszonyul a lakás ára a környékbeli családi házak átlagos árához. Ez nem azt jelenti, hogy ennyivel olcsóbb vagy drágább, mint amennyit a lakás ér, hanem hogy ennyivel tér el a környékbeli átlagtól.

Ennek a m² ára
Szekszárd m² ár
777 e Ft
604 e Ft -29%
Ennek az ára
Szekszárd átlagár
69.9 M Ft m Ft
60.8 m Ft -15%

Az ingatlan elhelyezkedése

Cím: Szekszárd

Eladó családi házak a környékről

Eladó családi ház
Eladó családi ház

Tamási

95 M Ft
6 + 1 szoba
180 m2
Eladó családi ház
Eladó családi ház

Szekszárd

25.9 M Ft
3 szoba
87 m2
Eladó családi ház
Eladó családi ház

Bölcske

49.999 M Ft
2 szoba
120 m2
Eladó családi ház
Eladó családi ház

Szekszárd, Árnyék dűlő

24.5 M Ft
1 szoba
29 m2
Eladó családi ház
Eladó családi ház

Paks

46.9 M Ft
3 szoba
81 m2
Eladó családi ház
Eladó családi ház

Szekszárd, Gesztenyés

14.3 M Ft
2 szoba
25 m2
Eladó családi ház
Eladó családi ház

Szekszárd, Bottyánhegy, Csonka utca

40 M Ft
6 szoba
164 m2
Eladó családi ház
Eladó családi ház

Paks, Hidegvölgy utca

26.9 M Ft
3 szoba
89 m2
Eladó családi ház
Eladó családi ház

Dombóvár

49 M Ft
5 szoba
220 m2
Eladó családi ház
Eladó családi ház

Paks

11.9 M Ft
1 szoba
45 m2
Eladó családi ház
Eladó családi ház

Szekszárd

69 M Ft
4 szoba
111 m2
Eladó családi ház
Eladó családi ház

Paks, Kölesdi út

64.9 M Ft
2 szoba
45 m2
Eladó családi ház
Eladó családi ház

Szekszárd, Faddi tető

7.9 M Ft
1 szoba
38 m2
Eladó családi ház
Eladó családi ház

Szekszárd

28.5 M Ft
1 + 2 szoba
60 m2
Eladó családi ház
Eladó családi ház

Szekszárd

126 M Ft
6 szoba
155 m2
Eladó családi ház
Eladó családi ház

Bátaszék, Deák Ferenc utca

40 M Ft
8 szoba
271 m2
Eladó családi ház
Eladó családi ház

Szekszárd

82 M Ft
4 szoba
108 m2
Eladó családi ház
Eladó családi ház

Bikács, Kossuth Lajos utca

127.997 M Ft
6 szoba
450 m2
Eladó családi ház
Eladó családi ház

Iregszemcse

19.9 M Ft
3 szoba
89 m2
Eladó családi ház
Eladó családi ház

Tamási

41 M Ft
4 + 2 szoba
150 m2
Eladó családi ház
Eladó családi ház

Nagyszokoly

14.5 M Ft
3 szoba
80 m2
Eladó családi ház
Eladó családi ház

Paks

20 M Ft
3 szoba
88 m2
Eladó családi ház
Eladó családi ház

Paks

21.9 M Ft
2 szoba
70 m2
Eladó családi ház
Eladó családi ház

Paks, Ezredvég utca

399 M Ft
5 + 1 szoba
400 m2

Falusi CSOK ingatlanok

Eladó családi ház
Eladó családi ház

Vilonya

350 M Ft
3 szoba
850 m2
Eladó családi ház
Eladó családi ház

Kenyeri

21.8 M Ft
2 szoba
75 m2
Eladó családi ház
Eladó családi ház

Segesd

14.3 M Ft
3 szoba
100 m2
Eladó családi ház
Eladó családi ház

Háromfa, Kossuth

22.4 M Ft
139 m2
Eladó családi ház
Eladó családi ház

Ágasegyháza

59 M Ft
4 szoba
90 m2
Eladó családi ház
Eladó családi ház

Kislippó

16 M Ft
3 szoba
100 m2
Eladó családi ház
Eladó családi ház

Bugac

34.4 M Ft
3 szoba
70 m2
Eladó családi ház
Eladó családi ház

Újhartyán, Gödör utca

81.99 M Ft
3 szoba
110 m2