Metrodom

Eladó családi ház
Szeged, földszint

+ 12 kép 1/15
125 000 000 Ft125 M Ft 968 992 Ft/m2
4 szoba
129 m2
földszint
építés éve:2025

Részletes adatok

Telekméret: 381 m2
Fűtés: Egyéb
Energetikai besorolás: Nem adta meg a hirdető

Az OTP Bank lakáshitel ajánlataFizetett hirdetés

+36 30 821
Dajka Szilvia
Homing Szeged Ingatlaniroda

Érdekel az OTP Bank kedvezményes lakáshitel ajánlata? *

* A kérdésre „Igen” válasz bejelölése esetén, az „Üzenet küldése” gombra kattintva kijelentem, hogy az OTP Bank Nyrt. Adatkezelési tájékoztatójának tartalmát megismertem és tudomásul vettem.

Eladó családi ház leírása

Újszegeden most épülő nappali + 3 hálószobás családi ház emelt szerkezetkész állapotban megvásárolható. (Az egyik épület már elkelt!).

Igény esetén a kulcsrakész befejezés is kérhető. A képek az épülő házról és a kivitelező nemrég átadott épületében található lakásokról készültek.

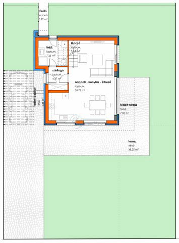
A családi házak 765 nm-s, két utcára nyíló telken helyezkedik el, és mind a két ház saját bejárattal rendelkezik, csak a tárolók érintkeznek egymással. A telek egyenlő arányban oszlik meg a két ingatlan között.

A 101,4 nm-s lakótér mellett 45,3 nm-s teraszt, 12,27 nm-s erkélyt és fedett autóbeállót alakítanak ki. Az épülethez csatlakozik egy 5,22 nm-s tároló helyiség.

A kétszintes épület tervezésénél fontos szempont volt a kényelmes és praktikusan berendezhető életterek kialakítása. A földszinten a tágas és napfényes amerikai-konyhás nappali mellett beépített szekrényekkel kialakítható előszoba, és egy tusolóval felszerelt fürdőszoba WC-el, valamint egy lépcső alatti tároló helyiség található.

Az emeleten teljes értékű lakórészeket alakítottak ki, itt 3 szoba, nagyméretű fürdőszoba és külön WC kapott helyet.

Színezett, prémium minőségű homlokzati nyílászárók kerülnek beépítésre. Az elektromos hálózat védőcsövezéssel és vezetékeléssel kerül átadásra. A falak vakolva és glettelve lesznek.

Az ingatlanok fűtését és hűtését hőszivattyúval oldják meg, padlófűtéssel, illetve mennyezethűtéssel. Ennek, valamint a korszerű építőanyagoknak köszönhetően a ház rezsije rendkívül kedvezően alakul.

CSOK Plusz, kedvező hitel és illetékkedvezmény igénybe vehető!

Várható kulcsrakész átadás 2026. évvége.

A családi házas övezet jó infrastruktúrával rendelkezik, a közelben buszmegálló, posta, boltok, és óvoda is található. A belváros autóval kb. 8-10 perc alatt elérhető.

Bővebb információ miatt keressen bizalommal.

Amennyiben a vásárláshoz hitelre van szüksége, egyedi igényekre szabott lakáshitelekkel állunk rendelkezésére. Bank független hiteltanácsadónk az országban elérhető összes bank és hitelintézet ajánlatát versenyezteti az Ön számára díjmentesen.

Hirdetés feltöltve: 2025. 12. 10. Utoljára módosítva: 2025. 12. 10.

4 szobás családi házak ára Szegeden

Ebből az összehasonlításból megtudhatod, hogyan viszonyul a lakás ára a környékbeli családi házak átlagos árához. Ez nem azt jelenti, hogy ennyivel olcsóbb vagy drágább, mint amennyit a lakás ér, hanem hogy ennyivel tér el a környékbeli átlagtól.

Ennek a m² ára
Szeged m² ár
969 e Ft
857 e Ft -13%
Ennek az ára
Szeged átlagár
125 M Ft m Ft
105.3 m Ft -19%

Az ingatlan elhelyezkedése

Cím: Szeged, földszint

Eladó családi házak a környékről

Eladó családi ház
Eladó családi ház

Szeged

109 M Ft
2 szoba
980 m2
Eladó családi ház
Eladó családi ház

Szeged

195 M Ft
4 szoba
210 m2
Eladó családi ház
Eladó családi ház

Hódmezővásárhely, Kishomok, Új-Kishomok

60 M Ft
3 szoba
100 m2
Eladó családi ház
Eladó családi ház

Szeged

259 M Ft
6 szoba
314 m2
Eladó családi ház
Eladó családi ház

Röszke

15.9 M Ft
3 szoba
80 m2
Eladó családi ház
Eladó családi ház

Szeged

79.9 M Ft
5 szoba
135 m2
Eladó családi ház
Eladó családi ház

Tiszasziget

58.9 M Ft
5 szoba
111 m2
Eladó családi ház
Eladó családi ház

Szeged

149.9 M Ft
10 szoba
310 m2
Eladó családi ház
Eladó családi ház

Szeged

220 M Ft
12 + 2 szoba
760 m2
Eladó családi ház
Eladó családi ház

Szeged, Újszeged, Radnóti utca

329.9 M Ft
12 + 2 szoba
619 m2
Eladó családi ház
Eladó családi ház

Tiszasziget

49.9 M Ft
4 szoba
160 m2
Eladó családi ház
Eladó családi ház

Szeged, Alsóváros, Szabadság tér

89.9 M Ft
3 + 1 szoba
100 m2
Eladó családi ház
Eladó családi ház

Szeged

99.99 M Ft
6 szoba
217 m2
Eladó családi ház
Eladó családi ház

Baks

27.9 M Ft
2 szoba
82 m2
Eladó családi ház
Eladó családi ház

Szeged

129.5 M Ft
1 + 3 szoba
122 m2
Eladó családi ház
Eladó családi ház

Szeged

143 M Ft
4 szoba
116 m2
Eladó családi ház
Eladó családi ház

Szeged

37.425 M Ft
3 szoba
75 m2
Eladó családi ház
Eladó családi ház

Szeged

259 M Ft
6 szoba
314 m2
Eladó családi ház
Eladó családi ház

Szeged

109 M Ft
2 szoba
980 m2
Eladó családi ház
Eladó családi ház

Makó, Ráday 9/b

42 M Ft
1 szoba
150 m2
Eladó családi ház
Eladó családi ház

Szeged, Alsóváros, Szabadság tér

89.9 M Ft
3 + 1 szoba
100 m2
Eladó családi ház
Eladó családi ház

Szeged

160 M Ft
5 szoba
187 m2
Eladó családi ház
Eladó családi ház

Szeged

214 M Ft
5 szoba
203 m2
Eladó családi ház
Eladó családi ház

Szeged

139.9 M Ft
9 szoba
250 m2

Falusi CSOK ingatlanok

Eladó téglalakás
Eladó téglalakás

Balatonszemes

119.9 M Ft
2 szoba
81 m2
Eladó családi ház
Eladó családi ház

Balatonfenyves

430 M Ft
4 szoba
274 m2
Eladó családi ház
Eladó családi ház

Segesd

3.9 M Ft
2 szoba
65 m2
Eladó ikerház
Eladó ikerház

Seregélyes

39.9 M Ft
4 szoba
150 m2
Eladó családi ház
Eladó családi ház

Balatonfőkajár

40 M Ft
2 szoba
64 m2
Eladó családi ház
Eladó családi ház

Farmos

38.9 M Ft
2 szoba
46 m2
Eladó családi ház
Eladó családi ház

Iváncsa

73.9 M Ft
1 + 3 szoba
97 m2
Eladó családi ház
Eladó családi ház

Magyarszék

48.5 M Ft
3 + 1 szoba
86 m2