Eladó családi ház
Szeged
Részletes adatok
Az OTP Bank lakáshitel ajánlataFizetett hirdetés
Induló törlesztőrészlet
101 262 Ft /hóTörlesztőrészlet a 13. hónaptól
129 106 Ft /hóInduló törlesztőrészlet
135 016 Ft /hóTörlesztőrészlet a 13. hónaptól
172 142 Ft /hóA tájékoztatás nem teljes körű és nem minősül ajánlattételnek. Az OTP Évnyerő Lakáshitelei 1 éves türelmi idős kölcsönök, amellyel az első 12 hónapban alacsonyabb a havi törlesztőrészlet. A tőke törlesztését a 13. hónaptól kell megkezdeni.

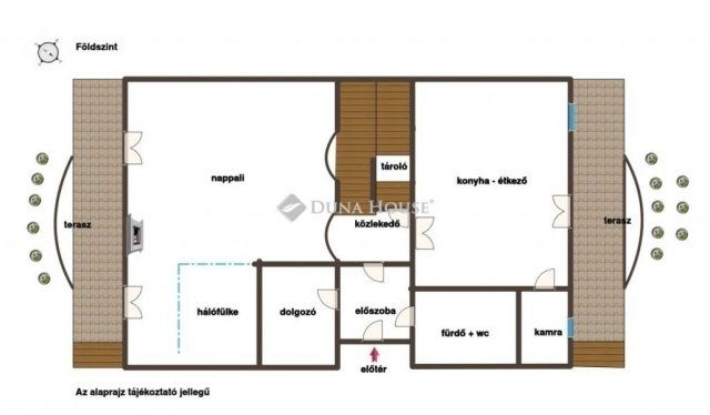
Eladó családi ház leírása
BÉKÉS, CSENDES KÖRNYEZETBEN – TELJESEN FELÚJÍTOTT CSALÁDI HÁZ + MELLÉKÉPÜLET ELADÓ SZEGED-BAKTÓN!
Szeged-Baktó egyik kedvelt utcájában, igényes házak szomszédságában kínálunk eladásra egy napfényes, kétszintes, két különálló lakrésszel rendelkező családi házat, valamint egy 45 m²-es, szintén felújított melléképületet, 1453 m²-es telken.
Főbb jellemzők:
Teljes körű felújítás (2020), korszerű gépészet, hőszigetelt nyílászárók
Két szinten összesen ~166 m² lakótér, külön bejáratú lakrészekkel
Kandalló, gáz cirkó, konvektor, inverteres klíma
Melléképület 2 szobával, konyhával, fürdővel
Szép, parkosított kert automata öntözőrendszerrel, fúrt kúttal
16 m²-es garázs, loggiák, teraszok
Lehetőség 700 m²-es építési telek leválasztására
Nyugodt, zöldövezeti környék, jó infrastruktúrával, kerékpárúttal és buszmegállóval a közelben.
Ideális választás nagycsaládosoknak, összeköltözőknek vagy befektetőknek!
Ha felkeltette érdeklődését, hívjon bizalommal!
Hirdetés feltöltve: 2025. 10. 02. Utoljára módosítva: 2025. 10. 02.
Az ingatlan elhelyezkedése
Cím: Szeged