City Pearl

Eladó családi ház
Sülysáp

72 900 000 Ft72.9 M Ft 607 500 Ft/m2
5 szoba
120 m²
építés éve:2026

Részletes adatok

Telekméret: 1151 m2
Fűtés: Egyéb
Energetikai besorolás: Nem adta meg a hirdető

Az OTP Bank lakáshitel ajánlataFizetett hirdetés

3629998844
Kun-Szabóné Csabai Evelin
referens

Érdekel az OTP Bank kedvezményes lakáshitel ajánlata? *

* A kérdésre „Igen” válasz bejelölése esetén, az „Üzenet küldése” gombra kattintva kijelentem, hogy az OTP Bank Nyrt. Adatkezelési tájékoztatójának tartalmát megismertem és tudomásul vettem.

Eladó családi ház leírása

SÜLYSÁP KEDVELT, FREKVENTÁLT RÉSZÉN ÚJ ÉPÍTÉSŰ, 4 SZOBÁS OTTHON SAJÁT, HATALMAS KERTTEL!
ELSŐ ingatlan = maximális nyugalom és intimitás!

Sülysáp csendes utcájában, egy 1151 m²-es telken kínálok megvételre egy nettó 100 m²-es, modern kialakítású, kiváló elosztású új építésű otthont.

A ELSŐ lakáshoz 550 m² kizárólagos használatú kert tartozik itt tényleg megvalósíthatja elképzeléseit: medence, grillterasz, játszótér a gyerekeknek vagy akár mobilgarázs is kényelmesen elfér.

IDŐTÁLLÓ MŰSZAKI TARTALOM AMIRE HOSSZÚ TÁVON IS SZÁMÍTHAT

30 cm-es nútféderes tégla falazat

15 cm homlokzati szigetelés

10 cm Austrotherm padlószigetelés

25 cm ásványgyapot födémszigetelés

Antracit betoncserép fedés

6 légkamrás, 3 rétegű üvegezésű nyílászárók

Minőség, ami nem csak ma, hanem évek múlva is értéket képvisel.

MODERN, ENERGIATAKARÉKOS MEGOLDÁSOK

10 kW-os monoblokkos hőszivattyú

Teljes körű padlófűtés

Alacsony rezsi, korszerű technológia, kényelmes hőérzet.

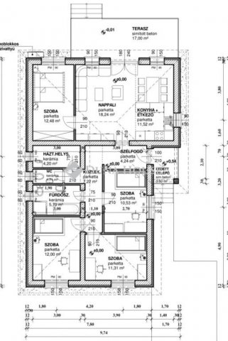
ÁTGONDOLT, CSALÁDBARÁT ELRENDEZÉS

4 külön nyíló, tágas szoba

Amerikai konyhás nappali

Fürdőszoba + külön WC

Külön háztartási helyiség

17 m²-es nyitott terasz

Világos, élhető terek, jól bútorozható alaprajz.

SZEMÉLYRE SZABHATÓ BEFEJEZÉS

A burkolatok és szaniterek az alábbi költségkereten belül választhatók:

Burkolatok: 3.000 Ft/m²-ig

Csaptelepek: 15.000 Ft/db

Kád vagy zuhany: 40.000 Ft

Beltéri ajtók: 35.000 Ft/db

Falsík mögötti WC rendszer

Igény esetén magasabb kategória is elérhető, ráfizetéssel.

KORSZERŰ ELEKTROMOS KIÉPÍTÉS

Szobánként 3-3 konnektor

Nappaliban 4 konnektor + internet + kábel TV

Konyhában 6 konnektor

Helyiségenként világítási kiállás

Riasztó- és kapumozgató előkészítés

MEGBÍZHATÓ, TAPASZTALT KIVITELEZŐ

A kivitelező Kókán több mint 20 ingatlant épített.
Referenciaházak komoly érdeklődés esetén megtekinthetők!

Várható átadás: 2026. Szeptember

Ha egy modern, energiatakarékos, saját kerttel rendelkező új otthont keres Sülysápon, ezt érdemes megnézni!

Hívjon bizalommal, nézzük meg együtt leendő új otthonát!
Független hitelügyintézővel a teljes vásárlási folyamatban segítem.

Referencia szám: HZ072819-ZE

Hirdetés feltöltve: 2026. 02. 25.

5 szobás családi házak ára Sülysápon

Ebből az összehasonlításból megtudhatod, hogyan viszonyul a lakás ára a környékbeli családi házak átlagos árához. Ez nem azt jelenti, hogy ennyivel olcsóbb vagy drágább, mint amennyit a lakás ér, hanem hogy ennyivel tér el a környékbeli átlagtól.

Ennek a m² ára
Sülysáp m² ár
608 e Ft
571 e Ft -6%
Ennek az ára
Sülysáp átlagár
72.9 M Ft m Ft
99.5 m Ft 27%

Az ingatlan elhelyezkedése

Cím: Sülysáp

Eladó családi házak a környékről

Zebegény
Eladó családi ház

Zebegény

69.9 M Ft
6 szoba
245 m²
Budakeszi, Budakeszi kertváros
Eladó családi ház

Budakeszi

140 M Ft
2 szoba
55 m²
Budakeszi, Makkosmária
Eladó családi ház

Budakeszi

100 M Ft
1 szoba
10 m²
Sülysáp
Eladó családi ház

Sülysáp

61.5 M Ft
4 szoba
90 m²
Sülysáp
Eladó családi ház

Sülysáp

129 M Ft
5 + 1 szoba
194 m²
Tápiószentmárton
Eladó családi ház

Tápiószentmárton

48 M Ft
5 szoba
180 m²
Nagykáta
Eladó családi ház

Nagykáta

130 M Ft
3 szoba
203 m²
Sülysáp
Eladó családi ház

Sülysáp

36 M Ft
3 szoba
39 m²
Tápiószentmárton
Eladó családi ház

Tápiószentmárton

7.9 M Ft
2 + 1 szoba
86 m²
Budakeszi, Budakeszi kertváros
Eladó családi ház

Budakeszi

229 M Ft
10 szoba
450 m²
Sülysáp
Eladó családi ház

Sülysáp

52.9 M Ft
3 szoba
67 m²
Érd
Eladó családi ház

Érd

164.9 M Ft
5 szoba
192 m²
Érd, Érdliget - Kutyavár, Érd-liget
Eladó családi ház

Érd

230 M Ft
7 szoba
280 m²
Sülysáp
Eladó családi ház

Sülysáp

44.9 M Ft
3 + 1 szoba
100 m²
Tápiószele
Eladó családi ház

Tápiószele

32.9 M Ft
4 szoba
200 m²
Sülysáp
Eladó családi ház

Sülysáp

31.9 M Ft
2 szoba
57 m²
Sülysáp
Eladó családi ház

Sülysáp

85 M Ft
5 szoba
176 m²
Kerepes
Eladó családi ház

Kerepes

199 M Ft
6 szoba
360 m²
Sülysáp
Eladó családi ház

Sülysáp

59.9 M Ft
6 + 1 szoba
150 m²
Remeteszőlős
Eladó családi ház

Remeteszőlős

399.9 M Ft
5 + 2 szoba
260 m²
Tápiószele
Eladó családi ház

Tápiószele

37.9 M Ft
4 szoba
141 m²
Sülysáp
Eladó családi ház

Sülysáp

23.99 M Ft
2 + 1 szoba
75 m²
Sülysáp
Eladó családi ház

Sülysáp

73.9 M Ft
3 szoba
78 m²
Sülysáp
Eladó családi ház

Sülysáp

110 M Ft
4 szoba
129 m²

Falusi CSOK ingatlanok

Bozsok
Eladó családi ház

Bozsok

290 M Ft
6 szoba
370 m²
Verseg
Eladó családi ház

Verseg

38 M Ft
3 szoba
83 m²
Helesfa
Eladó családi ház

Helesfa

17.999 M Ft
2 szoba
74 m²
Csővár
Eladó családi ház

Csővár

62 M Ft
4 szoba
137 m²
Tésenfa, Kossuth utca 23/a
Eladó családi ház

Tésenfa

5.55 M Ft
1 + 1 szoba
109 m²
Tótszentmárton
Eladó családi ház

Tótszentmárton

120 M Ft
2 szoba
234 m²
Sajóvelezd, Dózsa György út
Eladó családi ház

Sajóvelezd

9.5 M Ft
2 szoba
60 m²
Bakonycsernye
Eladó családi ház

Bakonycsernye

48 M Ft
3 szoba
76 m²