City Pearl

Eladó családi ház
Sülysáp

+ 6 kép 1/9
74 900 000 Ft74.9 M Ft 624 167 Ft/m2
5 szoba
120 m²
építés éve:2026

Részletes adatok

Telekméret: 1079 m2
Fűtés: Egyéb
Energetikai besorolás: Nem adta meg a hirdető

Az OTP Bank lakáshitel ajánlataFizetett hirdetés

3629769724
Nagy Gergő
referens

Érdekel az OTP Bank kedvezményes lakáshitel ajánlata? *

* A kérdésre „Igen” válasz bejelölése esetén, az „Üzenet küldése” gombra kattintva kijelentem, hogy az OTP Bank Nyrt. Adatkezelési tájékoztatójának tartalmát megismertem és tudomásul vettem.

Eladó családi ház leírása

SÜLYSÁP FREKVENTÁLT RÉSZÉN ÚJ ÉPÍTÉSŰ, 4 SZOBÁS SORHÁZ SAJÁT TELEKKEL! ELSŐ INGATLAN NYUGALOM ÉS INTIMITÁS!

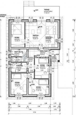
Sülysápon, csendes utcában, egy 1079 m²-es telken kínálok megvételre új építésű, nettó 100 m²-es, kiváló elosztású családi házat.

AZ Első lakáshoz kb 350 m² kizárólagos használatú kert tartozik, amely tökéletes választás pihenéshez, kerti sütögetéshez, medencéhez vagy akár mobilgarázs kialakításához. MŰSZAKI TARTALOM MINŐSÉG, AMI HOSSZÚ TÁVRA SZÓL30 cm-es nútféderes tégla falazatFa födémAntracit betoncserép fedés15 cm EPS homlokzati szigetelés10 cm Austrotherm padlószigetelés25 cm ásványgyapot födémszigetelés6 légkamrás, 3 rétegű üvegezésű nyílászárók MODERN, GAZDASÁGOS FŰTÉS10 kW-os monoblokkos hőszivattyúTeljes körű padlófűtés EXTRA KÉNYELEM17 m²-es nyitott teraszRiasztó- és kapumozgató elektronika előkészítés PRAKTIKUS, CSALÁDBARÁT ELRENDEZÉS4 tágas szobaAmerikai konyhás nappaliFürdőszoba + külön WCKülön háztartási helyiségÁtgondolt, élhető alaprajz VÁLASZTHATÓ MŰSZAKI TARTALOM (KÖLTSÉGKERETEN BELÜL)Hideg- és melegburkolatok: 3.000 Ft/m²-igCsaptelepek: 15.000 Ft/dbKád vagy zuhany: 40.000 FtBeltéri ajtók: 35.000 Ft/dbFalsík mögötti WC rendszer Magasabb kategória is választható, a különbözet ráfizetésével. ELEKTROMOS KIÉPÍTÉSSzobákban: 3-3 konnektorNappaliban: 4 konnektor + internet + kábel TVKonyhában: 6 konnektorHelyiségenként világítási kiállásKábel TV előkészítés MEGBÍZHATÓ KIVITELEZŐA kivitelező Kókán több mint 20 ingatlant épített, referenciaházak komoly érdeklődés esetén megtekinthetők. Várható átadás: 2026. AUGUSZTUS Hívjon bizalommal!Nézzük meg együtt leendő ÚJ OTTHONÁT! Független hitelügyintézővel is segítem a vásárlást.

Az energetikai tanúsítvány készítése folyamatban van, amint rendelkezésre áll, úgy azzal a hirdetés frissítésre kerül.

Ha az ingatlan felkeltette érdeklődését, hívjon bizalommal vagy írjon üzenetet, és egyeztetünk megtekintési időpontot.

A megtekintés díjmentes.

Nagy Gergő
Tel.: +36 70 946 5368
E-mail: nagy.gergo1@dh.hu

Referencia szám: HZ037767

Hirdetés feltöltve: 2026. 02. 25. Utoljára módosítva: 2026. 05. 22.

5 szobás családi házak ára Sülysápon

Ebből az összehasonlításból megtudhatod, hogyan viszonyul a lakás ára a környékbeli családi házak átlagos árához. Ez nem azt jelenti, hogy ennyivel olcsóbb vagy drágább, mint amennyit a lakás ér, hanem hogy ennyivel tér el a környékbeli átlagtól.

Ennek a m² ára
Sülysáp m² ár
624 e Ft
596 e Ft -5%
Ennek az ára
Sülysáp átlagár
74.9 M Ft m Ft
91.6 m Ft 18%

Az ingatlan elhelyezkedése

Cím: Sülysáp

Eladó családi házak a környékről

Sülysáp
Eladó családi ház

Sülysáp

38.99 M Ft
3 szoba
75 m²
Érd
Eladó családi ház

Érd

164.9 M Ft
5 szoba
192 m²
Remeteszőlős
Eladó családi ház

Remeteszőlős

399.9 M Ft
5 + 2 szoba
260 m²
Sülysáp
Eladó családi ház

Sülysáp

36.9 M Ft
3 szoba
65 m²
Érd, Érdliget - Kutyavár, Érd-liget
Eladó családi ház

Érd

230 M Ft
7 szoba
280 m²
Tápiószentmárton
Eladó családi ház

Tápiószentmárton

16.5 M Ft
3 szoba
50 m²
Budakeszi
Eladó családi ház

Budakeszi

130 M Ft
5 szoba
30 m²
Sülysáp
Eladó családi ház

Sülysáp

110 M Ft
4 szoba
129 m²
Sülysáp
Eladó családi ház

Sülysáp

17.9 M Ft
2 szoba
48 m²
Tápiószele
Eladó családi ház

Tápiószele

11.9 M Ft
3 szoba
62 m²
Pécel, Reményik Sándor utca
Eladó családi ház

Pécel

296 M Ft
6 szoba
396 m²
Sülysáp
Eladó családi ház

Sülysáp

36 M Ft
3 szoba
39 m²
Kerepes
Eladó családi ház

Kerepes

199 M Ft
6 szoba
360 m²
Sülysáp
Eladó családi ház

Sülysáp

36.9 M Ft
3 szoba
65 m²
Sülysáp
Eladó családi ház

Sülysáp

74.5 M Ft
3 szoba
122 m²
Sülysáp
Eladó családi ház

Sülysáp

44.9 M Ft
3 + 1 szoba
100 m²
Sülysáp
Eladó családi ház

Sülysáp

74.5 M Ft
3 szoba
122 m²
Sülysáp
Eladó családi ház

Sülysáp

44.9 M Ft
3 + 1 szoba
100 m²
Sülysáp
Eladó családi ház

Sülysáp

74.5 M Ft
3 szoba
122 m²
Sülysáp
Eladó családi ház

Sülysáp

74.5 M Ft
3 szoba
122 m²
Budakeszi, Budakeszi kertváros
Eladó családi ház

Budakeszi

229 M Ft
10 szoba
450 m²
Sülysáp
Eladó családi ház

Sülysáp

38.99 M Ft
3 szoba
75 m²
Sülysáp
Eladó családi ház

Sülysáp

38.99 M Ft
3 szoba
75 m²
Sülysáp
Eladó családi ház

Sülysáp

38.5 M Ft
2 szoba
78 m²

Falusi CSOK ingatlanok

Szabadbattyán
Eladó családi ház

Szabadbattyán

62 M Ft
5 szoba
210 m²
Rakamaz
Eladó családi ház

Rakamaz

86.9 M Ft
5 szoba
280 m²
Hegyeshalom, Margaréta utca 12
Eladó téglalakás

Hegyeshalom

50.09 M Ft
2 szoba
43 m²
Pilisszentkereszt
Eladó családi ház

Pilisszentkereszt

90 M Ft
3 szoba
100 m²
Előszállás
Eladó családi ház

Előszállás

69.9 M Ft
6 szoba
238 m²
Vid
Eladó családi ház

Vid

29.99 M Ft
4 szoba
100 m²
Letenye
Eladó családi ház

Letenye

35.9 M Ft
3 szoba
105 m²
Zsámbok
Eladó családi ház

Zsámbok

54.85 M Ft
3 szoba
120 m²