NapForrás 20 - Buda

Eladó családi ház
Siófok

79 000 000 Ft79 M Ft 1 053 333 Ft/m2
2 szoba
75 m²
építés éve:1970

Részletes adatok

Telekméret: 316 m2
Fűtés: Elektromos
Energetikai besorolás: Nem adta meg a hirdető

Az OTP Bank lakáshitel ajánlataFizetett hirdetés

+36 30 989
Németh Andrásné
referens

Érdekel az OTP Bank kedvezményes lakáshitel ajánlata? *

* A kérdésre „Igen” válasz bejelölése esetén, az „Üzenet küldése” gombra kattintva kijelentem, hogy az OTP Bank Nyrt. Adatkezelési tájékoztatójának tartalmát megismertem és tudomásul vettem.

Eladó családi ház leírása

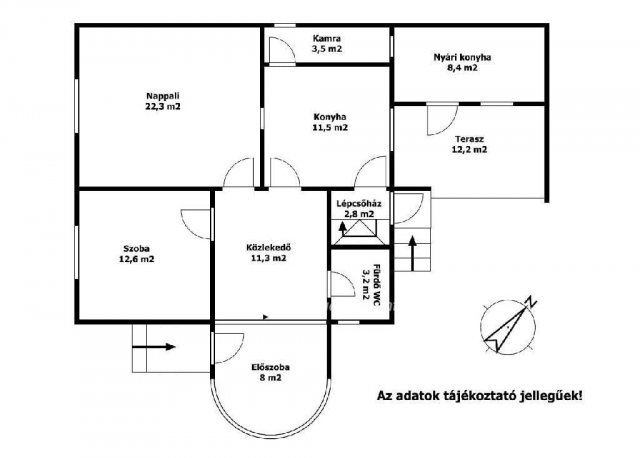
Balaton déli part, Siófok, 75 m2 családi ház eladó. Az ingatlan a Belvároshoz közel, forgalmas út mellett helyezkedik el. A földszintes lakóépület több elemében az elmúlt években felújításra került, nyílászárók nagy részben korszerű műanyag szerkezetek, a külső homlokzat hőszigetelést és új vakolatot kapott, a tető, tetőhéjazat megújult. A belső térben új padlóburkolatok készültek, közlekedőben elektromos padlófűtéssel. A fűtés elektromos infra panelekkel megoldott. A lakótérben hűtő fűtő klímaberendezés került kiépítésre. A jól karbantartott épület kedvező tájolású, déli-nyugati benapozású. A konyhabútor a vételár részét képezi, a többi berendezés további megegyezés tárgya lehet. A telek területe 316 m2. A lakóépület részben alápincézett, mögötte nyári konyha és fedett terasz található. Balaton-part 1500 méterre, autóval 5 perc alatt elérhető. Otthon Start Program. Bővebb információért keressen telefonon!

Hirdetés feltöltve: 2026. 03. 05.

2 szobás családi házak ára Siófokon

Ebből az összehasonlításból megtudhatod, hogyan viszonyul a lakás ára a környékbeli családi házak átlagos árához. Ez nem azt jelenti, hogy ennyivel olcsóbb vagy drágább, mint amennyit a lakás ér, hanem hogy ennyivel tér el a környékbeli átlagtól.

Ennek a m² ára
Siófok m² ár
1053 e Ft
1054 e Ft 0%
Ennek az ára
Siófok átlagár
79 M Ft m Ft
256.4 m Ft 69%

Az ingatlan elhelyezkedése

Cím: Siófok

Eladó családi házak a környékről

Siófok
Eladó családi ház

Siófok

125 M Ft
5 szoba
90 m²
Balatonkeresztúr
Eladó családi ház

Balatonkeresztúr

147.9 M Ft
4 szoba
160 m²
Csurgó
Eladó családi ház

Csurgó

39.9 M Ft
5 szoba
300 m²
Zamárdi
Eladó családi ház

Zamárdi

420 M Ft
10 szoba
500 m²
Siófok
Eladó családi ház

Siófok

330 M Ft
12 szoba
0 m²
Balatonföldvár
Eladó családi ház

Balatonföldvár

78.821 M Ft
4 szoba
93 m²
Siófok
Eladó családi ház

Siófok

69.99 M Ft
3 szoba
67 m²
Siófok
Eladó családi ház

Siófok

549 M Ft
9 szoba
310 m²
Siófok
Eladó családi ház

Siófok

596 M Ft
10 szoba
975 m²
Siófok
Eladó családi ház

Siófok

178.999 M Ft
4 szoba
150 m²
Siófok
Eladó családi ház

Siófok

400 M Ft
15 szoba
500 m²
Látrány
Eladó családi ház

Látrány

74.99 M Ft
4 szoba
138 m²
Siófok
Eladó családi ház

Siófok

149.9 M Ft
6 szoba
168 m²
Balatonfenyves
Eladó családi ház

Balatonfenyves

179.9 M Ft
5 szoba
210 m²
Siófok
Eladó családi ház

Siófok

139.9 M Ft
10 szoba
385 m²
Balatonberény
Eladó családi ház

Balatonberény

128 M Ft
3 + 1 szoba
121 m²
Siófok
Eladó családi ház

Siófok

385.93 M Ft
7 szoba
444 m²
Siófok
Eladó családi ház

Siófok

549 M Ft
9 szoba
310 m²
Marcali
Eladó családi ház

Marcali

149 M Ft
7 + 4 szoba
400 m²
Zamárdi
Eladó családi ház

Zamárdi

126 M Ft
6 szoba
120 m²
Siófok
Eladó családi ház

Siófok

330 M Ft
12 szoba
0 m²
Balatonlelle
Eladó családi ház

Balatonlelle

620 M Ft
12 szoba
1300 m²
Siófok
Eladó családi ház

Siófok

135 M Ft
7 + 2 szoba
250 m²
Siófok
Eladó családi ház

Siófok

735 M Ft
10 + 4 szoba
387 m²

Falusi CSOK ingatlanok

Szabadbattyán
Eladó családi ház

Szabadbattyán

60 M Ft
5 szoba
210 m²
Táborfalva
Eladó családi ház

Táborfalva

36.9 M Ft
1 + 2 szoba
89 m²
Törtel
Eladó családi ház

Törtel

36.4 M Ft
3 szoba
114 m²
Homokbödöge
Eladó családi ház

Homokbödöge

49.9 M Ft
4 + 1 szoba
167 m²
Szob
Eladó sorház

Szob

16 M Ft
2 szoba
45 m²
Mezőlak, Arany János utca
Eladó családi ház

Mezőlak

35.7 M Ft
3 szoba
104 m²
Balatonszemes
Eladó téglalakás

Balatonszemes

125.2 M Ft
2 szoba
50 m²
Tatárszentgyörgy
Eladó családi ház

Tatárszentgyörgy

67 M Ft
4 szoba
92 m²