Astora Márvány8

Eladó családi ház
Siófok

180 000 000 Ft180 M Ft 1 216 216 Ft/m2
5 szoba
148 m2
építés éve:2012

Részletes adatok

Állapot: Felújított
Telekméret: 225 m2
Fűtés: Gázkazán
Energetikai besorolás: Nem adta meg a hirdető

Az OTP Bank lakáshitel ajánlataFizetett hirdetés

+36 70 467
Andrelli Zsuzsanna
referens

Érdekel az OTP Bank kedvezményes lakáshitel ajánlata? *

* A kérdésre „Igen” válasz bejelölése esetén, az „Üzenet küldése” gombra kattintva kijelentem, hogy az OTP Bank Nyrt. Adatkezelési tájékoztatójának tartalmát megismertem és tudomásul vettem.

Eladó családi ház leírása

Az Openhouse Siófok kínálatában eladó a #171916 hivatkozási számú siófoki családi ház.

Eladásra kínálok Siófok kiváló infrastruktúrával rendelkező részén, Fokihegy belvároshoz közeli részén, 225 nm-es telek résszel rendelkező 148m2-es, 2 szintes, duplakomfortos családiházat, amelyben:

- a földszinten: amerika konyhás nappali, hálószoba, fürdőszoba wc-vel, és terasz,

- míg az emeleten 3 hálószoba, fürdőszoba WC-vel, konyha és erkély található.

Minőségi burkolatokkal, ízlésesen kialakított szobák. Műanyag nyílászárókkal, külön mérőkkel rendelkező családiházban a cirkó fűtésen kívül minden szinten díszes cserépkályha és hűtő-fűtő klíma biztosítja minden évszakban a kellemes hőmérsékletet.

Napelemek biztosítják a rendkívül gazdaságos üzemeltetést.

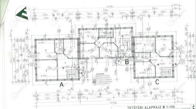
Az épület jelenleg egy 3 házból álló, bejáratott, jól jövedelmező magán szálláshely középső, teljesen szeparált egysége. Külön mérőórákkal rendelkezik. Az alaprajzon B épületként található meg. Kiváló jövedelemforrás lehet jövőbeli tulajdonosának is. Az ingatlan teljes bútorzattal eladó. A szálláshely minden szükséges engedéllyel rendelkezik.

Mindhárom egység eladó, külön-külön vagy egyben is.

Remek lehetőség akkor is ha egy kiváló befektetést keres és akkor is, ha saját részre szeretne otthont, vagy nyaralót!

További információért keressen bizalommal!

Ha felkeltette érdeklődését ez az eladó siófoki családi ház, vagy bármely más családi ház és bővebb információt szeretne, keressen bizalommal.Hivatkozási szám: #171916

Az Openhouse Siófok tagjaként várom Önt az országos hálózatunk teljes kínálatával.

A családi ház vásárláshoz hitelt igényelne? Ingyenes hitelközvetítéssel segít Önnek bankfüggetlen hitelszakértőnk.

További szolgáltatásainkkal (pl. értékbecslés, energetikai tanúsítvány, jogi háttér) is segítjük Önt a vásárlásban.
Az otthon érték. Az ingatlan üzlet.

Hirdetés feltöltve: 2025. 12. 17. Utoljára módosítva: 2026. 01. 13.

5 szobás családi házak ára Siófokon

Ebből az összehasonlításból megtudhatod, hogyan viszonyul a lakás ára a környékbeli családi házak átlagos árához. Ez nem azt jelenti, hogy ennyivel olcsóbb vagy drágább, mint amennyit a lakás ér, hanem hogy ennyivel tér el a környékbeli átlagtól.

Ennek a m² ára
Siófok m² ár
1216 e Ft
1047 e Ft -16%
Ennek az ára
Siófok átlagár
180 M Ft m Ft
245.5 m Ft 27%

Az ingatlan elhelyezkedése

Cím: Siófok

Eladó családi házak a környékről

Eladó családi ház
Eladó családi ház

Siófok

159 M Ft
3 szoba
119 m2
Eladó családi ház
Eladó családi ház

Siófok

178.999 M Ft
4 szoba
150 m2
Eladó családi ház
Eladó családi ház

Siófok, Petőfi Sándor utca

39.5 M Ft
3 szoba
90 m2
Eladó családi ház
Eladó családi ház

Siófok

330 M Ft
12 szoba
Eladó családi ház
Eladó családi ház

Balatonföldvár

78.821 M Ft
4 szoba
93 m2
Eladó családi ház
Eladó családi ház

Siófok

68 M Ft
3 szoba
64 m2
Eladó családi ház
Eladó családi ház

Balatonfenyves

179.9 M Ft
5 szoba
210 m2
Eladó családi ház
Eladó családi ház

Siófok

69.8 M Ft
3 szoba
59 m2
Eladó családi ház
Eladó családi ház

Csákány

59.9 M Ft
6 szoba
365 m2
Eladó családi ház
Eladó családi ház

Balatonfenyves

77 M Ft
7 szoba
120 m2
Eladó családi ház
Eladó családi ház

Siófok

125 M Ft
5 szoba
90 m2
Eladó családi ház
Eladó családi ház

Siófok

385.9 M Ft
7 szoba
444 m2
Eladó családi ház
Eladó családi ház

Balatonlelle

620 M Ft
12 szoba
1300 m2
Eladó családi ház
Eladó családi ház

Siófok

72 M Ft
5 szoba
132 m2
Eladó családi ház
Eladó családi ház

Balatonberény

128 M Ft
3 + 1 szoba
121 m2
Eladó családi ház
Eladó családi ház

Siófok

549 M Ft
9 szoba
310 m2
Eladó családi ház
Eladó családi ház

Balatonlelle

123 M Ft
3 + 2 szoba
140 m2
Eladó családi ház
Eladó családi ház

Balatonszentgyörgy

134 M Ft
4 szoba
170 m2
Eladó családi ház
Eladó családi ház

Siófok

159 M Ft
3 szoba
119 m2
Eladó családi ház
Eladó családi ház

Siófok

69.99 M Ft
3 szoba
67 m2
Eladó családi ház
Eladó családi ház

Zamárdi

126 M Ft
6 szoba
120 m2
Eladó családi ház
Eladó családi ház

Siójut

32 M Ft
4 szoba
108 m2
Eladó családi ház
Eladó családi ház

Siófok

498 M Ft
10 szoba
975 m2
Eladó családi ház
Eladó családi ház

Balatonlelle

78 M Ft
4 szoba
117 m2

Falusi CSOK ingatlanok

Eladó családi ház
Eladó családi ház

Balatonszárszó

440 M Ft
11 szoba
746 m2
Eladó családi ház
Eladó családi ház

Arnót, Petőfi

34.9 M Ft
3 szoba
133 m2
Eladó családi ház
Eladó családi ház

Baks

32.9 M Ft
4 szoba
175 m2
Eladó családi ház
Eladó családi ház

Simontornya

48.9 M Ft
4 szoba
134 m2
Eladó családi ház
Eladó családi ház

Pusztavám

22.9 M Ft
3 szoba
103 m2
Eladó családi ház
Eladó családi ház

Emőd, Vasút utca

14.5 M Ft
2 szoba
60 m2
Eladó családi ház
Eladó családi ház

Borsodgeszt

10.5 M Ft
2 szoba
82 m2
Eladó családi ház
Eladó családi ház

Bakonybánk, Kossuth Lajos utca

45.6 M Ft
2 szoba
90 m2