BAM Living

Eladó családi ház
Siófok

+ 12 kép 1/15
211 000 000 Ft211 M Ft 811 538 Ft/m2
5 szoba
260 m2
építés éve:2000

Részletes adatok

Telekméret: 716 m2
Fűtés: Gázkazán
Energetikai besorolás: Nem adta meg a hirdető

Az OTP Bank lakáshitel ajánlataFizetett hirdetés

+36 70 942
Kalmár Edit Virág
Szeged Széchenyi tér 6 - OTP Ingatlanpont Iroda

Érdekel az OTP Bank kedvezményes lakáshitel ajánlata? *

* A kérdésre „Igen” válasz bejelölése esetén, az „Üzenet küldése” gombra kattintva kijelentem, hogy az OTP Bank Nyrt. Adatkezelési tájékoztatójának tartalmát megismertem és tudomásul vettem.

Eladó családi ház leírása

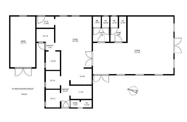
Somogy megyében, Siófok Balatonszéplakon, az Ezüstparton, 260 m2-es ház 716 m2-es telken eladó. Az ingatlan Balatonszéplak központi részén helyezkedik el, csendes, nyugodt környezetben, 350 m-re az Ezüstpart szabadstrandtól. A 2 szintes, 5 szobás ház fűtését cirkó gázkazán biztosítja radiátor hőleadókkal, amit kandalló, illetve klíma egészít ki. Az ingatlan 141 m2-es felső szintjén 3 lakóegység található, a 119 m2-es alsó szintje étteremként és konyhaként került kialakításra. Parkolni a 17 m2-es garázsban, illetve zárt kocsibeállón lehetséges. A ház kialakítása lehetővé teszi a két szint különálló használatát is, így kiváló lehetőség akár több generációs családoknak állandó lakhatásra vagy nyaralásra, valamint üzleti vállalkozásnak, illetve befektetési céllal részben vagy egészben kiadásra is. Budapesti belvárosi lakás értékegyeztetéssel beszámítható. Bővebb információért keressen telefonon!

Hirdetés feltöltve: 2025. 11. 26. Utoljára módosítva: 2026. 01. 12.

5 szobás családi házak ára Siófokon

Ebből az összehasonlításból megtudhatod, hogyan viszonyul a lakás ára a környékbeli családi házak átlagos árához. Ez nem azt jelenti, hogy ennyivel olcsóbb vagy drágább, mint amennyit a lakás ér, hanem hogy ennyivel tér el a környékbeli átlagtól.

Ennek a m² ára
Siófok m² ár
812 e Ft
1047 e Ft 22%
Ennek az ára
Siófok átlagár
211 M Ft m Ft
245.5 m Ft 14%

Az ingatlan elhelyezkedése

Cím: Siófok

Eladó családi házak a környékről

Eladó családi ház
Eladó családi ház

Siófok

549 M Ft
9 szoba
310 m2
Eladó családi ház
Eladó családi ház

Fonyód

112.9 M Ft
4 + 1 szoba
150 m2
Eladó családi ház
Eladó családi ház

Siófok

498 M Ft
10 szoba
975 m2
Eladó családi ház
Eladó családi ház

Siófok

549 M Ft
9 szoba
310 m2
Eladó családi ház
Eladó családi ház

Siófok

178.999 M Ft
4 szoba
150 m2
Eladó családi ház
Eladó családi ház

Marcali

95 M Ft
5 szoba
230 m2
Eladó családi ház
Eladó családi ház

Siófok

330 M Ft
12 szoba
Eladó családi ház
Eladó családi ház

Balatonlelle

620 M Ft
12 szoba
1300 m2
Eladó családi ház
Eladó családi ház

Siófok

69.99 M Ft
3 szoba
67 m2
Eladó családi ház
Eladó családi ház

Siófok

330 M Ft
12 szoba
Eladó családi ház
Eladó családi ház

Siófok

178.999 M Ft
4 szoba
150 m2
Eladó családi ház
Eladó családi ház

Balatonfenyves

77 M Ft
7 szoba
120 m2
Eladó családi ház
Eladó családi ház

Balatonföldvár

78.821 M Ft
4 szoba
93 m2
Eladó családi ház
Eladó családi ház

Csurgó

39.9 M Ft
5 szoba
300 m2
Eladó családi ház
Eladó családi ház

Bábonymegyer

19.9 M Ft
4 szoba
100 m2
Eladó családi ház
Eladó családi ház

Siófok

159 M Ft
3 szoba
119 m2
Eladó családi ház
Eladó családi ház

Siófok

159 M Ft
3 szoba
119 m2
Eladó családi ház
Eladó családi ház

Siófok

400 M Ft
15 szoba
500 m2
Eladó családi ház
Eladó családi ház

Siófok

178.999 M Ft
4 szoba
150 m2
Eladó családi ház
Eladó családi ház

Siófok

68 M Ft
3 szoba
64 m2
Eladó családi ház
Eladó családi ház

Siófok

72 M Ft
5 szoba
132 m2
Eladó családi ház
Eladó családi ház

Siófok

139.9 M Ft
10 szoba
385 m2
Eladó családi ház
Eladó családi ház

Zamárdi

126 M Ft
6 szoba
120 m2
Eladó családi ház
Eladó családi ház

Siójut

32 M Ft
4 szoba
108 m2

Falusi CSOK ingatlanok

Eladó családi ház
Eladó családi ház

Bag

16.9 M Ft
6 szoba
160 m2
Eladó családi ház
Eladó családi ház

Hajmáskér, Kossuth Lajos

49.8 M Ft
3 szoba
110 m2
Eladó családi ház
Eladó családi ház

Dág, Petőfi Sándor utca

36.9 M Ft
4 szoba
105 m2
Eladó családi ház
Eladó családi ház

Nagyberény

23.9 M Ft
3 szoba
69 m2
Eladó családi ház
Eladó családi ház

Vásárosdombó

14.99 M Ft
2 szoba
69 m2
Eladó családi ház
Eladó családi ház

Tab

14.9 M Ft
3 szoba
110 m2
Eladó családi ház
Eladó családi ház

Mikepércs

56 M Ft
3 + 1 szoba
87 m2
Eladó családi ház
Eladó családi ház

Mezőfalva

39 M Ft
3 szoba
77 m2