City Pearl

Eladó családi ház
Siófok

+ 12 kép 1/15
159 900 000 Ft159.9 M Ft 632 016 Ft/m2
7 szoba
253 m2
építés éve:2002

Részletes adatok

Állapot: Átlagos
Telekméret: 959 m2
Fűtés: Egyéb
Energetikai besorolás: Nem adta meg a hirdető

Az OTP Bank lakáshitel ajánlataFizetett hirdetés

+36 70 942
Kalmár Edit Virág
Szeged Széchenyi tér 6 - OTP Ingatlanpont Iroda

Érdekel az OTP Bank kedvezményes lakáshitel ajánlata? *

* A kérdésre „Igen” válasz bejelölése esetén, az „Üzenet küldése” gombra kattintva kijelentem, hogy az OTP Bank Nyrt. Adatkezelési tájékoztatójának tartalmát megismertem és tudomásul vettem.

Eladó családi ház leírása

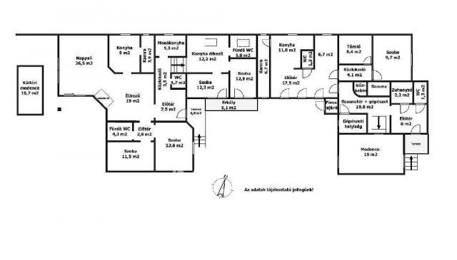
Eladásra kínálok a Balaton déli partján, Siófokon egy 269 m2 összes alapterületű, 2 db családi házat egy telken. Az ingatlan a Belvárosban, központi vegyes területen helyezkedik el. A telek területe 959 m2. A valamikor szebb napokat látott lakóingatlan felújítása után több generáció együttélésére alkalmas. Az utca felőli 116 m2-es lakóház komplett wellness egységgel rendelkezik (beltéri medence, gőzkabin, infra-finn szauna). Az épület részben alápincézett. A hátsó, 152 m2-es lakóház alagsorában egy 44 m2-es dupla garázs is helyet kapott. Ehhez a lakóházhoz a hátsó kertben kültéri medence épült. Az ingatlannak jelenleg nincs fűtése. Az elektromos áram és a gáz ki van építve a lakóházakban, a mérőórák leszerelésre kerültek, ezek újbóli igénylése, kiépítése az új tulajdonos feladata lesz. A Balaton-part, siófoki Nagystrand 500 méter, a városközpont 600 méter távolságban van. Megtekintésért várom megtisztelő hívását!

Hirdetés feltöltve: 2025. 11. 10.

Az ingatlan elhelyezkedése

Cím: Siófok

Eladó családi házak a környékről

Eladó családi ház
Eladó családi ház

Marcali

95 M Ft
5 szoba
230 m2
Eladó családi ház
Eladó családi ház

Balatonlelle

123 M Ft
3 + 2 szoba
140 m2
Eladó családi ház
Eladó családi ház

Siófok

135 M Ft
7 + 2 szoba
250 m2
Eladó családi ház
Eladó családi ház

Siófok

369.99 M Ft
12 szoba
495 m2
Eladó családi ház
Eladó családi ház

Balatonlelle

250 M Ft
12 szoba
260 m2
Eladó családi ház
Eladó családi ház

Siófok

125 M Ft
5 szoba
90 m2
Eladó családi ház
Eladó családi ház

Siófok

92.99 M Ft
3 szoba
90 m2
Eladó családi ház
Eladó családi ház

Siófok

330 M Ft
12 szoba
Eladó családi ház
Eladó családi ház

Siófok

549 M Ft
9 szoba
310 m2
Eladó családi ház
Eladó családi ház

Balatonberény

128 M Ft
3 + 1 szoba
121 m2
Eladó családi ház
Eladó családi ház

Siófok

135 M Ft
7 + 2 szoba
250 m2
Eladó családi ház
Eladó családi ház

Siófok, Petőfi Sándor utca

39.5 M Ft
3 szoba
90 m2
Eladó családi ház
Eladó családi ház

Csákány

59.9 M Ft
6 szoba
365 m2
Eladó családi ház
Eladó családi ház

Balatonlelle

78 M Ft
4 szoba
117 m2
Eladó családi ház
Eladó családi ház

Siófok

330 M Ft
12 szoba
Eladó családi ház
Eladó családi ház

Balatonlelle

620 M Ft
12 szoba
1300 m2
Eladó családi ház
Eladó családi ház

Zamárdi

126 M Ft
6 szoba
120 m2
Eladó családi ház
Eladó családi ház

Balatonföldvár

78.821 M Ft
4 szoba
93 m2
Eladó családi ház
Eladó családi ház

Siófok

71.8 M Ft
3 szoba
66 m2
Eladó családi ház
Eladó családi ház

Siófok

139.9 M Ft
10 szoba
385 m2
Eladó családi ház
Eladó családi ház

Balatonföldvár

223 M Ft
2 + 2 szoba
184 m2
Eladó családi ház
Eladó családi ház

Siófok

159 M Ft
3 szoba
119 m2
Eladó családi ház
Eladó családi ház

Balatonfenyves

77 M Ft
7 szoba
120 m2
Eladó családi ház
Eladó családi ház

Siófok

178.999 M Ft
4 szoba
150 m2

Falusi CSOK ingatlanok

Eladó családi ház
Eladó családi ház

Ságvár

46.9 M Ft
2 szoba
70 m2
Eladó családi ház
Eladó családi ház

Kocsér

19.9 M Ft
1 + 2 szoba
73 m2
Eladó családi ház
Eladó családi ház

Bugac

69.9 M Ft
4 szoba
130 m2
Eladó családi ház
Eladó családi ház

Badacsonytomaj, Kodály Zoltán utca

185 M Ft
6 + 1 szoba
210 m2
Eladó családi ház
Eladó családi ház

Varbóc

7.9 M Ft
2 szoba
86 m2
Eladó családi ház
Eladó családi ház

Balatonfenyves

430 M Ft
4 szoba
274 m2
Eladó családi ház
Eladó családi ház

Onga

65 M Ft
5 szoba
168 m2
Eladó családi ház
Eladó családi ház

Csatár

98.5 M Ft
5 szoba
150 m2