Eladó családi ház
Sátoraljaújhely

+ 17 kép 1/20
30 900 000 Ft30.9 M Ft 347 191 Ft/m2
3 szoba
89 m2
építés éve:1911

Részletes adatok

Állapot: Átlagos
Telekméret: 500 m2
Fűtés: Gázkonvektor
Parkolás: Garázs
Energetikai besorolás: Nem adta meg a hirdető

Az OTP Bank lakáshitel ajánlataFizetett hirdetés

+36 20 361
Spéth Gábor György
referens

Érdekel az OTP Bank kedvezményes lakáshitel ajánlata? *

* A kérdésre „Igen” válasz bejelölése esetén, az „Üzenet küldése” gombra kattintva kijelentem, hogy az OTP Bank Nyrt. Adatkezelési tájékoztatójának tartalmát megismertem és tudomásul vettem.

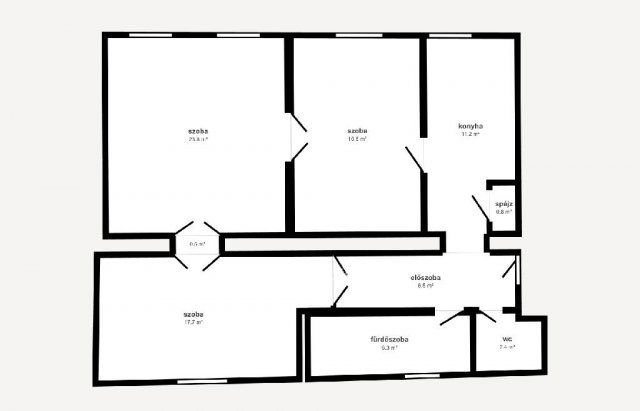
Eladó családi ház leírása

Eladó egy statikailag kifogástalan állapotú, 3 szobás családi ház Sátoraljaújhely kertvárosi részén. A kőből és téglából épült 89 nm-es ingatlanhoz egy 500 m2-es telek is tartozik. A házat 2010-ben teljeskörűen felújították, mely a következő dolgokat foglalta magában: új cserepes tetőszerkezet, lécezés , az ingatlan külső része pedig egy 8 cm vastag szigetelést kapott. A hideg és melegburkolatok (laminált padló + járólapra) szintén cserélve lettek a nyílászárókkal valamint a belső ajtókkal egyetemben. A fűtésről gázkonvektorok , illetve 2 db kiváló állapotú cserépkályha gondoskodik, míg a melegvizet villanybojler biztosítja. Az eredeti belmagasságot 2,8 méterre csökkentették, így rendkívül gazdaságossá vált az ingatlan fűtése a téli szezonban is. A rendezett, térkövezett udvaron egy különálló, téglából épült garázs is található, az utcafrontra pedig egy kovácsoltvas kapu került kialakításra. Az udvaron található egy másik, jelenleg nem lakott épület is külön helyrajzi számon, mely jelképes összegért szintén megvásárolható. Családosoknak valamint egyedülállóknak egyaránt ajánlom ezt az ingatlant, amennyiben pár percre a belvárostól, ám mégis távol a város zajától, nyugodt, kertvárosi környezetben képzelik el a mindennapjaikat. Az ingatlan megfelel az Otthon Start 3%-os hitel feltételeinek. Jöjjön és tekintsük meg együtt! Banki hátterünknek köszönhetően finanszírozási kérdésekben ( CSOK, FALUSI CSOK, OTTHON START,BABAVÁRÓ) is állunk ügyfeleink rendelkezésére. Hívása során hivatkozzon az M312010-es referenciaszámra!

Hirdetés feltöltve: 2025. 09. 25. Utoljára módosítva: 2025. 10. 16.

3 szobás családi házak ára Sátoraljaújhelyen

Ebből az összehasonlításból megtudhatod, hogyan viszonyul a lakás ára a környékbeli családi házak átlagos árához. Ez nem azt jelenti, hogy ennyivel olcsóbb vagy drágább, mint amennyit a lakás ér, hanem hogy ennyivel tér el a környékbeli átlagtól.

Ennek a m² ára
Sátoraljaújhely m² ár
347 e Ft
234 e Ft -48%
Ennek az ára
Sátoraljaújhely átlagár
30.9 M Ft m Ft
27.4 m Ft -13%

Az ingatlan elhelyezkedése

Cím: Sátoraljaújhely

Eladó családi házak a környékről

Eladó családi ház
Eladó családi ház

Sátoraljaújhely, Aradi vértanúk útja

57 M Ft
6 szoba
310 m2
Eladó családi ház
Eladó családi ház

Sátoraljaújhely, Aradi vértanúk útja

25.99 M Ft
3 szoba
84 m2
Eladó családi ház
Eladó családi ház

Sátoraljaújhely, Deák utca

89.9 M Ft
4 szoba
150 m2
Eladó családi ház
Eladó családi ház

Miskolc

149 M Ft
4 szoba
463 m2
Eladó családi ház
Eladó családi ház

Sátoraljaújhely, Tokaji Ferenc utca

31.5 M Ft
3 szoba
69 m2
Eladó családi ház
Eladó családi ház

Miskolc, Vargahegy, Margaréta utca

14.5 M Ft
1 szoba
42 m2
Eladó családi ház
Eladó családi ház

Taktaszada, Thököly utca

37 M Ft
4 + 1 szoba
190 m2
Eladó családi ház
Eladó családi ház

Tarcal

19.9 M Ft
3 szoba
110 m2
Eladó családi ház
Eladó családi ház

Sátoraljaújhely

17.6 M Ft
3 szoba
133 m2
Eladó családi ház
Eladó családi ház

Sátoraljaújhely

22.5 M Ft
3 + 1 szoba
155 m2
Eladó családi ház
Eladó családi ház

Taktaharkány, Magtár utca

9.9 M Ft
3 szoba
100 m2
Eladó családi ház
Eladó családi ház

Tiszalúc

19.9 M Ft
4 szoba
180 m2
Eladó családi ház
Eladó családi ház

Kisgyőr, Rákóczi

59.9 M Ft
3 szoba
100 m2
Eladó családi ház
Eladó családi ház

Nemesbikk, Kossuth utca 3

4.5 M Ft
2 szoba
80 m2
Eladó családi ház
Eladó családi ház

Ózd

8.6 M Ft
5 szoba
160 m2
Eladó családi ház
Eladó családi ház

Sátoraljaújhely

47 M Ft
4 szoba
90 m2
Eladó családi ház
Eladó családi ház

Tiszalúc, Alkotmány utca

16.9 M Ft
4 szoba
137 m2
Eladó családi ház
Eladó családi ház

Sátoraljaújhely, Batsányi János utca

15 M Ft
5 + 3 szoba
262 m2
Eladó családi ház
Eladó családi ház

Sátoraljaújhely

25.99 M Ft
3 szoba
64 m2
Eladó családi ház
Eladó családi ház

Sátoraljaújhely, Aradi vértanúk útja

14.99 M Ft
2 szoba
48 m2
Eladó családi ház
Eladó családi ház

Ózd

14.7 M Ft
3 szoba
95 m2
Eladó családi ház
Eladó családi ház

Ónod, Nyéki utca

20.7 M Ft
2 + 1 szoba
90 m2
Eladó családi ház
Eladó családi ház

Gönc

26 M Ft
3 szoba
130 m2
Eladó családi ház
Eladó családi ház

Ózd, Ózd falu, 48-as út

39.9 M Ft
3 + 1 szoba
300 m2

Falusi CSOK ingatlanok

Eladó családi ház
Eladó családi ház

Rédics

49.9 M Ft
3 szoba
107 m2
Eladó családi ház
Eladó családi ház

Tápióbicske

12.5 M Ft
2 szoba
51 m2
Eladó családi ház
Eladó családi ház

Gyékényes

35.9 M Ft
5 szoba
205 m2
Eladó családi ház
Eladó családi ház

Nyáregyháza

67 M Ft
3 szoba
74 m2
Eladó családi ház
Eladó családi ház

Tápiószőlős

8 M Ft
2 szoba
50 m2
Eladó családi ház
Eladó családi ház

Tiszaszentimre

64.9 M Ft
4 szoba
208 m2
Eladó családi ház
Eladó családi ház

Pusztaföldvár, Dózsa utca 2

3.76 M Ft
1 + 1 szoba
87 m2
Eladó családi ház
Eladó családi ház

Nagyfüged

22.9 M Ft
4 szoba
92 m2