Oasis Residence

Eladó családi ház
Sárbogárd

+ 2 kép 1/5
69 000 000 Ft69 M Ft 676 471 Ft/m2
3 szoba
102 m²
építés éve:2026

Részletes adatok

Telekméret: 800 m2
Fűtés: Egyéb
Energetikai besorolás: A+

Az OTP Bank lakáshitel ajánlataFizetett hirdetés

+36 20 236
Rapai Klaudia
referens

Érdekel az OTP Bank kedvezményes lakáshitel ajánlata? *

* A kérdésre „Igen” válasz bejelölése esetén, az „Üzenet küldése” gombra kattintva kijelentem, hogy az OTP Bank Nyrt. Adatkezelési tájékoztatójának tartalmát megismertem és tudomásul vettem.

Eladó családi ház leírása

Új építésű, személyre szabható álom otthon - már az építkezés megkezdése előtt foglalható!

Fejér megyében, Sárbogárdon, látványtervek alapján kínálunk megvételre egy új építésű, 102 m2-es családi házat, amely már az építkezés megkezdése előtt lefoglalható.

A legnagyobb előnye, hogy a tervek teljes mértékben variálhatók a vevő igényei szerint, így valóban olyan otthon születhet, ami az Ön életstílusához és elképzeléseihez igazodik - egyedi, személyre szabott megoldásokkal.

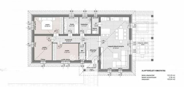
A jelenlegi alaprajz szerint az ingatlanban:

- 3 külön nyíló szoba

- tágas, amerikai konyhás nappali-étkező

- valamint egy fedett terasz kap helyet, ami tökéletes a nyári estékhez, pihenéshez, beszélgetésekhez.

A ház egy 800 m2-es telken épül, így bőven marad tér kertnek, játszótérnek, kocsibeállónak vagy akár egy későbbi medencének is.

Ideális választás családoknak, akik modern, új otthont szeretnének, és azoknak is, akik most alakítanák ki az igényeikre szabott álomházukat.

Érdeklődjön bizalommal!

Hirdetés feltöltve: 2026. 04. 01. Utoljára módosítva: 2026. 04. 01.

3 szobás családi házak ára Sárbogárdon

Ebből az összehasonlításból megtudhatod, hogyan viszonyul a lakás ára a környékbeli családi házak átlagos árához. Ez nem azt jelenti, hogy ennyivel olcsóbb vagy drágább, mint amennyit a lakás ér, hanem hogy ennyivel tér el a környékbeli átlagtól.

Ennek a m² ára
Sárbogárd m² ár
676 e Ft
398 e Ft -70%
Ennek az ára
Sárbogárd átlagár
69 M Ft m Ft
42 m Ft -64%

Az ingatlan elhelyezkedése

Cím: Sárbogárd

Eladó családi házak a környékről

Sárbogárd
Eladó családi ház

Sárbogárd

55 M Ft
5 szoba
140 m²
Sárbogárd
Eladó családi ház

Sárbogárd

36.4 M Ft
4 szoba
110 m²
Sárbogárd
Eladó családi ház

Sárbogárd

59 M Ft
3 szoba
126 m²
Vereb
Eladó családi ház

Vereb

49.9 M Ft
1 + 3 szoba
80 m²
Alcsútdoboz, Szabadság utca
Eladó családi ház

Alcsútdoboz

320 M Ft
12 szoba
620 m²
Vértesacsa
Eladó családi ház

Vértesacsa

86 M Ft
3 + 1 szoba
123 m²
Sárbogárd
Eladó családi ház

Sárbogárd

22.9 M Ft
3 szoba
51 m²
Pusztavám
Eladó családi ház

Pusztavám

22.9 M Ft
3 szoba
103 m²
Sárbogárd
Eladó családi ház

Sárbogárd

11.9 M Ft
1 szoba
28 m²
Sárbogárd, Fehérvári utca 96
Eladó családi ház

Sárbogárd

15.17 M Ft
1 + 1 szoba
78 m²
Kulcs
Eladó családi ház

Kulcs

180 M Ft
8 szoba
167 m²
Gánt, Gánti út
Eladó családi ház

Gánt

29.9 M Ft
2 + 1 szoba
40 m²
Székesfehérvár
Eladó családi ház

Székesfehérvár

69.9 M Ft
3 szoba
95 m²
Sárbogárd
Eladó családi ház

Sárbogárd

31.999 M Ft
2 szoba
48 m²
Mány
Eladó családi ház

Mány

18.5 M Ft
3 szoba
70 m²
Adony
Eladó családi ház

Adony

9.5 M Ft
2 szoba
30 m²
Szabadbattyán
Eladó családi ház

Szabadbattyán

357.518 M Ft
9 + 2 szoba
1053 m²
Etyek
Eladó családi ház

Etyek

160 M Ft
6 szoba
228 m²
Sárbogárd
Eladó családi ház

Sárbogárd

45 M Ft
3 szoba
205 m²
Sárbogárd
Eladó családi ház

Sárbogárd

11.5 M Ft
1 + 1 szoba
105 m²
Pusztaszabolcs
Eladó családi ház

Pusztaszabolcs

143.9 M Ft
4 szoba
149 m²
Sárbogárd
Eladó családi ház

Sárbogárd

26.125 M Ft
4 szoba
134 m²
Sárbogárd
Eladó családi ház

Sárbogárd

59 M Ft
3 szoba
126 m²
Sárbogárd, Kossuth Lajos utca
Eladó családi ház

Sárbogárd

17.9 M Ft
2 szoba
66 m²

Falusi CSOK ingatlanok

Lulla
Eladó családi ház

Lulla

130 M Ft
15 szoba
380 m²
Újszilvás
Eladó családi ház

Újszilvás

49.9 M Ft
8 szoba
310 m²
Szob
Eladó sorház

Szob

16 M Ft
2 szoba
45 m²
Lengyeltóti
Eladó családi ház

Lengyeltóti

26.5 M Ft
2 szoba
85 m²
Szigetcsép, Rákóczi utca
Eladó családi ház

Szigetcsép

63 M Ft
4 szoba
89 m²
Badacsonytördemic
Eladó családi ház

Badacsonytördemic

90 M Ft
3 szoba
130 m²
Újlengyel
Eladó családi ház

Újlengyel

110 M Ft
4 szoba
121 m²
Hosszúpereszteg
Eladó családi ház

Hosszúpereszteg

27.9 M Ft
4 szoba
121 m²