Metrodom

Eladó családi ház
Sajószentpéter

1/1
27 600 000 Ft27.6 M Ft 200 000 Ft/m2
2 szoba
138 m²
építés éve:1956

Részletes adatok

Állapot: Átlagos
Telekméret: 1200 m2
Fűtés: Gázkazán
Parkolás: Kocsibeálló
Közmű: Víz, Gáz, Villany, Csatorna
Komfort: Összkomfortos
Energetikai besorolás: Nem adta meg a hirdető

Az OTP Bank lakáshitel ajánlataFizetett hirdetés

+36 30 165
Kozák Csaba
Newex Ingatlaniroda

Érdekel az OTP Bank kedvezményes lakáshitel ajánlata? *

* A kérdésre „Igen” válasz bejelölése esetén, az „Üzenet küldése” gombra kattintva kijelentem, hogy az OTP Bank Nyrt. Adatkezelési tájékoztatójának tartalmát megismertem és tudomásul vettem.

Eladó családi ház leírása

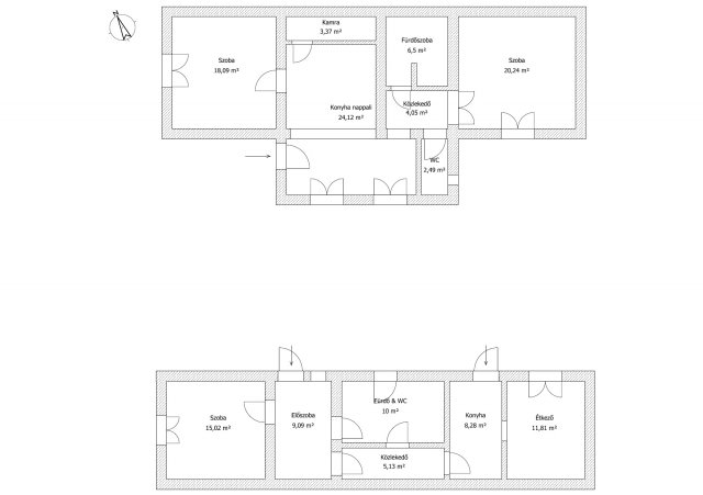
Sajószentpéteren, az edelényi elágazás közelében, egy 1200 m²-es telken két különálló családi ház eladó. Az ingatlan ideális választás lehet több generáció együttélésére, befektetésre vagy akár bérbeadásra is, hiszen a két ház egymástól függetlenül használható.

A telken található épületek 79 m² és 60 m² alapterületűek, az udvar két oldalán, egymással szemben helyezkednek el, így mindkét ház külön életteret biztosít.

Telek
A 1200 m²-es telek hátsó része mintegy 800 m², amely bőséges lehetőséget kínál:
- kertészkedésre
- pihenőkert kialakítására
- további melléképületek vagy garázs építésére
Az udvaron jelenleg lemezgarázs található, de a nagy telek miatt további parkolóhelyek vagy garázsok kialakítása is könnyen megoldható.

Közművek
A két ház külön villany- és gázórával rendelkezik, ami jelentősen megkönnyíti a külön használatot vagy bérbeadást.
A vízóra közös.

Nagyobb családi ház - 79 m²
Az ingatlan összkomfortos, átlagos állapotú, azonnal lakható.
Elrendezése:
- 2 tágas szoba
- kényelmes konyha
- külön fürdőszoba és WC

Jellemzők:
- gázcirkó fűtés, téli fűtési költség kb. 25 000 Ft/hó
- műanyag nyílászárók

Kisebb családi ház – 60 m²
Ez az épület felújítandó állapotú, így új tulajdonosa saját elképzelései szerint alakíthatja.
Elrendezése:
- 1 tágas szoba
- előszoba
- konyha étkezővel
- fürdőszoba és WC egyben

Jellemzők:
- konvektoros fűtés
- villanybojler biztosítja a melegvizet
- fa nyílászárók

Fontos tudnivalók
Mindkét épület esetében a homlokzat és a tető héjazat felújítása időszerű, amely remek lehetőséget ad arra, hogy az új tulajdonos saját ízlése szerint korszerűsítse az ingatlanokat.
„Az ingatlan energetikai besorolásának meghatározása jelenleg folyamatban van.

Hirdetés feltöltve: 2026. 03. 14. Utoljára módosítva: 2026. 05. 12.

2 szobás családi házak ára Sajószentpéteren

Ebből az összehasonlításból megtudhatod, hogyan viszonyul a lakás ára a környékbeli családi házak átlagos árához. Ez nem azt jelenti, hogy ennyivel olcsóbb vagy drágább, mint amennyit a lakás ér, hanem hogy ennyivel tér el a környékbeli átlagtól.

Ennek a m² ára
Sajószentpéter m² ár
200 e Ft
336 e Ft 40%
Ennek az ára
Sajószentpéter átlagár
27.6 M Ft m Ft
36.2 m Ft 24%

Az ingatlan elhelyezkedése

Cím: Sajószentpéter

Eladó családi házak a környékről

Sajószentpéter, Petőfi Sándor utca
Eladó családi ház

Sajószentpéter

10.9 M Ft
3 szoba
54 m²
Ózd
Eladó családi ház

Ózd

25.99 M Ft
4 szoba
198 m²
Putnok
Eladó családi ház

Putnok

11 M Ft
3 szoba
79 m²
Tiszalúc
Eladó családi ház

Tiszalúc

19.9 M Ft
4 szoba
180 m²
Ózd
Eladó családi ház

Ózd

15 M Ft
7 szoba
225 m²
Miskolc
Eladó családi ház

Miskolc

54.99 M Ft
4 szoba
103 m²
Sajószentpéter
Eladó családi ház

Sajószentpéter

10.9 M Ft
3 szoba
54 m²
Ózd
Eladó családi ház

Ózd

13 M Ft
5 szoba
150 m²
Sajószentpéter, Petőfi Sándor utca
Eladó családi ház

Sajószentpéter

10.9 M Ft
3 szoba
54 m²
Sajószentpéter
Eladó családi ház

Sajószentpéter

24.9 M Ft
3 szoba
88 m²
Sajószentpéter
Eladó családi ház

Sajószentpéter

10.9 M Ft
1 szoba
60 m²
Miskolc
Eladó családi ház

Miskolc

110 M Ft
6 szoba
199 m²
Szikszó
Eladó családi ház

Szikszó

89.9 M Ft
3 szoba
100 m²
Miskolc
Eladó családi ház

Miskolc

25.9 M Ft
4 szoba
148 m²
Sajószentpéter
Eladó családi ház

Sajószentpéter

25.9 M Ft
2 szoba
53 m²
Ózd
Eladó családi ház

Ózd

7.3 M Ft
3 szoba
125 m²
Sajószentpéter
Eladó családi ház

Sajószentpéter

109 M Ft
3 + 1 szoba
169 m²
Sajószentpéter
Eladó családi ház

Sajószentpéter

109 M Ft
3 szoba
169 m²
Sajószentpéter
Eladó családi ház

Sajószentpéter

24.9 M Ft
4 szoba
104 m²
Sajószentpéter
Eladó családi ház

Sajószentpéter

10.9 M Ft
1 szoba
60 m²
Sajószentpéter, Borsvezér
Eladó családi ház

Sajószentpéter

49.5 M Ft
6 szoba
220 m²
Rudabánya
Eladó családi ház

Rudabánya

19.9 M Ft
5 szoba
140 m²
Sajószentpéter, Fecske út 5
Eladó családi ház

Sajószentpéter

2.99 M Ft
1 + 1 szoba
79 m²
Sajószentpéter
Eladó családi ház

Sajószentpéter

38 M Ft
4 szoba
150 m²

Falusi CSOK ingatlanok

Kunadacs
Eladó családi ház

Kunadacs

80 M Ft
4 szoba
148 m²
Balinka, Petőfi S. utca 27
Eladó családi ház

Balinka

12.65 M Ft
1 + 2 szoba
79 m²
Tab, Rákóczi utca 45
Eladó családi ház

Tab

17.13 M Ft
1 + 1 szoba
105 m²
Galgahévíz
Eladó családi ház

Galgahévíz

43 M Ft
3 szoba
115 m²
Hosszúpereszteg
Eladó családi ház

Hosszúpereszteg

27.9 M Ft
4 szoba
0 m²
Hegyeshalom, Margaréta utca 12
Eladó téglalakás

Hegyeshalom

32.89 M Ft
1 szoba
27 m²
Kál
Eladó családi ház

Kál

31 M Ft
4 szoba
307 m²
Porva
Eladó családi ház

Porva

74.6 M Ft
3 szoba
115 m²