NapForrás 20 - Buda

Eladó családi ház
Ráckeve

+ 17 kép 1/20
88 900 000 Ft88.9 M Ft 786 726 Ft/m2
4 szoba
113 m²
építés éve:2024

Részletes adatok

Telekméret: 807 m2
Fűtés: Egyéb
Komfort: Összkomfortos
Energetikai besorolás: Nem adta meg a hirdető

Az OTP Bank lakáshitel ajánlataFizetett hirdetés

+36 30 635
Ács Katalin
Szigetszentmiklós OTP Ip

Érdekel az OTP Bank kedvezményes lakáshitel ajánlata? *

* A kérdésre „Igen” válasz bejelölése esetén, az „Üzenet küldése” gombra kattintva kijelentem, hogy az OTP Bank Nyrt. Adatkezelési tájékoztatójának tartalmát megismertem és tudomásul vettem.

Eladó családi ház leírása

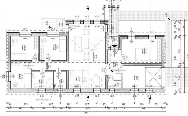
Pest Vármegye, Ráckeve dinamikusan fejlődő részén 113 nm-es önálló családi ház garázzsal eladó. A tégla falazatú ingatlan egy 807 nm-es telken helyezkedik el. A házban található négy szoba, egy amerikai konyhás nappali, fürdőszoba wc-vel, külön wc és egy kamra. Az ingatlan kulcsra készen, konyhabútorral kerül átadásra. Vevő ügyfeleinket díj mentes hiteltanácsadással és a piaci hiteleknél kedvezőbb hitelekkel lepjük meg. További kérdéssel forduljon hozzám bizalommal.

Az energetikai tanúsítvány készítése folyamatban van, amint rendelkezésre áll, úgy azzal a hirdetés frissítésre kerül.

Hirdetés feltöltve: 2026. 04. 22. Utoljára módosítva: 2026. 05. 16.

4 szobás családi házak ára Ráckevén

Ebből az összehasonlításból megtudhatod, hogyan viszonyul a lakás ára a környékbeli családi házak átlagos árához. Ez nem azt jelenti, hogy ennyivel olcsóbb vagy drágább, mint amennyit a lakás ér, hanem hogy ennyivel tér el a környékbeli átlagtól.

Ennek a m² ára
Ráckeve m² ár
787 e Ft
755 e Ft -4%
Ennek az ára
Ráckeve átlagár
88.9 M Ft m Ft
81.9 m Ft -9%

Az ingatlan elhelyezkedése

Cím: Ráckeve

Eladó családi házak a környékről

Ráckeve
Eladó családi ház

Ráckeve

88.9 M Ft
4 szoba
113 m²
Ráckeve
Eladó családi ház

Ráckeve

96 M Ft
11 szoba
360 m²
Budakeszi, Makkosmária
Eladó családi ház

Budakeszi

100 M Ft
1 szoba
10 m²
Ráckeve
Eladó családi ház

Ráckeve

110 M Ft
4 szoba
157 m²
Ráckeve
Eladó családi ház

Ráckeve

110 M Ft
5 szoba
104 m²
Ráckeve, Keszeg sor
Eladó családi ház

Ráckeve

96 M Ft
11 szoba
360 m²
Ráckeve
Eladó családi ház

Ráckeve

84.9 M Ft
4 szoba
160 m²
Őrbottyán
Eladó családi ház

Őrbottyán

154 M Ft
4 + 1 szoba
115 m²
Dunakeszi
Eladó családi ház

Dunakeszi

250 M Ft
4 szoba
180 m²
Ráckeve
Eladó családi ház

Ráckeve

137 M Ft
3 szoba
127 m²
Tápiószentmárton
Eladó családi ház

Tápiószentmárton

48 M Ft
5 szoba
180 m²
Ráckeve
Eladó családi ház

Ráckeve

24.5 M Ft
2 szoba
35 m²
Remeteszőlős
Eladó családi ház

Remeteszőlős

399.9 M Ft
5 + 2 szoba
260 m²
Ráckeve
Eladó családi ház

Ráckeve

175 M Ft
5 szoba
270 m²
Tápiószentmárton
Eladó családi ház

Tápiószentmárton

7.9 M Ft
2 + 1 szoba
86 m²
Ráckeve
Eladó családi ház

Ráckeve

109.9 M Ft
4 szoba
135 m²
Tápiószele
Eladó családi ház

Tápiószele

45 M Ft
6 szoba
360 m²
Budaörs
Eladó családi ház

Budaörs

400 M Ft
12 szoba
583 m²
Ráckeve
Eladó családi ház

Ráckeve

87.9 M Ft
4 szoba
104 m²
Ráckeve
Eladó családi ház

Ráckeve

720 M Ft
10 szoba
0 m²
Tápiószele
Eladó családi ház

Tápiószele

11.9 M Ft
3 szoba
62 m²
Ráckeve
Eladó családi ház

Ráckeve

67.9 M Ft
4 szoba
154 m²
Tápiószele
Eladó családi ház

Tápiószele

32.9 M Ft
4 szoba
200 m²
Budakeszi, Budakeszi kertváros
Eladó családi ház

Budakeszi

229 M Ft
10 szoba
450 m²

Falusi CSOK ingatlanok

Balatonszemes
Eladó téglalakás

Balatonszemes

123.3 M Ft
2 szoba
0 m²
Pilisszentkereszt
Eladó családi ház

Pilisszentkereszt

68.9 M Ft
2 szoba
50 m²
Lajoskomárom
Eladó családi ház

Lajoskomárom

22.9 M Ft
2 szoba
66 m²
Tápióság
Eladó családi ház

Tápióság

57 M Ft
4 szoba
94 m²
Galgahévíz
Eladó családi ház

Galgahévíz

43 M Ft
3 szoba
115 m²
Demjén
Eladó családi ház

Demjén

108 M Ft
5 szoba
200 m²
Vatta
Eladó családi ház

Vatta

28.3 M Ft
2 szoba
56 m²
Tápiószőlős
Eladó családi ház

Tápiószőlős

39.9 M Ft
4 szoba
120 m²