River Life

Eladó családi ház
Ráckeve

+ 3 kép 1/6
75 000 000 Ft75 M Ft 797 872 Ft/m2
4 szoba
94 m2
építés éve:2026

Részletes adatok

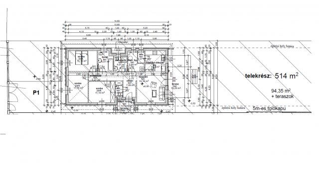
Telekméret: 514 m2
Fűtés: Egyéb
Parkolás: Kocsibeálló
Közmű: Víz, Villany, Csatorna, Szélessáv, KábelTV, Telefon
Energetikai besorolás: Nem adta meg a hirdető

Az OTP Bank lakáshitel ajánlataFizetett hirdetés

+36 70 638
Nefelejcs Ingatlaniroda
Nefelejcs Ingatlaniroda

Érdekel az OTP Bank kedvezményes lakáshitel ajánlata? *

* A kérdésre „Igen” válasz bejelölése esetén, az „Üzenet küldése” gombra kattintva kijelentem, hogy az OTP Bank Nyrt. Adatkezelési tájékoztatójának tartalmát megismertem és tudomásul vettem.

Eladó családi ház leírása

Ráckevén, a Szulla részen, eladó egy új építésű, önálló, körbejárható, 94,34 m2-es, (+19.2 m2 terasz), nappali plusz három hálószobás családi ház, 514 m2-es telken. Átadás: 2026 május. A burkolatokat, belső ajtókat, szanitereket (kád, mosdó, wc, csaptelep, stb.) még ki lehet választani. Start hitel, csokhitel igénybe vehető! A fűtést 10 kilowattos Fischer hőszivattyú biztosítja, padlófűtésen keresztül.

MŰSZAKI LEÍRÁS


Szerkezeti Rétegrendek:
1. hidegpadló rétegrendje: - 1,5 cm kerámia + rag- habarcs
-5 cm aljzatbeton
-1 fólia technológiai szig.
-11 cm lépésálló hőszigetelés
-1 rtg. bit. vastaglemez talajnál. ell- szig.
-6 cm aljzatbeton méretezetlen vashálóval
-kavics feltöltés
-termet talaj
2 melegpadló rétegrendje
-0,5 cm laminált parketta
-cm alátétfilc
-5 cm aljzatbeton
-1 fólia technológiai szig.
-11 cm lépésálló hőszigetelés
-1 rtg. bit. vastaglemez talajnál- ell- szig-
-6 cm aljzatbeton méretezetlen vashálóval
-kavics feltöltés - termet talaj
3. zárófödém:
- fogópár, közte
Alapozás:
30 cm szálas hősigetelés - 1 rE- párazáró fólia
-mggesztö szerkezet
-1,5 minősített tűzálló gipszkarton burkolat
4. tető rétegrendje:
-égetett agyagcserép fedés

-ellenléc
-alátétfólia
-15 cm 8/15 szaruzat, 80 cm-ként
5. fal rétegrendje
-1 cm gépi vakolat
-30 cm Putnoki HB30 N+F
-10 cm PS hőszigetelés +vakolatrendszer
6. terasz rétegrendje: - 1 cm fagyálló kerámia -Rugalmas kültéri rag- Habarcs, rug- fugázóanyaggal
-10 cm aljzatbeton méretezetlen vashálóval - 10 cm kavicsfeltöltés
-tömörített talaj feltöltés
-termet talaj

Monolit beton sávalap

Szigetelés:A teherhordó falak alatt és a padlószerkezetben egy réteg bitumenes vastag lemez szigetelés készül.
Falszerkezet• A teherhordó külső falak 30 cm es Bakony Therm HB30 N+F téglából 10 cm hőszigetelő vakolatrendszerrel.
Födémek:A zárófödém 80 cm-ként elhelyezett 5-7,5/15-ös fogópárokból áll, alul függesztett gipszkarton burkolattal, párazáró fólia+30 cm szálas hőszigetelés elhelyezésével.
Áthidalók:A nyílásokkal áttört főfalakon LEIER áthidalók, és XPS hungarocell köpenyzsaluzatos monolit vb. áthidalók biztosítják a kellő kiváltást.
Válaszfalak: A 10 cm vastag YTONG válaszfaltéglából, 1-1-6-os habarcsból és három soronként lágyvas huzallal készülnek.
Tetőszerkezet: A tervezett tetőszerkezet torokgerendás fedélszék- Minden beépítésre kerülő faszerkezet láng és gombamentesítő kezelést kap.
Héjalás:A tetőfedés anyaga barna TERRÁN cserép fedés-
Homlokzat: A homlokzat és a lábazat hőszigetelt nemes vékonyvakolat rendszerrel kerül kialakításra a terveken jelölt színekben. Az épület körül 100 cm széles térkő burkolat készül.
Bádogos szerkezetek: Az ereszcsatorna és a lefolyó szerkezetek horganyzott acél lemez ereszcsatornából, a járda síkja alá kerülnek beépítve és szikkasztó gödörbe vezetve.
Ereszdeszkázás: látszó szarufa, fölülről lambériázva.
Bejárati ajtó: Fehér, műanyag, öt ponton záródó, részben üvegezett ajtók.
Belső ajtók:Utólag beépíthető MDF folding tokos ajtó. rozsdamentes kilincs és címke.
Ablakok és teraszajtók: Rehau minőségű, fehér műanyag bukó-nyíló illetve bukó és fix ablakok, kívül , belül fehér műanyag könyöklő borítással. Rehau minőségű, fehér műanyag nyíló erkélyajtók. A külső nyílászárók redőny és szúnyogháló, illetve reluxa nélkül, fehér kilinccsel kerülnek kialakításra.
Üvegezés:3 rétegű üvegezés: WIm2K Uw—l ,1W/m2K.
Aljzat : Az aljzat 11 cm hőszigeteléssel készül.
Belső csapólétra: fa szerkezetű kihajtható létrán keresztül biztosított a feljutás a padlástérbe.
Padló és falburkolatok: (ajánlás)
Szobák: Laminált parketta (klick-es)
Konyha, étkező, fürdőszoba, wc, kamra: mázas kerámia hálóba rakva (30x30 cm-es lapokból)
Nappali: Laminált parketta, vagy mázas kerámia, hálóba rakva ( 30x30 cm-es lapokból)
Fürdőszoba, WC: 2,10-ig mázas kerámia (20x30 cm méretben)
Konyha: a mosogató és a munkapult környezetében kb 3m2 felületen mázas kerámia (10x1 Ocm-es lapokból)
A szaniterek és burkolatok keretösszege: 1 000 000 Ft bruttó
Külön megegyezés alapján a burkolólapok mérete a fentiektől eltérhet.
Festés mázolás: Fal és mennyezet : 2 rtg. fehér diszperziós festés a mellékhelyiségekben, a szobákban és a nappaliban 2 szín kikeverése választható. Víz és szennyvíz szerelés: Az alapárban a víz és szennyvíz csövek műanyag csőrendszerrel készülnek az aljzatban elhelyezve. A szaniterek költsége a burkolatoknál leírtak szerinti összeghatárig biztosított.
Fűtés és melegvíz ellátás:Hőlégcserélős fűtés rendszer padlófűtéssel.
Villanyszerelés: Az elektromos vezetékelés védőcsőben kerül elhelyezésre. A komplett elektromos szerelés az MSZ 172/1 és az MSZ 1600 rendelkezései szerint készül. A mérőszekrény az épület falán helyezkedik el. A biztonsági kismegszakító automaták a bejárati ajtó közeiében, az előírások szerint kerül elhelyezésre. A szerelvényezés SCHNEIDER minőségű szerelvényekkel történik-
A telefon, tv antenna (kábel Tv), és a riasztó számára védőcső és csatlakozó dobozok kiépítése igényelhető.
Az alapárban szereplő szerelvények száma:
A lakásokban automata kismegszakít

Hirdetés feltöltve: 2026. 01. 14. Utoljára módosítva: 2026. 01. 14.

4 szobás családi házak ára Ráckevén

Ebből az összehasonlításból megtudhatod, hogyan viszonyul a lakás ára a környékbeli családi házak átlagos árához. Ez nem azt jelenti, hogy ennyivel olcsóbb vagy drágább, mint amennyit a lakás ér, hanem hogy ennyivel tér el a környékbeli átlagtól.

Ennek a m² ára
Ráckeve m² ár
798 e Ft
775 e Ft -3%
Ennek az ára
Ráckeve átlagár
75 M Ft m Ft
89 m Ft 16%

Az ingatlan elhelyezkedése

Cím: Ráckeve

Eladó családi házak a környékről

Eladó családi ház
Eladó családi ház

Ráckeve

42.8 M Ft
3 szoba
150 m2
Eladó családi ház
Eladó családi ház

Ráckeve, Keszeg sor

96 M Ft
11 szoba
360 m2
Eladó családi ház
Eladó családi ház

Ráckeve, Duna közeli utca

96 M Ft
4 szoba
240 m2
Eladó családi ház
Eladó családi ház

Ráckeve

99.9 M Ft
4 szoba
100 m2
Eladó családi ház
Eladó családi ház

Budaörs, Városközpont utca

119.5 M Ft
5 + 1 szoba
140 m2
Eladó családi ház
Eladó családi ház

Ráckeve

84.9 M Ft
4 szoba
160 m2
Eladó családi ház
Eladó családi ház

Tápiószentmárton

48 M Ft
5 szoba
180 m2
Eladó családi ház
Eladó családi ház

Tápiószele

37.9 M Ft
4 szoba
141 m2
Eladó családi ház
Eladó családi ház

Budakeszi, Budakeszi kertváros

229 M Ft
10 szoba
450 m2
Eladó családi ház
Eladó családi ház

Zebegény

69.9 M Ft
6 szoba
245 m2
Eladó családi ház
Eladó családi ház

Ráckeve

89.9 M Ft
5 szoba
136 m2
Eladó családi ház
Eladó családi ház

Ráckeve

159.9 M Ft
3 szoba
127 m2
Eladó családi ház
Eladó családi ház

Ráckeve

79.9 M Ft
5 szoba
97 m2
Eladó családi ház
Eladó családi ház

Ráckeve

85.9 M Ft
3 szoba
82 m2
Eladó családi ház
Eladó családi ház

Tápiószőlős

34.9 M Ft
5 szoba
210 m2
Eladó családi ház
Eladó családi ház

Budakeszi, Makkosmária

100 M Ft
1 szoba
10 m2
Eladó családi ház
Eladó családi ház

Leányfalu

237 M Ft
9 szoba
800 m2
Eladó családi ház
Eladó családi ház

Budaörs, Bányász utca

385 M Ft
6 szoba
300 m2
Eladó családi ház
Eladó családi ház

Ráckeve

88.9 M Ft
4 szoba
113 m2
Eladó családi ház
Eladó családi ház

Tápiószentmárton

7.9 M Ft
2 + 1 szoba
86 m2
Eladó családi ház
Eladó családi ház

Budakeszi, Budakeszi kertváros

140 M Ft
2 szoba
55 m2
Eladó családi ház
Eladó családi ház

Ráckeve

77 M Ft
4 szoba
102 m2
Eladó családi ház
Eladó családi ház

Ráckeve

110 M Ft
3 szoba
135 m2
Eladó családi ház
Eladó családi ház

Kerepes

81.99 M Ft
5 szoba
102 m2

Falusi CSOK ingatlanok

Eladó családi ház
Eladó családi ház

Somogymeggyes

14 M Ft
3 szoba
86 m2
Eladó családi ház
Eladó családi ház

Pánd

31.5 M Ft
4 szoba
74 m2
Eladó családi ház
Eladó családi ház

Ceglédbercel

67 M Ft
5 szoba
174 m2
Eladó családi ház
Eladó családi ház

Jánoshida

5.9 M Ft
2 szoba
66 m2
Eladó családi ház
Eladó családi ház

Hercegszántó

7 M Ft
3 szoba
120 m2
Eladó családi ház
Eladó családi ház

Szil

25 M Ft
2 szoba
90 m2
Eladó családi ház
Eladó családi ház

Fonyód

89.9 M Ft
7 szoba
151 m2
Eladó családi ház
Eladó családi ház

Csengőd

42 M Ft
2 szoba
81 m2