Metrodom

Eladó családi ház
Putnok

+ 17 kép 1/20
14 000 000 Ft14 M Ft 116 667 Ft/m2
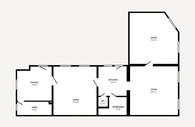
3 szoba
120 m2
építés éve:1950

Részletes adatok

Állapot: Átlagos
Telekméret: 650 m2
Fűtés: Egyéb
Energetikai besorolás: Nem adta meg a hirdető

Az OTP Bank lakáshitel ajánlataFizetett hirdetés

+36 70 866
Cselényi Norbert
OTP IP Miskolc Corvin 1-3

Érdekel az OTP Bank kedvezményes lakáshitel ajánlata? *

* A kérdésre „Igen” válasz bejelölése esetén, az „Üzenet küldése” gombra kattintva kijelentem, hogy az OTP Bank Nyrt. Adatkezelési tájékoztatójának tartalmát megismertem és tudomásul vettem.

Eladó családi ház leírása

Kisvárosi életen gondolkodik? Szeretne egy csendes, nyugodt környezetben lakni elérhető áron? Ha igen, ne keressen tovább, ez az ingatlan csak Önre vár Putnokon! Központban, de mégis kellően messze az út zajától. Sétatávolságra minden, ami a mindennapi élethez elengedhetetlen lehet (bolt, posta, iskola, tömegközlekedés), ezáltal családosok számára is megfelelő.

Magáról az ingatlanról:

Putnok frekventált részén eladó egy 120 nm-es egyszintes családi ház, 650 nm-es telken.
A ház a 60-as években épült téglából és kőből.
Átlagos állapotú, karban volt tartva az évek során. Kis ráfordítással tökéletes otthon varázsolható belőle.
Az ingatlanban 3 szoba található, amiből egy nappaliként funkcionál.
A konyha mérete lehetőséget ad arra, hogy az egész család komfortosan mozoghasson benne.
Fürdő, WC külön helyiségben található.
Redőnnyel ellátott, eredeti fa nyílászárók vannak.
Az otthon melegéről kialakított fűtésrendszer gondoskodik lapradiátorokon keresztül. A központi egység egy kombi gázkazán, mellette alternatív lehetőségként egy vegyes tüzelésű kazán szolgál.
A melegvíz ellátását villanybojler látja el.
A szobák laminált padlóval, a többi helyiség járólappal burkolt.
A ház melletti melléképület akár garázsként, akár szerszámtárolóként is funkcionálhat.
A telek nagy része füvesített, ahol egy mesés kis kert is kialakítható.
A telken található mobil fészer nem képezi az eladás tárgyát.

Amennyiben a hirdetés felkeltette az érdeklődését, esetleg lenne még kérdése, hívjon bizalommal!
Személyes megtekintés hétvégén lehetséges.
OTP banki hátterünkkel díjmentesen-soron kívüli ügyintézést biztosítunk ügyfeleink számára.
(OTTHONSTART HITEL 3%, FALUSI CSOK,CSOKPLUSZ, BABAVÁRÓ, JELZÁLOGHITEL, SZEMÉLYI KÖLCSÖN)
REFERENCIASZÁM: M315890

Referencia szám: M315890-ZE

Hirdetés feltöltve: 2025. 11. 20. Utoljára módosítva: 2026. 01. 13.

3 szobás családi házak ára Putnokon

Ebből az összehasonlításból megtudhatod, hogyan viszonyul a lakás ára a környékbeli családi házak átlagos árához. Ez nem azt jelenti, hogy ennyivel olcsóbb vagy drágább, mint amennyit a lakás ér, hanem hogy ennyivel tér el a környékbeli átlagtól.

Ennek a m² ára
Putnok m² ár
117 e Ft
138 e Ft 16%
Ennek az ára
Putnok átlagár
14 M Ft m Ft
13.5 m Ft -4%

Az ingatlan elhelyezkedése

Cím: Putnok

Eladó ingatlanok a környékről

Eladó családi ház
Eladó családi ház

Gönc, Kossuth Lajos utca

26 M Ft
2 + 1 szoba
130 m2
Eladó családi ház
Eladó családi ház

Putnok

22.9 M Ft
3 szoba
143 m2
Eladó családi ház
Eladó családi ház

Putnok, Petőfi Sándor út 21

9.97 M Ft
1 + 1 szoba
163 m2
Eladó családi ház
Eladó családi ház

Nemesbikk, Kossuth utca 3

4.5 M Ft
2 szoba
80 m2
Eladó családi ház
Eladó családi ház

Edelény

31.5 M Ft
2 szoba
75 m2
Eladó panellakás
Eladó panellakás

Miskolc

22.9 M Ft
2 szoba
35 m2
Eladó panellakás
Eladó panellakás

Sajóbábony

16.5 M Ft
2 szoba
51 m2
Eladó családi ház
Eladó családi ház

Ózd

15 M Ft
7 szoba
225 m2
Eladó családi ház
Eladó családi ház

Putnok

14 M Ft
3 szoba
120 m2
Eladó családi ház
Eladó családi ház

Putnok

14 M Ft
3 szoba
120 m2
Eladó családi ház
Eladó családi ház

Putnok

11 M Ft
3 szoba
79 m2
Eladó családi ház
Eladó családi ház

Miskolc

25.9 M Ft
4 szoba
148 m2
Eladó családi ház
Eladó családi ház

Taktaszada, Thököly utca

37 M Ft
4 + 1 szoba
190 m2
Eladó családi ház
Eladó családi ház

Ózd, 48-as út

39.9 M Ft
3 + 1 szoba
300 m2
Eladó családi ház
Eladó családi ház

Putnok

15.9 M Ft
3 szoba
118 m2
Eladó családi ház
Eladó családi ház

Putnok, Táncsics Mihály út

18.5 M Ft
4 szoba
100 m2
Eladó családi ház
Eladó családi ház

Miskolc, Vargahegy, Margaréta utca

14.5 M Ft
1 szoba
42 m2
Eladó családi ház
Eladó családi ház

Tiszalúc

19.9 M Ft
4 szoba
180 m2
Eladó panellakás
Eladó panellakás

Miskolc

26.9 M Ft
2 szoba
57 m2
Eladó családi ház
Eladó családi ház

Putnok

17.5 M Ft
3 + 1 szoba
104 m2
Eladó panellakás
Eladó panellakás

Miskolc

41.5 M Ft
3 szoba
58 m2
Eladó családi ház
Eladó családi ház

Putnok

35 M Ft
3 szoba
158 m2
Eladó téglalakás
Eladó téglalakás

Miskolc

46.9 M Ft
3 szoba
72 m2
Eladó családi ház
Eladó családi ház

Miskolc

149 M Ft
4 szoba
463 m2

Falusi CSOK ingatlanok

Eladó családi ház
Eladó családi ház

Lesenceistvánd

75 M Ft
2 szoba
90 m2
Eladó családi ház
Eladó családi ház

Balatonszárszó

178 M Ft
6 szoba
260 m2
Eladó családi ház
Eladó családi ház

Szentbékkálla, Szentbékkálla

63.9 M Ft
2 szoba
143 m2
Eladó családi ház
Eladó családi ház

Nagyhegyes

80 M Ft
2 szoba
94 m2
Eladó ikerház
Eladó ikerház

Balatonakali

129 M Ft
4 szoba
145 m2
Eladó családi ház
Eladó családi ház

Letenye

49.9 M Ft
7 szoba
220 m2
Eladó családi ház
Eladó családi ház

Újszilvás

23 M Ft
3 + 1 szoba
100 m2
Eladó családi ház
Eladó családi ház

Nyalka

30 M Ft
2 szoba
78 m2