Eladó családi ház
Putnok

+ 17 kép 1/20
15 000 000 Ft15 M Ft 125 000 Ft/m2
3 szoba
120 m2
építés éve:1930

Részletes adatok

Állapot: Felújítandó
Telekméret: 950 m2
Fűtés: Egyéb
Energetikai besorolás: Nem adta meg a hirdető

Az OTP Bank lakáshitel ajánlataFizetett hirdetés

+36 70 393
Czugh Péter
OTP IP Miskolc Corvin 1-3

Érdekel az OTP Bank kedvezményes lakáshitel ajánlata? *

* A kérdésre „Igen” válasz bejelölése esetén, az „Üzenet küldése” gombra kattintva kijelentem, hogy az OTP Bank Nyrt. Adatkezelési tájékoztatójának tartalmát megismertem és tudomásul vettem.

Eladó családi ház leírása

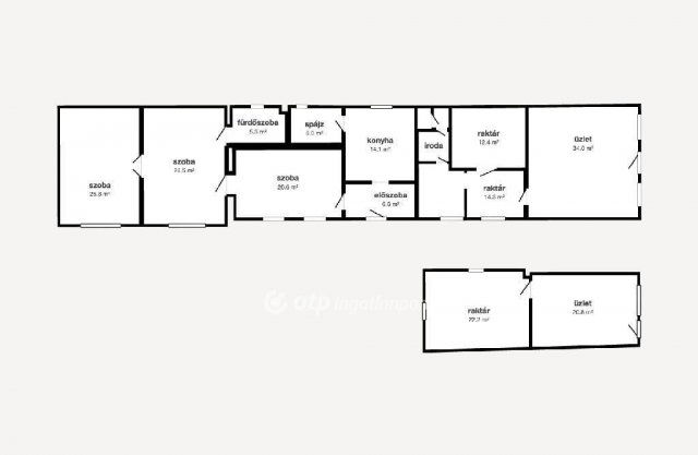
Eladó VÁLLALKOZÁSRA is alkalmas családi ház Putnok belvárosában! Az üzletsoron eladó egy vállalkozásra is alkalmas, 2 üzlethelyiséggel rendelkező családi ház nagy udvarral, gépkocsi beállási lehetőséggel. Az egyik üzlethelyiségben jelenleg is működik egy húsbolt, ennek megfelelően csempézett, klimatizált. A másik üzletheliség és a lakóépület felújítandó allapotú. Az épület tégla falazatú, jó állapotú fa gerendás, pala tetővel. A ház alatt pince, a 950m2 telken fúrt kút található. Kiváló lehetőség vállalkozás indítására vagy befektetésre, frekventált elhelyezkedésének köszönhetően. Ingatlanirodánk ügyvédi háttérrel, babaváró hitel, CSOK Plusz, valamint kamatkedvezményes hitel ügyintézésével támogatja ügyfelei ingatlanvásárlását! M312710
Érdeklődni: Czugh Péter 70-3934954

Hirdetés feltöltve: 2025. 10. 28. Utoljára módosítva: 2025. 10. 28.

3 szobás családi házak ára Putnokon

Ebből az összehasonlításból megtudhatod, hogyan viszonyul a lakás ára a környékbeli családi házak átlagos árához. Ez nem azt jelenti, hogy ennyivel olcsóbb vagy drágább, mint amennyit a lakás ér, hanem hogy ennyivel tér el a környékbeli átlagtól.

Ennek a m² ára
Putnok m² ár
125 e Ft
138 e Ft 10%
Ennek az ára
Putnok átlagár
15 M Ft m Ft
13.5 m Ft -11%

Az ingatlan elhelyezkedése

Cím: Putnok

Eladó családi házak a környékről

Eladó családi ház
Eladó családi ház

Miskolc

25.9 M Ft
4 szoba
148 m2
Eladó családi ház
Eladó családi ház

Putnok

280 M Ft
73553 m²
1370 m2
Eladó családi ház
Eladó családi ház

Putnok

11 M Ft
3 szoba
79 m2
Eladó családi ház
Eladó családi ház

Tiszalúc, Alkotmány utca

16.9 M Ft
4 szoba
137 m2
Eladó családi ház
Eladó családi ház

Ózd

26.5 M Ft
3 szoba
100 m2
Eladó családi ház
Eladó családi ház

Miskolc

25.9 M Ft
4 szoba
148 m2
Eladó családi ház
Eladó családi ház

Szikszó

89.9 M Ft
3 szoba
100 m2
Eladó családi ház
Eladó családi ház

Putnok

11 M Ft
3 szoba
79 m2
Eladó családi ház
Eladó családi ház

Putnok

15.9 M Ft
3 szoba
118 m2
Eladó családi ház
Eladó családi ház

Putnok

35 M Ft
3 szoba
158 m2
Eladó családi ház
Eladó családi ház

Putnok

20.4 M Ft
4 szoba
100 m2
Eladó családi ház
Eladó családi ház

Putnok

12.99 M Ft
3 szoba
93 m2
Eladó családi ház
Eladó családi ház

Ózd

8.6 M Ft
5 szoba
160 m2
Eladó családi ház
Eladó családi ház

Putnok

26.99 M Ft
4 szoba
147 m2
Eladó családi ház
Eladó családi ház

Ózd

14.7 M Ft
3 szoba
95 m2
Eladó családi ház
Eladó családi ház

Putnok

20.4 M Ft
4 szoba
100 m2
Eladó családi ház
Eladó családi ház

Putnok, Petőfi Sándor út 21

9.97 M Ft
1 + 1 szoba
163 m2
Eladó családi ház
Eladó családi ház

Putnok

11.99 M Ft
2 szoba
85 m2
Eladó családi ház
Eladó családi ház

Taktaharkány, Magtár utca

9.9 M Ft
3 szoba
100 m2
Eladó családi ház
Eladó családi ház

Miskolc

149 M Ft
4 szoba
463 m2
Eladó családi ház
Eladó családi ház

Ózd

25.99 M Ft
4 szoba
198 m2
Eladó családi ház
Eladó családi ház

Putnok

16 M Ft
2 + 1 szoba
83 m2
Eladó családi ház
Eladó családi ház

Ózd

15 M Ft
7 szoba
225 m2
Eladó családi ház
Eladó családi ház

Putnok

11.99 M Ft
2 szoba
85 m2

Falusi CSOK ingatlanok

Eladó családi ház
Eladó családi ház

Vaskút

19 M Ft
3 szoba
225 m2
Eladó családi ház
Eladó családi ház

Bócsa

68 M Ft
3 szoba
100 m2
Eladó családi ház
Eladó családi ház

Vásárosdombó

14.99 M Ft
2 szoba
69 m2
Eladó családi ház
Eladó családi ház

Gégény, Kossuth

15 M Ft
4 szoba
135 m2
Eladó családi ház
Eladó családi ház

Balatonberény

115.259 M Ft
5 szoba
145 m2
Eladó családi ház
Eladó családi ház

Tápióbicske

12.5 M Ft
2 szoba
51 m2
Eladó családi ház
Eladó családi ház

Újhartyán

89.9 M Ft
4 szoba
99 m2
Eladó családi ház
Eladó családi ház

Tengőd

32 M Ft
4 szoba
118 m2