Avico Greentop

Eladó családi ház
Püspökladány

+ 5 kép 1/8
17 700 000 Ft17.7 M Ft 221 250 Ft/m2
3 szoba
80 m²
építés éve:1970

Részletes adatok

Állapot: Felújítandó
Telekméret: 1218 m2
Fűtés: Gázkonvektor
Komfort: Komfortos
Energetikai besorolás: Nem adta meg a hirdető

Az OTP Bank lakáshitel ajánlataFizetett hirdetés

+36 20 213
Oláhné Németi Gréta
Debrecen Kürtös utca

Érdekel az OTP Bank kedvezményes lakáshitel ajánlata? *

* A kérdésre „Igen” válasz bejelölése esetén, az „Üzenet küldése” gombra kattintva kijelentem, hogy az OTP Bank Nyrt. Adatkezelési tájékoztatójának tartalmát megismertem és tudomásul vettem.

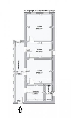
Eladó családi ház leírása

Püspökladány egyik nyugodt utcájában, a Jókai utcában kínálunk megvételre egy 80 m2-es, háromszobás családi házat, amely 1218 m2-es telken helyezkedik el. Az ingatlan felújítandó állapotú, így kiváló lehetőség mindazok számára, akik saját elképzelésük szerint szeretnék kialakítani jövőbeli otthonukat.

Főbb paraméterek:
* Telek mérete: 1218 m2
* Lakóterület: 80 m2
* Építés éve: 1970
* Szobák száma: 3
* Falazat: vegyes (tégla és vályog)
* Alap: beton
* Tető: faszerkezet, cserépfedéssel
* Fűtés: gázkonvektor
* Szint: egyszintes
* Állapot: felújítandó

A nagy méretű telek gazdálkodásra, kertészkedésre vagy akár további fejlesztési lehetőségekre is alkalmas. Az ingatlan rendezett, jó szomszédságú környezetben található, a városközpont pedig rövid idő alatt elérhető.

Ha egy jó adottságokkal rendelkező, saját ízlés szerint alakítható családi házat keres nagy telekkel, ez az ingatlan kiváló választás lehet.

Energetikai tanúsítvány egyelőre nem áll rendelkezésre.

További kérdéseire készséggel válaszolok, akár hétvégén is. Kedvezményes kamatozású lakásvásárlási hitelek, valamint Babaváró és CSOK ügyintézése az OTP hátterével irodánkban. Ref.szám: M326636

Referencia szám: M326636

Hirdetés feltöltve: 2026. 04. 30. Utoljára módosítva: 2026. 05. 13.

3 szobás családi házak ára Püspökladányban

Ebből az összehasonlításból megtudhatod, hogyan viszonyul a lakás ára a környékbeli családi házak átlagos árához. Ez nem azt jelenti, hogy ennyivel olcsóbb vagy drágább, mint amennyit a lakás ér, hanem hogy ennyivel tér el a környékbeli átlagtól.

Ennek a m² ára
Püspökladány m² ár
221 e Ft
379 e Ft 42%
Ennek az ára
Püspökladány átlagár
17.7 M Ft m Ft
36.9 m Ft 52%

Az ingatlan elhelyezkedése

Cím: Püspökladány

Eladó családi házak a környékről

Nádudvar, Alkotmány utca
Eladó családi ház

Nádudvar

12.5 M Ft
1 szoba
35 m²
Hajdúszoboszló
Eladó családi ház

Hajdúszoboszló

99 M Ft
5 + 1 szoba
160 m²
Debrecen
Eladó családi ház

Debrecen

85 M Ft
4 szoba
100 m²
Püspökladány
Eladó családi ház

Püspökladány

35 M Ft
3 szoba
85 m²
Debrecen
Eladó családi ház

Debrecen

98 M Ft
3 szoba
110 m²
Püspökladány
Eladó családi ház

Püspökladány

29.9 M Ft
3 szoba
85 m²
Püspökladány
Eladó családi ház

Püspökladány

56 M Ft
3 + 1 szoba
230 m²
Püspökladány, Bartók Béla utca 61
Eladó családi ház

Püspökladány

7.8 M Ft
1 + 1 szoba
54 m²
Püspökladány
Eladó családi ház

Püspökladány

13.9 M Ft
2 szoba
100 m²
Püspökladány
Eladó családi ház

Püspökladány

28.5 M Ft
3 szoba
101 m²
Püspökladány
Eladó családi ház

Püspökladány

120 M Ft
2 szoba
200 m²
Püspökladány
Eladó családi ház

Püspökladány

27 M Ft
3 + 1 szoba
64 m²
Püspökladány
Eladó családi ház

Püspökladány

49.9 M Ft
5 szoba
149 m²
Szentpéterszeg
Eladó családi ház

Szentpéterszeg

47 M Ft
3 szoba
92 m²
Mikepércs
Eladó családi ház

Mikepércs

59 M Ft
2 szoba
80 m²
Püspökladány
Eladó családi ház

Püspökladány

49.8 M Ft
5 szoba
150 m²
Debrecen
Eladó családi ház

Debrecen

150 M Ft
7 szoba
300 m²
Püspökladány
Eladó családi ház

Püspökladány

37.9 M Ft
3 szoba
81 m²
Püspökladány
Eladó családi ház

Püspökladány

29.5 M Ft
4 szoba
160 m²
Debrecen, Haláp Tanya
Eladó családi ház

Debrecen

380 M Ft
10 szoba
500 m²
Püspökladány, Farkas sziget
Eladó családi ház

Püspökladány

4.99 M Ft
1 + 1 szoba
38 m²
Püspökladány
Eladó családi ház

Püspökladány

22.9 M Ft
5 szoba
0 m²
Debrecen
Eladó családi ház

Debrecen

150 M Ft
4 szoba
318 m²
Püspökladány
Eladó családi ház

Püspökladány

29.5 M Ft
4 szoba
160 m²

Falusi CSOK ingatlanok

Pécsvárad
Eladó családi ház

Pécsvárad

189 M Ft
7 szoba
618 m²
Seregélyes
Eladó családi ház

Seregélyes

71.4 M Ft
3 szoba
120 m²
Tápióság
Eladó családi ház

Tápióság

30 M Ft
3 szoba
105 m²
Ártánd
Eladó családi ház

Ártánd

63.9 M Ft
4 szoba
0 m²
Nagykónyi
Eladó családi ház

Nagykónyi

82.5 M Ft
2 szoba
114 m²
Szentmártonkáta
Eladó családi ház

Szentmártonkáta

59.99 M Ft
6 szoba
117 m²
Kenyeri
Eladó családi ház

Kenyeri

26.714 M Ft
3 szoba
167 m²
Újhartyán
Eladó családi ház

Újhartyán

59.9 M Ft
4 szoba
75 m²