Astora Olive Club House

Eladó családi ház
Püspökladány

+ 5 kép 1/8
17 700 000 Ft17.7 M Ft 221 250 Ft/m2
3 szoba
80 m²
építés éve:1970

Részletes adatok

Állapot: Felújítandó
Telekméret: 1218 m2
Fűtés: Gázkonvektor
Energetikai besorolás: Nem adta meg a hirdető

Az OTP Bank lakáshitel ajánlataFizetett hirdetés

+36 20 213
Németi Gréta
referens

Érdekel az OTP Bank kedvezményes lakáshitel ajánlata? *

* A kérdésre „Igen” válasz bejelölése esetén, az „Üzenet küldése” gombra kattintva kijelentem, hogy az OTP Bank Nyrt. Adatkezelési tájékoztatójának tartalmát megismertem és tudomásul vettem.

Eladó családi ház leírása

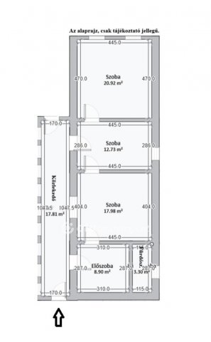
Püspökladány egyik nyugodt utcájában, a Jókai utcában kínálunk megvételre egy 80 m2-es, háromszobás családi házat, amely 1218 m2-es telken helyezkedik el. Az ingatlan felújítandó állapotú, így kiváló lehetőség mindazok számára, akik saját elképzelésük szerint szeretnék kialakítani jövőbeli otthonukat.

Főbb paraméterek:
* Telek mérete: 1218 m2
* Lakóterület: 80 m2
* Építés éve: 1970
* Szobák száma: 3
* Falazat: vegyes (tégla és vályog)
* Alap: beton
* Tető: faszerkezet, cserépfedéssel
* Fűtés: gázkonvektor
* Szint: egyszintes
* Állapot: felújítandó

A nagy méretű telek gazdálkodásra, kertészkedésre vagy akár további fejlesztési lehetőségekre is alkalmas. Az ingatlan rendezett, jó szomszédságú környezetben található, a városközpont pedig rövid idő alatt elérhető.

Ha egy jó adottságokkal rendelkező, saját ízlés szerint alakítható családi házat keres nagy telekkel, ez az ingatlan kiváló választás lehet.

További kérdéseire készséggel válaszolok, akár hétvégén is. Kedvezményes kamatozású lakásvásárlási hitelek, valamint Babaváró és CSOK ügyintézése az OTP hátterével irodánkban. Ref.szám: M326636

Hirdetés feltöltve: 2026. 04. 16. Utoljára módosítva: 2026. 05. 02.

3 szobás családi házak ára Püspökladányban

Ebből az összehasonlításból megtudhatod, hogyan viszonyul a lakás ára a környékbeli családi házak átlagos árához. Ez nem azt jelenti, hogy ennyivel olcsóbb vagy drágább, mint amennyit a lakás ér, hanem hogy ennyivel tér el a környékbeli átlagtól.

Ennek a m² ára
Püspökladány m² ár
221 e Ft
379 e Ft 42%
Ennek az ára
Püspökladány átlagár
17.7 M Ft m Ft
37.8 m Ft 53%

Az ingatlan elhelyezkedése

Cím: Püspökladány

Eladó családi házak a környékről

Püspökladány
Eladó családi ház

Püspökladány

27 M Ft
3 + 1 szoba
64 m²
Püspökladány, Bartók Béla utca 61
Eladó családi ház

Püspökladány

7.8 M Ft
1 + 1 szoba
54 m²
Püspökladány
Eladó családi ház

Püspökladány

65 M Ft
5 szoba
180 m²
Debrecen
Eladó családi ház

Debrecen

539 M Ft
16 szoba
967 m²
Püspökladány
Eladó családi ház

Püspökladány

120 M Ft
2 szoba
200 m²
Püspökladány
Eladó családi ház

Püspökladány

20 M Ft
2 szoba
80 m²
Debrecen, Postakert, Vajdahunyad utca 3
Eladó családi ház

Debrecen

198.9 M Ft
5 szoba
170 m²
Püspökladány
Eladó családi ház

Püspökladány

49.9 M Ft
5 szoba
149 m²
Debrecen
Eladó családi ház

Debrecen

66.9 M Ft
3 szoba
85 m²
Debrecen, Méhészföld utca
Eladó családi ház

Debrecen

26 M Ft
1 szoba
36 m²
Hajdúböszörmény
Eladó családi ház

Hajdúböszörmény

137 M Ft
6 szoba
240 m²
Püspökladány, Farkas sziget
Eladó családi ház

Püspökladány

4.99 M Ft
1 + 1 szoba
38 m²
Püspökladány
Eladó családi ház

Püspökladány

22.9 M Ft
5 szoba
130 m²
Püspökladány
Eladó családi ház

Püspökladány

37.9 M Ft
3 szoba
81 m²
Debrecen
Eladó családi ház

Debrecen

150 M Ft
4 szoba
318 m²
Püspökladány
Eladó családi ház

Püspökladány

58 M Ft
3 szoba
120 m²
Püspökladány
Eladó családi ház

Püspökladány

29.5 M Ft
4 szoba
160 m²
Hajdúszoboszló
Eladó családi ház

Hajdúszoboszló

99 M Ft
5 + 1 szoba
160 m²
Hajdúszoboszló
Eladó családi ház

Hajdúszoboszló

175 M Ft
7 szoba
415 m²
Püspökladány
Eladó családi ház

Püspökladány

49.8 M Ft
5 szoba
150 m²
Mikepércs
Eladó családi ház

Mikepércs

59 M Ft
2 szoba
80 m²
Debrecen, Haláp Tanya
Eladó családi ház

Debrecen

380 M Ft
10 szoba
500 m²
Debrecen, Kertváros, Kosztolányi Dezső utca
Eladó családi ház

Debrecen

220 M Ft
7 szoba
210 m²
Püspökladány
Eladó családi ház

Püspökladány

37.99 M Ft
3 szoba
100 m²

Falusi CSOK ingatlanok

Devecser
Eladó családi ház

Devecser

39.9 M Ft
3 szoba
75 m²
Villány
Eladó családi ház

Villány

65 M Ft
3 szoba
95 m²
Tiszasziget, Sziget u
Eladó téglalakás

Tiszasziget

37.5 M Ft
2 szoba
41 m²
Fülöpszállás
Eladó családi ház

Fülöpszállás

299 M Ft
14 + 5 szoba
680 m²
Badacsonytördemic
Eladó családi ház

Badacsonytördemic

90 M Ft
3 szoba
130 m²
Ádánd
Eladó családi ház

Ádánd

67 M Ft
6 szoba
251 m²
Kiszombor, Óbébai utca
Eladó családi ház

Kiszombor

32.9 M Ft
4 szoba
140 m²
Tiszasziget, Sziget lakópark
Eladó sorház

Tiszasziget

33.9 M Ft
2 szoba
48 m²