City Pearl

Eladó családi ház
Poroszló

Figyelem!

Ez az ingatlan a 2019.07.01-től induló falusi CSOK által támogatott településen található

+ 14 kép 1/17
79 990 000 Ft79.99 M Ft 522 810 Ft/m2
4 + 1 szoba
153 m²
építés éve:2001

Részletes adatok

Telekméret: 856 m2
Fűtés: Gázkazán
Energetikai besorolás: Nem adta meg a hirdető

Az OTP Bank lakáshitel ajánlataFizetett hirdetés

+36 20 361
Spéth Gábor György
OTP Ingatlanpont Miskolc Szemere

Érdekel az OTP Bank kedvezményes lakáshitel ajánlata? *

* A kérdésre „Igen” válasz bejelölése esetén, az „Üzenet küldése” gombra kattintva kijelentem, hogy az OTP Bank Nyrt. Adatkezelési tájékoztatójának tartalmát megismertem és tudomásul vettem.

Eladó családi ház leírása

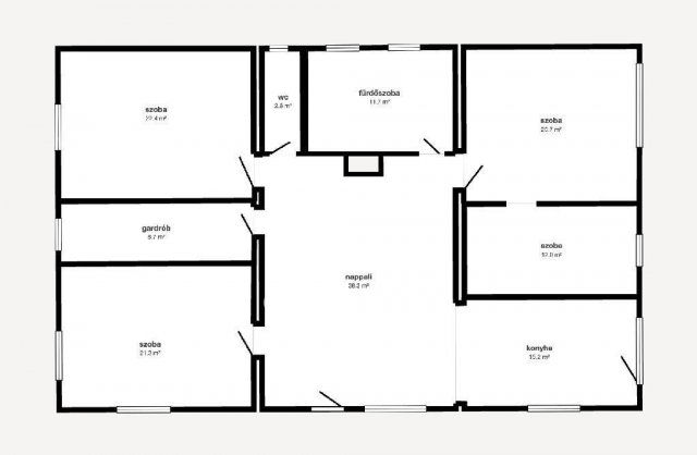
Eladó Poroszló frekventált részén egy kiváló elhelyezkedésű, 1/1 tulajdonban lévő, per- és tehermentes ingatlan, amely két különálló lakóépületből áll, így családi otthonnak, vállalkozásnak vagy befektetési célra is remek választás. A 153 nm alapterületű teljes közművel rendelkező, szigetelt családi ház, egy 856 nm-es telken helyezkedik el, amely fedett terasszal és jól átgondolt belső elrendezéssel biztosít kényelmes életteret. A házban 4 szoba, 1 félszoba, konyha?étkező, külön nappali, két WC és egy fürdőszoba kapott helyet. A fűtésről több rendszer is gondoskodik: hűtő-fűtő klíma, kandalló, valamint gázcirkó radiátoros fűtéssel, így az ingatlan egész évben komfortos. Az elhelyezkedésnek köszönhetően könnyen megközelíthető, jól látható, így akár vállalkozás működtetésére is ideális. Az ingatlan az Otthon Start 3%-os hitellel is megvásárolható. Hívjon és tekintsük meg együtt!
OTP Banki hátterünknek köszönhetően finanszírozási igényekben (pl. Otthon Start Hitelprogram, Babaváró, Falusi CSOK, CSOK Plusz, Lakáshitel, Személyi kölcsön stb.), illetve biztosítások tekintetében is díjmentesen, soron kívüli ügyintézéssel segítem ügyfeleim! Érdeklődés esetén kérem, keressen bizalommal a megadott elérhetőségen! Adásvételi szerződéshez igény esetén ügyvédi hátteret biztosítunk. Referenciaszám: M317226

Hirdetés feltöltve: 2026. 01. 17. Utoljára módosítva: 2026. 03. 04.

5 szobás családi házak ára Poroszlón

Ebből az összehasonlításból megtudhatod, hogyan viszonyul a lakás ára a környékbeli családi házak átlagos árához. Ez nem azt jelenti, hogy ennyivel olcsóbb vagy drágább, mint amennyit a lakás ér, hanem hogy ennyivel tér el a környékbeli átlagtól.

Ennek a m² ára
Poroszló m² ár
523 e Ft
427 e Ft -22%
Ennek az ára
Poroszló átlagár
79.99 M Ft m Ft
86 m Ft 7%

Az ingatlan elhelyezkedése

Cím: Poroszló

Eladó családi házak a környékről

Poroszló
Eladó családi ház

Poroszló

83 M Ft
2 szoba
99 m²
Poroszló
Eladó családi ház

Poroszló

29.9 M Ft
2 szoba
61 m²
Szarvaskő
Eladó családi ház

Szarvaskő

230 M Ft
5 szoba
424 m²
Recsk
Eladó családi ház

Recsk

21 M Ft
4 szoba
220 m²
Gyöngyös
Eladó családi ház

Gyöngyös

940 M Ft
30 szoba
4000 m²
Poroszló
Eladó családi ház

Poroszló

40 M Ft
3 szoba
88 m²
Poroszló, Ráboly út 13
Eladó családi ház

Poroszló

13.79 M Ft
1 + 1 szoba
87 m²
Poroszló
Eladó családi ház

Poroszló

98 M Ft
5 szoba
170 m²
Recsk
Eladó családi ház

Recsk

23.5 M Ft
1 + 2 szoba
72 m²
Bükkszék
Eladó családi ház

Bükkszék

44.9 M Ft
3 + 2 szoba
114 m²
Poroszló
Eladó családi ház

Poroszló

18 M Ft
3 szoba
65 m²
Andornaktálya
Eladó családi ház

Andornaktálya

42.5 M Ft
3 szoba
115 m²
Poroszló
Eladó családi ház

Poroszló

15 M Ft
2 szoba
70 m²
Poroszló, Dobosok útja 8
Eladó családi ház

Poroszló

18.94 M Ft
1 + 1 szoba
116 m²
Poroszló
Eladó családi ház

Poroszló

36.5 M Ft
3 szoba
132 m²
Poroszló
Eladó családi ház

Poroszló

32.9 M Ft
2 szoba
86 m²
Poroszló
Eladó családi ház

Poroszló

22 M Ft
2 szoba
65 m²
Felsőtárkány
Eladó családi ház

Felsőtárkány

135 M Ft
3 + 1 szoba
160 m²
Poroszló, Arany János utca 2
Eladó családi ház

Poroszló

17.52 M Ft
1 + 1 szoba
89 m²
Mátraszentimre
Eladó családi ház

Mátraszentimre

250 M Ft
8 szoba
300 m²
Andornaktálya
Eladó családi ház

Andornaktálya

28.5 M Ft
2 szoba
60 m²
Poroszló
Eladó családi ház

Poroszló

119 M Ft
7 + 1 szoba
205 m²
Bükkszék
Eladó családi ház

Bükkszék

44.9 M Ft
3 + 2 szoba
114 m²
Bodony
Eladó családi ház

Bodony

19.5 M Ft
3 szoba
95 m²

Falusi CSOK ingatlanok

Magyarszék
Eladó családi ház

Magyarszék

48.5 M Ft
3 + 1 szoba
86 m²
Nagyréde
Eladó családi ház

Nagyréde

69.5 M Ft
4 szoba
110 m²
Balatonakali
Eladó ikerház

Balatonakali

560 M Ft
4 szoba
140 m²
Balatonszemes
Eladó téglalakás

Balatonszemes

119.9 M Ft
2 szoba
81 m²
Pécsvárad
Eladó családi ház

Pécsvárad

140 M Ft
4 + 1 szoba
119 m²
Pánd, Toldi Miklós utca
Eladó családi ház

Pánd

22.9 M Ft
2 szoba
60 m²
Csemő
Eladó családi ház

Csemő

61.9 M Ft
3 szoba
88 m²
Tápiógyörgye
Eladó családi ház

Tápiógyörgye

14.9 M Ft
2 szoba
60 m²

Falusi CSOK ingatlanok

Balatonkenese
Eladó családi ház

Balatonkenese

85 M Ft
3 + 1 szoba
91 m²
Újlengyel, Hernádi dűlő
Eladó sorház

Újlengyel

64 M Ft
3 szoba
75 m²
Szabadbattyán
Eladó családi ház

Szabadbattyán

147.99 M Ft
5 szoba
255 m²
Emőd
Eladó családi ház

Emőd

34.99 M Ft
2 szoba
74 m²
Darnózseli
Eladó családi ház

Darnózseli

69.9 M Ft
4 szoba
104 m²
Pánd, Toldi Miklós utca
Eladó családi ház

Pánd

22.9 M Ft
2 szoba
60 m²
Bozsok
Eladó családi ház

Bozsok

290 M Ft
6 szoba
370 m²
Hosszúhetény, Iskola utca 2
Eladó családi ház

Hosszúhetény

9.3 M Ft
4 szoba
145 m²