Stay Family Park

Eladó családi ház
Piliscsaba

+ 5 kép 1/8
48 500 000 Ft48.5 M Ft 440 909 Ft/m2
3 szoba
110 m2
építés éve:1955

Részletes adatok

Állapot: Felújítandó
Telekméret: 336 m2
Fűtés: Gázkonvektor
Parkolás: Kocsibeálló
Energetikai besorolás: Nem adta meg a hirdető

Az OTP Bank lakáshitel ajánlataFizetett hirdetés

+36 30 895
Szalay Zsuzsanna
Sasad

Érdekel az OTP Bank kedvezményes lakáshitel ajánlata? *

* A kérdésre „Igen” válasz bejelölése esetén, az „Üzenet küldése” gombra kattintva kijelentem, hogy az OTP Bank Nyrt. Adatkezelési tájékoztatójának tartalmát megismertem és tudomásul vettem.

Eladó családi ház leírása

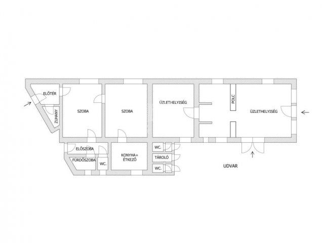
Lakás + üzlethelyiség Piliscsaba városközpont közelében.

336 nm-es telken felújítás alatt álló br. 120 nm-es lakás és üzlethelyiség.

A lakás ~ 55 nm-es, helyiségei: 2 szoba, konyha, 2 fürdőszoba + egy külön wc, közlekedő. A lakás két bejáratos.

Az üzlethelyiség korábban vendéglátóhelyként üzemelt, egy konyhából és vendégtérből + két mosdó található benne. A két helyiség akár teljesen összenyitható, ideális lehet lehet nagy teret igénylő tevékenységekre, mint pl. raktározás, sport, bemutató stb.

Az udvaron grillező és épített kemence található.

Mindkét ingatlanrész saját fő illetve almérővel rendelkezik.

Övezeti besorolása VT-1 / településközpont vegyes építési övezet, vagyis lakó, -kereskedelmi, -szolgáltató, szórakoztató rendeltetési egység létesíthető rajta.

A telekre teherautóval is be lehet állni alkalmas. Telephely és raktározás céljára kifejezetten alkalmas.

Az eladási ár a felújítás függvényében változhat.

Amennyiben a vásárláshoz hitelt is igénybe szeretne venni, akkor
BANKFÜGGETLEN hitelcentrumunk minden elérhető bank és hitelintézet ajánlatát versenyezteti az Ön kedvéért, ráadásul díjmentesen. ...TOVÁBBI, TÖBBEZRES INGATLAN KÍNÁLAT: www.gdn-ingatlan.hu - GDN azonosító: 387486

Hirdetés feltöltve: 2025. 09. 19. Utoljára módosítva: 2025. 12. 12.

3 szobás családi házak ára Piliscsabán

Ebből az összehasonlításból megtudhatod, hogyan viszonyul a lakás ára a környékbeli családi házak átlagos árához. Ez nem azt jelenti, hogy ennyivel olcsóbb vagy drágább, mint amennyit a lakás ér, hanem hogy ennyivel tér el a környékbeli átlagtól.

Ennek a m² ára
Piliscsaba m² ár
441 e Ft
217 e Ft -103%
Ennek az ára
Piliscsaba átlagár
48.5 M Ft m Ft
21.4 m Ft -126%

Az ingatlan elhelyezkedése

Cím: Piliscsaba

Eladó családi házak a környékről

Eladó családi ház
Eladó családi ház

Tápiószentmárton

7.9 M Ft
2 + 1 szoba
86 m2
Eladó családi ház
Eladó családi ház

Budaörs, Városközpont utca

119.5 M Ft
5 + 1 szoba
140 m2
Eladó családi ház
Eladó családi ház

Dunakeszi

250 M Ft
4 szoba
180 m2
Eladó családi ház
Eladó családi ház

Budakeszi

130 M Ft
5 szoba
30 m2
Eladó családi ház
Eladó családi ház

Piliscsaba

205 M Ft
5 szoba
295 m2
Eladó családi ház
Eladó családi ház

Piliscsaba

259 M Ft
7 szoba
300 m2
Eladó családi ház
Eladó családi ház

Piliscsaba

229.9 M Ft
4 + 1 szoba
217 m2
Eladó családi ház
Eladó családi ház

Piliscsaba

213.9 M Ft
6 szoba
341 m2
Eladó családi ház
Eladó családi ház

Piliscsaba

187 M Ft
6 szoba
240 m2
Eladó családi ház
Eladó családi ház

Gyál, Gyál út

169.9 M Ft
2 szoba
90 m2
Eladó családi ház
Eladó családi ház

Dunavarsány

49.9 M Ft
3 + 2 szoba
130 m2
Eladó családi ház
Eladó családi ház

Budakeszi, Budakeszi kertváros

229 M Ft
10 szoba
450 m2
Eladó családi ház
Eladó családi ház

Piliscsaba

49.9 M Ft
3 szoba
91 m2
Eladó családi ház
Eladó családi ház

Budakeszi, Budakeszi kertváros

140 M Ft
2 szoba
55 m2
Eladó családi ház
Eladó családi ház

Budakeszi, Makkosmária

100 M Ft
1 szoba
10 m2
Eladó családi ház
Eladó családi ház

Kerepes

81.99 M Ft
5 szoba
102 m2
Eladó családi ház
Eladó családi ház

Sződ, Rátóti utca

149.99 M Ft
11 szoba
270 m2
Eladó családi ház
Eladó családi ház

Piliscsaba

49.9 M Ft
3 szoba
104 m2
Eladó családi ház
Eladó családi ház

Tápiószentmárton

48 M Ft
5 szoba
180 m2
Eladó családi ház
Eladó családi ház

Piliscsaba

457.2 M Ft
5 + 3 szoba
500 m2
Eladó családi ház
Eladó családi ház

Tápiógyörgye

19.9 M Ft
3 szoba
65 m2
Eladó családi ház
Eladó családi ház

Piliscsaba, Fő út

268 M Ft
6 szoba
270 m2
Eladó családi ház
Eladó családi ház

Piliscsaba

229.9 M Ft
4 + 1 szoba
217 m2
Eladó családi ház
Eladó családi ház

Remeteszőlős

399.9 M Ft
5 + 2 szoba
260 m2

Falusi CSOK ingatlanok

Eladó családi ház
Eladó családi ház

Elek

85.9 M Ft
5 szoba
274 m2
Eladó családi ház
Eladó családi ház

Bakonycsernye

39 M Ft
3 szoba
350 m2
Eladó téglalakás
Eladó téglalakás

Balatonszemes

125.2 M Ft
2 szoba
50 m2
Eladó téglalakás
Eladó téglalakás

Balatonszemes

110.9 M Ft
2 szoba
60 m2
Eladó téglalakás
Eladó téglalakás

Balatonszemes

244.5 M Ft
3 szoba
107 m2
Eladó családi ház
Eladó családi ház

Hosszúhetény

89.9 M Ft
5 szoba
121 m2
Eladó családi ház
Eladó családi ház

Abaújszántó

19.99 M Ft
3 szoba
84 m2
Eladó családi ház
Eladó családi ház

Adásztevel

8.9 M Ft
2 szoba
63 m2