BAM Living

Eladó családi ház
Pécs

+ 17 kép 1/20
58 700 000 Ft58.7 M Ft 838 571 Ft/m2
2 + 1 szoba
70 m²
építés éve:1960

Részletes adatok

Állapot: Átlagos
Telekméret: 480 m2
Fűtés: Gázkazán
Komfort: Összkomfortos
Energetikai besorolás: Nem adta meg a hirdető

Az OTP Bank lakáshitel ajánlataFizetett hirdetés

+36 30 819
Kőrösi Csaba
referens

Érdekel az OTP Bank kedvezményes lakáshitel ajánlata? *

* A kérdésre „Igen” válasz bejelölése esetén, az „Üzenet küldése” gombra kattintva kijelentem, hogy az OTP Bank Nyrt. Adatkezelési tájékoztatójának tartalmát megismertem és tudomásul vettem.

Eladó családi ház leírása

LEHETŐSÉG A ZSOLNAY NEGYEDNÉL! Saját kert + Garázs!

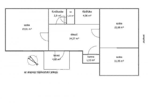
Eladó egy átlagos állapotú, szerkezetileg stabil, jó adottságokkal rendelkező családi ház Pécsett, a Kiss Ernő utcában (Zsolnay-domb)!

- 70 m2 lakótér: 2,5 szoba, konyha, étkező, spájz.
- Dupla fűtés: Gázkazán + vegyestüzelésű kazán (rugalmas rezsi!).
- 480 m2-es kert: Pont akkora, amit még élvezet gondozni.
- 21 m2-es garázs: A kert végében, külön helyrajzi számmal, és villanyórával (benne van az árban!).
- Melléképületek: Tároló és kazánház az udvarban.
jelenleg főzőfülke van a házban. Kisebb átalakítással a kamra mellé lehet telepíteni konyhát.
Az udvar két részre van bontva pl. kutyatartás miatt lehet érdekes. Az első udvarban kisebb pince található.

Buszmegálló: 1 perc gyalog!
Zsolnay negyed: 3 perc séta!

Ideális választás családoknak vagy befektetésnek a kulturális negyed közelsége miatt. Alakítsad saját ízlésedre és varázsolj belőle modern otthont! A ház 1970. előtt épült.

Energetikai tanúsítvány nem áll rendelkezésre.

Referenciaszám: M324682

Az energetikai tanúsítvány készítése folyamatban van, amint rendelkezésre áll, úgy azzal a hirdetés frissítésre kerül.

Hirdetés feltöltve: 2026. 03. 17. Utoljára módosítva: 2026. 05. 14.

3 szobás családi házak ára Pécsett

Ebből az összehasonlításból megtudhatod, hogyan viszonyul a lakás ára a környékbeli családi házak átlagos árához. Ez nem azt jelenti, hogy ennyivel olcsóbb vagy drágább, mint amennyit a lakás ér, hanem hogy ennyivel tér el a környékbeli átlagtól.

Ennek a m² ára
Pécs m² ár
839 e Ft
801 e Ft -5%
Ennek az ára
Pécs átlagár
58.7 M Ft m Ft
76.9 m Ft 24%

Az ingatlan elhelyezkedése

Cím: Pécs

Eladó családi házak a környékről

Pécs
Eladó családi ház

Pécs

83 M Ft
3 szoba
100 m²
Pécs
Eladó családi ház

Pécs

83 M Ft
3 szoba
100 m²
Pécs
Eladó családi ház

Pécs

150 M Ft
4 szoba
267 m²
Mohács, Szőlőhegy
Eladó családi ház

Mohács

32.99 M Ft
2 szoba
72 m²
Pécs, Hird, Hirdi út
Eladó családi ház

Pécs

99.9 M Ft
8 szoba
290 m²
Pécs, Szabolcsfalu, Szabadságharc utca
Eladó családi ház

Pécs

58.99 M Ft
3 szoba
240 m²
Pécs
Eladó családi ház

Pécs

110 M Ft
4 szoba
287 m²
Pécs, Szabolcsfalu, Szabadságharc utca
Eladó családi ház

Pécs

58.99 M Ft
3 szoba
240 m²
Siklós, Külterület
Eladó családi ház

Siklós

61.5 M Ft
2 szoba
110 m²
Siklós, Felszabadulás utca
Eladó családi ház

Siklós

199 M Ft
7 szoba
600 m²
Pécs
Eladó családi ház

Pécs

3.69 M Ft
2 szoba
26 m²
Pécs, Kertváros, Táncsics Mihály utca
Eladó családi ház

Pécs

85 M Ft
6 szoba
185 m²
Pécs, Meszesi lakóövezet, Pacca dűlő
Eladó családi ház

Pécs

16 M Ft
1 szoba
28 m²
Pécs
Eladó családi ház

Pécs

299 M Ft
4 szoba
126 m²
Pécs
Eladó családi ház

Pécs

174 M Ft
8 szoba
245 m²
Mohács
Eladó családi ház

Mohács

9.3 M Ft
1 szoba
30 m²
Pécs, Meszesi lakóövezet, Pacca dűlő
Eladó családi ház

Pécs

16 M Ft
1 szoba
28 m²
Geresdlak, Flórián utca
Eladó családi ház

Geresdlak

15 M Ft
2 szoba
130 m²
Görcsöny, Hársfa utca
Eladó családi ház

Görcsöny

249 M Ft
5 szoba
270 m²
Pécs
Eladó családi ház

Pécs

180 M Ft
6 szoba
443 m²
Pécs, Kertváros, Táncsics Mihály utca
Eladó családi ház

Pécs

85 M Ft
6 szoba
185 m²
Versend
Eladó családi ház

Versend

75 M Ft
3 szoba
123 m²
Egyházaskozár, Hatos Gusztáv utca
Eladó családi ház

Egyházaskozár

4.7 M Ft
3 szoba
79 m²
Pécs
Eladó családi ház

Pécs

270 M Ft
5 szoba
350 m²

Falusi CSOK ingatlanok

Lovasberény
Eladó sorház

Lovasberény

78 M Ft
4 + 1 szoba
124 m²
Balatonszemes, Ady Endre u
Eladó téglalakás

Balatonszemes

78.9 M Ft
2 szoba
46 m²
Hegyeshalom, Margaréta utca 12
Eladó téglalakás

Hegyeshalom

35.92 M Ft
1 szoba
31 m²
Hosszúpereszteg
Eladó családi ház

Hosszúpereszteg

27.9 M Ft
4 szoba
0 m²
Seregélyes
Eladó családi ház

Seregélyes

87 M Ft
4 szoba
96 m²
Vép
Eladó családi ház

Vép

75.9 M Ft
5 szoba
150 m²
Iváncsa
Eladó családi ház

Iváncsa

93.5 M Ft
5 szoba
283 m²
Szabadbattyán
Eladó családi ház

Szabadbattyán

79.6 M Ft
4 szoba
101 m²