Astora Art House

Eladó családi ház
Ostoros

94 500 000 Ft94.5 M Ft 984 375 Ft/m2
3 szoba
96 m2
építés éve:2023

Részletes adatok

Telekméret: 900 m2
Fűtés: Gázkazán
Energetikai besorolás: Nem adta meg a hirdető

Az OTP Bank lakáshitel ajánlataFizetett hirdetés

+36 30 247
Kovácsné Varga Nikolett
referens

Érdekel az OTP Bank kedvezményes lakáshitel ajánlata? *

* A kérdésre „Igen” válasz bejelölése esetén, az „Üzenet küldése” gombra kattintva kijelentem, hogy az OTP Bank Nyrt. Adatkezelési tájékoztatójának tartalmát megismertem és tudomásul vettem.

Eladó családi ház leírása

OSTOROSON A TÓPART LAKÓPARKBAN ÚJ ÉPÍTÉSÚ 2 LAKÁSOS TÁRSASHÁZBAN CSALÁDI IKERHÁZ JELLEGŰ LAKÁS ELADÓ!!!! EBBEN AZ ÉVBEN MÉG IGÉNYELHETŐ
CSOK, CSOK + ÁLLAMILAG KAMATTÁMOGATOTT KEDVEZMÉNYES HITEL ÉS ILLETÉKKEDVEZMÉNY!!!!!!
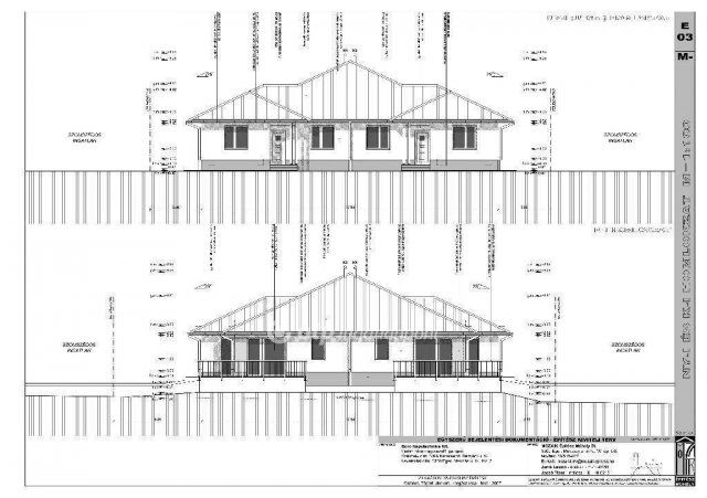
Eladásra kínálunk Ostoroson a TÓPART Lakóparkban új építésű családi ikerház jellegű két lakásos társasház lakását ! A lakás földszintes, Netto: 96,89 m2 alapterületű, hozzá tartozik egy 34 m2-es Terasz. A lakás helyiségei: nappali + étkező , konyha, 3 egész szoba, fürdőszoba, zuhanyzó wc, gardrob helyiség, előtér közlekedő, kamra.
A lakás építése a Wienerberger mesterház minőségi elemeiből készül. Így az elkészült lakás AA épületenergetika minősítésű lesz. A társasházhoz tartozó külön önálló udvarrész tereprendezéssel, térkő burkolattal kerül átadásra. A lakás magas minőségű Wienerberger építőelemekből készül. Tégla falazattal, hőszigetelés + nemesvakolattal, kerámia
tetőcseréppel, műanyag hőszigetelt külső nyílászárókkal, a belső nyílászárók borovitip fenyő beltéri ajtókkal. A lakás fűtése központi lapradiátoros melynek működésér SaunierDuval SemiatekCondens 24 kombikondenzációs gázkazán biztosítja. A fürdőszobai beépített szaniterek szintén magas minőségű Mofém elemekből állnak. Ha felkeltettem érdeklődését a Műszaki leírásról és a Wienerberger mesterház építőelemeiről részletes műszaki leírást és tájékoztatást adunk! A lakás várható átadása 2024. augusztus 31. ÚJ építésű Ingatlanvásárláshoz kapcsolódó CSOK, CSOK + HITEL, Illetékkedvezmény még az idén 2023-ban igénybe vehető! Ha felkeltettem érdeklődését kérem hívjon bizalommal

Referencia szám: M249686-ZE

Hirdetés feltöltve: 2026. 02. 05.

3 szobás családi házak ára Ostoroson

Ebből az összehasonlításból megtudhatod, hogyan viszonyul a lakás ára a környékbeli családi házak átlagos árához. Ez nem azt jelenti, hogy ennyivel olcsóbb vagy drágább, mint amennyit a lakás ér, hanem hogy ennyivel tér el a környékbeli átlagtól.

Ennek a m² ára
Ostoros m² ár
984 e Ft
837 e Ft -18%
Ennek az ára
Ostoros átlagár
94.5 M Ft m Ft
81.1 m Ft -17%

Az ingatlan elhelyezkedése

Cím: Ostoros

Eladó ingatlanok a környékről

Eladó családi ház
Eladó családi ház

Ostoros

94.5 M Ft
3 szoba
96 m2
Eladó családi ház
Eladó családi ház

Andornaktálya

28.5 M Ft
2 szoba
60 m2
Eladó családi ház
Eladó családi ház

Karácsond

29.5 M Ft
3 szoba
112 m2
Eladó családi ház
Eladó családi ház

Bükkszék

78.9 M Ft
2 + 1 szoba
160 m2
Eladó családi ház
Eladó családi ház

Poroszló

26 M Ft
3 szoba
86 m2
Eladó családi ház
Eladó családi ház

Ostoros

94.5 M Ft
3 szoba
96 m2
Eladó családi ház
Eladó családi ház

Ostoros

94.5 M Ft
3 szoba
96 m2
Eladó családi ház
Eladó családi ház

Ostoros

105 M Ft
7 szoba
300 m2
Eladó családi ház
Eladó családi ház

Ostoros

94.5 M Ft
3 szoba
96 m2
Eladó panellakás
Eladó panellakás

Hatvan

37.9 M Ft
1 szoba
31 m2
Eladó ipari ingatlan
Eladó ipari ingatlan

Átány

490 M Ft
42957 m²
1800 m2
Eladó családi ház
Eladó családi ház

Ostoros

52.9 M Ft
2 szoba
56 m2
Eladó családi ház
Eladó családi ház

Mátraszentimre

250 M Ft
8 szoba
300 m2
Eladó családi ház
Eladó családi ház

Ostoros

94.5 M Ft
3 szoba
96 m2
Eladó családi ház
Eladó családi ház

Bükkszék

69 M Ft
5 szoba
240 m2
Eladó családi ház
Eladó családi ház

Szilvásvárad

92 M Ft
4 + 1 szoba
220 m2
Eladó családi ház
Eladó családi ház

Bükkszék

44.9 M Ft
3 + 2 szoba
114 m2
Eladó családi ház
Eladó családi ház

Bükkszék

44.9 M Ft
3 + 2 szoba
114 m2
Eladó családi ház
Eladó családi ház

Ostoros

25 M Ft
2 + 1 szoba
77 m2
Eladó családi ház
Eladó családi ház

Egerszalók

69.9 M Ft
3 + 2 szoba
140 m2
Eladó családi ház
Eladó családi ház

Bükkszék

44.9 M Ft
3 + 2 szoba
114 m2
Eladó családi ház
Eladó családi ház

Andornaktálya

42.5 M Ft
3 szoba
115 m2
Eladó családi ház
Eladó családi ház

Ostoros

94.5 M Ft
3 szoba
96 m2
Eladó családi ház
Eladó családi ház

Ostoros

94.5 M Ft
3 szoba
96 m2

Falusi CSOK ingatlanok

Eladó családi ház
Eladó családi ház

Véménd

59 M Ft
2 szoba
200 m2
Eladó családi ház
Eladó családi ház

Kenyeri

39.9 M Ft
3 szoba
94 m2
Eladó családi ház
Eladó családi ház

Szilvásvárad

50 M Ft
3 szoba
69 m2
Eladó családi ház
Eladó családi ház

Sárisáp, Orgona utca

60 M Ft
4 szoba
145 m2
Eladó családi ház
Eladó családi ház

Kaposgyarmat

695 M Ft
6 szoba
610 m2
Eladó családi ház
Eladó családi ház

Magyarszék

48.5 M Ft
3 + 1 szoba
86 m2
Eladó családi ház
Eladó családi ház

Kesztölc

129.9 M Ft
8 szoba
210 m2
Eladó családi ház
Eladó családi ház

Recsk

24.5 M Ft
2 szoba
100 m2