Seven Pearl

Eladó családi ház
Ócsa

+ 3 kép 1/6
94 900 000 Ft94.9 M Ft 958 586 Ft/m2
4 szoba
99 m²
építés éve:2026

Részletes adatok

Telekméret: 500 m2
Fűtés: Egyéb
Energetikai besorolás: Nem adta meg a hirdető

Az OTP Bank lakáshitel ajánlataFizetett hirdetés

3624814303
Léka Gábor
Halásztelek-Duna House

Érdekel az OTP Bank kedvezményes lakáshitel ajánlata? *

* A kérdésre „Igen” válasz bejelölése esetén, az „Üzenet küldése” gombra kattintva kijelentem, hogy az OTP Bank Nyrt. Adatkezelési tájékoztatójának tartalmát megismertem és tudomásul vettem.

Eladó családi ház leírása

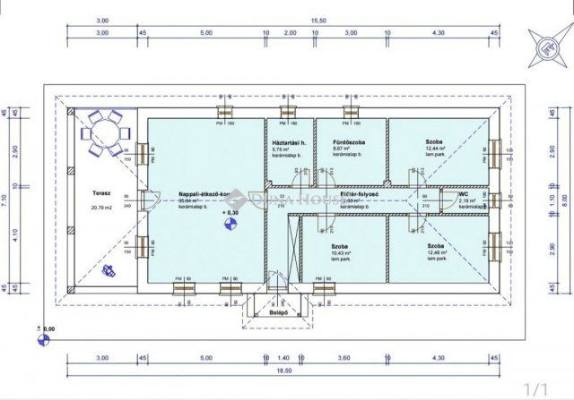
Eladó új építésű önálló családi ház Ócsán!Ócsán kínálunk megvételre egy 99,96 négyzetméteres, új építésű önálló családi házat, melynek átgondolt belső elrendezése három külön nyíló szobából, fürdőszobából, külön WC-ből, háztartási helyiségből, valamint amerikai konyhás nappaliból áll, ahonnan közvetlen kijárat nyílik egy 20 négyzetméteres teraszra.Az épület beton alapra, Porotherm 30-as téglából épül, fa födémmel. A külső falakon 15 cm vastag hőszigetelés kerül kialakításra, a padlóban 10 cm lépésálló hőszigeteléssel, míg a födémen 25 cm vastag szigetelés biztosítja az energiatakarékos működést.A fűtést korszerű hőszivattyús rendszer látja el padlófűtéssel,a nappaliban pedig egy klíma is felhelyezésre kerül. Az ingatlanban gáz nem kerül kialakításra. A 500 négyzetméteres telken kocsibeálló is helyet kap, a homlokzat és egyes külső elemek színe még választható, legyen szó modern antracit megjelenésről vagy mediterrán stílusú kialakításról.A ház várható átadása 2026 2. negyedévének végén, illetve a 3. negyedév elején történik, így jelenleg még lehetőség van az ingatlan belső kialakítását és egyes részleteit a saját igények szerint formálni. A burkolatok (hideg/meleg): 7000 Ft.-/ nm-ig választhatóak. (További árinformációk a műszaki tartalomban érhetők el.)Ez az ingatlan ideális választás mindazok számára, akik egy új, korszerű, energiatakarékos otthont keresnek nyugodt környezetben, Ócsán.

Hirdetés feltöltve: 2026. 02. 13. Utoljára módosítva: 2026. 04. 21.

4 szobás családi házak ára Ócsán

Ebből az összehasonlításból megtudhatod, hogyan viszonyul a lakás ára a környékbeli családi házak átlagos árához. Ez nem azt jelenti, hogy ennyivel olcsóbb vagy drágább, mint amennyit a lakás ér, hanem hogy ennyivel tér el a környékbeli átlagtól.

Ennek a m² ára
Ócsa m² ár
959 e Ft
820 e Ft -17%
Ennek az ára
Ócsa átlagár
94.9 M Ft m Ft
102 m Ft 7%

Az ingatlan elhelyezkedése

Cím: Ócsa

Eladó családi házak a környékről

Ócsa
Eladó családi ház

Ócsa

65 M Ft
3 + 1 szoba
136 m²
Tápiószele
Eladó családi ház

Tápiószele

32.9 M Ft
4 szoba
200 m²
Remeteszőlős
Eladó családi ház

Remeteszőlős

399.9 M Ft
5 + 2 szoba
260 m²
Ócsa
Eladó családi ház

Ócsa

24.9 M Ft
5 szoba
134 m²
Érd
Eladó családi ház

Érd

164.9 M Ft
5 szoba
192 m²
Ócsa, Pipacs utca 17
Eladó családi ház

Ócsa

79.9 M Ft
2 + 2 szoba
115 m²
Nagykáta
Eladó családi ház

Nagykáta

130 M Ft
3 szoba
203 m²
Tápiószentmárton
Eladó családi ház

Tápiószentmárton

48 M Ft
5 szoba
180 m²
Ócsa
Eladó családi ház

Ócsa

88 M Ft
6 szoba
156 m²
Ócsa, Rózsa utca
Eladó családi ház

Ócsa

83 M Ft
4 szoba
180 m²
Tápiószele
Eladó családi ház

Tápiószele

18.9 M Ft
4 szoba
68 m²
Ócsa
Eladó családi ház

Ócsa

200 M Ft
4 szoba
189 m²
Ócsa
Eladó családi ház

Ócsa

79.5 M Ft
4 + 2 szoba
160 m²
Ócsa
Eladó családi ház

Ócsa

65 M Ft
3 + 1 szoba
136 m²
Kerepes
Eladó családi ház

Kerepes

199 M Ft
6 szoba
360 m²
Ócsa
Eladó családi ház

Ócsa

94.9 M Ft
4 szoba
99 m²
Ócsa
Eladó családi ház

Ócsa

94.9 M Ft
4 szoba
99 m²
Budaörs
Eladó családi ház

Budaörs

400 M Ft
12 szoba
583 m²
Őrbottyán
Eladó családi ház

Őrbottyán

154 M Ft
4 + 1 szoba
115 m²
Pécel, Reményik Sándor utca
Eladó családi ház

Pécel

296 M Ft
6 szoba
396 m²
Kerepes
Eladó családi ház

Kerepes

81.99 M Ft
5 szoba
102 m²
Zebegény
Eladó családi ház

Zebegény

69.9 M Ft
6 szoba
245 m²
Dunakeszi
Eladó családi ház

Dunakeszi

250 M Ft
4 szoba
180 m²
Ócsa
Eladó családi ház

Ócsa

83 M Ft
4 szoba
180 m²

Falusi CSOK ingatlanok

Fülöpszállás
Eladó családi ház

Fülöpszállás

69.9 M Ft
4 szoba
190 m²
Balatonszárszó
Eladó családi ház

Balatonszárszó

30 M Ft
3 szoba
45 m²
Tornyiszentmiklós
Eladó családi ház

Tornyiszentmiklós

29.9 M Ft
3 szoba
110 m²
Csány, Központi elhelyezkedés
Eladó családi ház

Csány

48.5 M Ft
3 szoba
97 m²
Somogyszil
Eladó családi ház

Somogyszil

27.9 M Ft
3 szoba
140 m²
Badacsonytördemic
Eladó családi ház

Badacsonytördemic

90 M Ft
3 szoba
130 m²
Kilimán
Eladó családi ház

Kilimán

69.9 M Ft
3 szoba
130 m²
Segesd
Eladó családi ház

Segesd

15.8 M Ft
3 szoba
100 m²