Kedves Felhasználónk! Rendszerfrissítés miatt az oldalunk 2026. február 9-én 12 órától várhatóan 20 óráig nem lesz elérhető. Köszönjük megértésed!
River Life

Eladó családi ház
Nyíregyháza

+ 17 kép 1/20
99 500 000 Ft99.5 M Ft 331 667 Ft/m2
6 szoba
300 m2
építés éve:1980

Részletes adatok

Telekméret: 1000 m2
Fűtés: Gázkazán
Energetikai besorolás: Nem adta meg a hirdető

Az OTP Bank lakáshitel ajánlataFizetett hirdetés

+36 31 771
Huszár Gabriella
OTPIP Nyíregyháza Hunyadi u.

Érdekel az OTP Bank kedvezményes lakáshitel ajánlata? *

* A kérdésre „Igen” válasz bejelölése esetén, az „Üzenet küldése” gombra kattintva kijelentem, hogy az OTP Bank Nyrt. Adatkezelési tájékoztatójának tartalmát megismertem és tudomásul vettem.

Eladó családi ház leírása

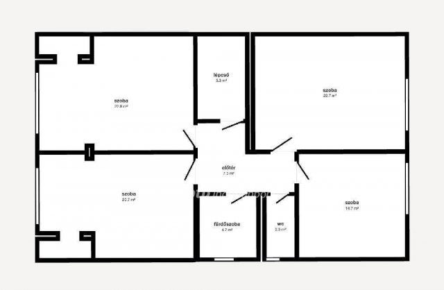
Eladó egy tágas, gyönyörű kétgenerációs családi ház Nyíregyháza kedvelt, környékén. A kiváló állapotú ingatlan egy hatalmas, 1000 négyzetméteres telken fekszik, és összesen hat szoba található benne. A ház hivatalos alapterülete 300 négyzetméter, amely tágas életteret biztosít. Az alsó szinten egy nagy nappali, egy másik szoba, valamint egy kádas, dupla mosdós fürdőszoba és egy különálló WC kapott helyet. A szobák laminált padlóval és parkettával burkoltak. A kényelmes lépcsőház vezet fel az emeletre , ahol szintén szobák és egy zuhanyzós fürdőszoba került kialakításra. Ingaltan pince szinttel is rendelkezik melyben van egy mosó szoba egy külön gardrób került kialakításra és nagy közösségi tér is van Az ingatlanhoz tartozik egy nagyméretű, négyállásos garázs is, mely tárolásra vagy vállalkozásra is kiváló. A ház azonnal költözhető állapotban van.
OTP Banki hátterünknek köszönhetően finanszírozási igényekben (pl. Otthon Start Hitelprogram, Babaváró, Falusi CSOK, CSOK Plusz, Lakáshitel, Személyi kölcsön stb.), illetve biztosítások tekintetében is díjmentesen, soron kívüli ügyintézéssel segítem ügyfeleim! Referenciaszám:M313095

Hirdetés feltöltve: 2025. 11. 28. Utoljára módosítva: 2026. 01. 25.

Az ingatlan elhelyezkedése

Cím: Nyíregyháza

Eladó családi házak a környékről

Eladó családi ház
Eladó családi ház

Nyíregyháza

98 M Ft
4 szoba
125 m2
Eladó családi ház
Eladó családi ház

Levelek

29.8 M Ft
2 szoba
80 m2
Eladó családi ház
Eladó családi ház

Nyíregyháza

68 M Ft
4 szoba
220 m2
Eladó családi ház
Eladó családi ház

Nyíregyháza

68 M Ft
4 szoba
220 m2
Eladó családi ház
Eladó családi ház

Napkor

115 M Ft
5 szoba
292 m2
Eladó családi ház
Eladó családi ház

Balsa

38.9 M Ft
6 szoba
120 m2
Eladó családi ház
Eladó családi ház

Nyíregyháza

82 M Ft
4 szoba
140 m2
Eladó családi ház
Eladó családi ház

Nyíregyháza

75.9 M Ft
6 szoba
240 m2
Eladó családi ház
Eladó családi ház

Nyíregyháza

89.9 M Ft
5 szoba
274 m2
Eladó családi ház
Eladó családi ház

Nyíregyháza

80 M Ft
3 szoba
146 m2
Eladó családi ház
Eladó családi ház

Nyíregyháza

240 M Ft
3 szoba
204 m2
Eladó családi ház
Eladó családi ház

Nyíregyháza

90 M Ft
3 szoba
170 m2
Eladó családi ház
Eladó családi ház

Nyíregyháza

150 M Ft
2 szoba
120 m2
Eladó családi ház
Eladó családi ház

Nyíregyháza

140 M Ft
3 szoba
168 m2
Eladó családi ház
Eladó családi ház

Nyíregyháza

91.7 M Ft
4 szoba
142 m2
Eladó családi ház
Eladó családi ház

Nyíregyháza

159 M Ft
2 szoba
130 m2
Eladó családi ház
Eladó családi ház

Nyíregyháza

92 M Ft
3 szoba
161 m2
Eladó családi ház
Eladó családi ház

Nyíregyháza

89.9 M Ft
5 szoba
274 m2
Eladó családi ház
Eladó családi ház

Nyíregyháza

240 M Ft
3 szoba
204 m2
Eladó családi ház
Eladó családi ház

Nyíregyháza

250 M Ft
4 szoba
440 m2
Eladó családi ház
Eladó családi ház

Nyíregyháza

64.9 M Ft
3 szoba
140 m2
Eladó családi ház
Eladó családi ház

Nyíregyháza

90 M Ft
3 szoba
170 m2
Eladó családi ház
Eladó családi ház

Napkor

115 M Ft
5 szoba
292 m2
Eladó családi ház
Eladó családi ház

Nyíregyháza

90 M Ft
5 szoba
210 m2

Falusi CSOK ingatlanok

Eladó családi ház
Eladó családi ház

Bag

16.9 M Ft
6 szoba
160 m2
Eladó családi ház
Eladó családi ház

Háromfa, Kossuth

22.4 M Ft
139 m2
Eladó családi ház
Eladó családi ház

Marcaltő

26 M Ft
3 szoba
103 m2
Eladó téglalakás
Eladó téglalakás

Kőröshegy

83.5 M Ft
2 szoba
65 m2
Eladó családi ház
Eladó családi ház

Hercegszántó

29.9 M Ft
4 szoba
130 m2
Eladó téglalakás
Eladó téglalakás

Balatonszemes

123.3 M Ft
2 szoba
70 m2
Eladó családi ház
Eladó családi ház

Elek

85.9 M Ft
5 szoba
274 m2
Eladó családi ház
Eladó családi ház

Döröske

102.832 M Ft
3 szoba
114 m2