Kedves Felhasználónk! Rendszerfrissítés miatt az oldalunk 2026. február 9-én 12 órától várhatóan 20 óráig nem lesz elérhető. Köszönjük megértésed!
Oasis Residence

Eladó családi ház
Nyíregyháza

+ 17 kép 1/20
99 000 000 Ft99 M Ft 1 320 000 Ft/m2
3 + 1 szoba
75 m2
építés éve:1980

Részletes adatok

Telekméret: 469 m2
Fűtés: Gázkazán
Energetikai besorolás: Nem adta meg a hirdető

Az OTP Bank lakáshitel ajánlataFizetett hirdetés

+36 20 390
Tóth Zoltán
OTPIP Nyíregyháza Hunyadi u.

Érdekel az OTP Bank kedvezményes lakáshitel ajánlata? *

* A kérdésre „Igen” válasz bejelölése esetén, az „Üzenet küldése” gombra kattintva kijelentem, hogy az OTP Bank Nyrt. Adatkezelési tájékoztatójának tartalmát megismertem és tudomásul vettem.

Eladó családi ház leírása

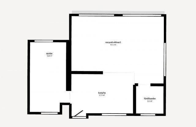
Sóstófürdő kedvelt, csendes és mégis frekventált részén eladásra kínálok gyönyörű környezetben egy szintes, gondosan karbantartott, rendezett, parkosított, 75 nm hasznos alapterületű családi házat, 469 négyzetméteres telken.
Az ingatlan földszintjén amerikai konyhás nappali, egy hálószoba, valamint fürdőszoba és WC egyben található.
Az emeleten két külön nyíló szoba és egy WC kapott helyet. Az alagsorban 18 négyzetméteres garázs, tárolóhelyiségek, konyha és spájz biztosítanak további kényelmet.
A ház fűtését gáz cirkó kazán biztosítja, a konyhában padlófűtéssel, a többi helyiségben radiátorokkal. A komfortot és biztonságot riasztórendszer, hűtő-fűtő klíma, valamint hőszigetelt borovi fenyő nyílászárók teszik teljessé. A ház kelet-dél-nyugati tájolású, így egész nap világos és napfényes.
2023-ban a külső átalakítási felújításhoz tervrajz készült, jelenleg folyamatban van a terasz építése és a homlokzati szigetelés, melyek a vételár részét képezik.
Ideális választás családoknak, akik nyugodt, mégis jól megközelíthető környezetben keresnek kényelmes, hangulatos otthont. Várom hívását akár hétvégén is!
OTP Banki hátterünknek köszönhetően finanszírozási igényekben (pl. Otthon Start Hitelprogram, Babaváró, Falusi CSOK, CSOK Plusz, Lakáshitel, Személyi kölcsön stb.), illetve biztosítások tekintetében is díjmentesen, soron kívüli ügyintézéssel segítem ügyfeleim! Referenciaszám: M315883
Virtuális séta:

Hirdetés feltöltve: 2025. 11. 26. Utoljára módosítva: 2026. 02. 07.

4 szobás családi házak ára Nyíregyházán

Ebből az összehasonlításból megtudhatod, hogyan viszonyul a lakás ára a környékbeli családi házak átlagos árához. Ez nem azt jelenti, hogy ennyivel olcsóbb vagy drágább, mint amennyit a lakás ér, hanem hogy ennyivel tér el a környékbeli átlagtól.

Ennek a m² ára
Nyíregyháza m² ár
1320 e Ft
660 e Ft -100%
Ennek az ára
Nyíregyháza átlagár
99 M Ft m Ft
102.6 m Ft 4%

Az ingatlan elhelyezkedése

Cím: Nyíregyháza

Eladó családi házak a környékről

Eladó családi ház
Eladó családi ház

Nyíregyháza

240 M Ft
3 szoba
204 m2
Eladó családi ház
Eladó családi ház

Nyíregyháza

89.9 M Ft
5 szoba
274 m2
Eladó családi ház
Eladó családi ház

Nyíregyháza

250 M Ft
3 szoba
440 m2
Eladó családi ház
Eladó családi ház

Nyíregyháza

250 M Ft
3 szoba
440 m2
Eladó családi ház
Eladó családi ház

Nyíregyháza

240 M Ft
3 szoba
204 m2
Eladó családi ház
Eladó családi ház

Nyíregyháza

82 M Ft
4 szoba
140 m2
Eladó családi ház
Eladó családi ház

Nyíregyháza

150 M Ft
2 szoba
120 m2
Eladó családi ház
Eladó családi ház

Nyíregyháza

150 M Ft
2 szoba
120 m2
Eladó családi ház
Eladó családi ház

Nyíregyháza

90 M Ft
5 szoba
210 m2
Eladó családi ház
Eladó családi ház

Nyíregyháza

199.9 M Ft
6 szoba
500 m2
Eladó családi ház
Eladó családi ház

Nyíregyháza

250 M Ft
4 szoba
440 m2
Eladó családi ház
Eladó családi ház

Nyíregyháza

75.9 M Ft
6 szoba
240 m2
Eladó családi ház
Eladó családi ház

Nyíregyháza

90 M Ft
3 szoba
170 m2
Eladó családi ház
Eladó családi ház

Nyíregyháza

140 M Ft
3 szoba
168 m2
Eladó családi ház
Eladó családi ház

Nyíregyháza

64.9 M Ft
3 szoba
140 m2
Eladó családi ház
Eladó családi ház

Nyíregyháza

98 M Ft
4 szoba
125 m2
Eladó családi ház
Eladó családi ház

Nyíregyháza

90.99 M Ft
3 szoba
150 m2
Eladó családi ház
Eladó családi ház

Nyíregyháza

60 M Ft
3 szoba
100 m2
Eladó családi ház
Eladó családi ház

Nyíregyháza

89.9 M Ft
5 szoba
274 m2
Eladó családi ház
Eladó családi ház

Balsa

38.9 M Ft
6 szoba
120 m2
Eladó családi ház
Eladó családi ház

Levelek

29.8 M Ft
2 szoba
80 m2
Eladó családi ház
Eladó családi ház

Nyíregyháza

140 M Ft
3 szoba
168 m2
Eladó családi ház
Eladó családi ház

Nyíregyháza

92 M Ft
3 szoba
161 m2
Eladó családi ház
Eladó családi ház

Nyíregyháza

64.9 M Ft
3 szoba
140 m2

Falusi CSOK ingatlanok

Eladó családi ház
Eladó családi ház

Szakmár

12.9 M Ft
3 + 1 szoba
90 m2
Eladó családi ház
Eladó családi ház

Kaposgyarmat

695 M Ft
6 szoba
610 m2
Eladó családi ház
Eladó családi ház

Recsk

24.5 M Ft
2 szoba
100 m2
Eladó családi ház
Eladó családi ház

Seregélyes

73.9 M Ft
4 szoba
110 m2
Eladó családi ház
Eladó családi ház

Drágszél, Petőfi utca 12

5.58 M Ft
1 + 1 szoba
106 m2
Eladó családi ház
Eladó családi ház

Tarján

29.9 M Ft
3 szoba
120 m2
Eladó családi ház
Eladó családi ház

Adásztevel

8.9 M Ft
2 szoba
63 m2
Eladó családi ház
Eladó családi ház

Bár

89.5 M Ft
4 + 1 szoba
172 m2