Eladó családi ház
Nyíregyháza

+ 17 kép 1/20
58 000 000 Ft58 M Ft 500 000 Ft/m2
3 + 1 szoba
116 m2
építés éve:1990

Részletes adatok

Állapot: Átlagos
Telekméret: 700 m2
Fűtés: Egyéb
Energetikai besorolás: Nem adta meg a hirdető

Az OTP Bank lakáshitel ajánlataFizetett hirdetés

+36 70 585
Szücs-Hajdú Angelika
OTP Ingatlanpont Kft.

Érdekel az OTP Bank kedvezményes lakáshitel ajánlata? *

* A kérdésre „Igen” válasz bejelölése esetén, az „Üzenet küldése” gombra kattintva kijelentem, hogy az OTP Bank Nyrt. Adatkezelési tájékoztatójának tartalmát megismertem és tudomásul vettem.

Eladó családi ház leírása

Eladó családi ház Nyíregyháza-Rozsrétszőlőben
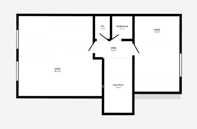
Nyíregyháza-Rozsrétszőlő csendes, rendezett részén eladásra kínálunk egy földszintes, tetőtér-beépítéses, teljesen alápincézett családi házat.
A földszint kb. 70 nm -es, a tetőtér szintén kb. 70 nm alapterületű, ahol két szoba és egy fürdőszoba található. A földszinthez egy 8 nm-es terasz kapcsolódik. A tető időtálló betoncseréppel fedett.
Az ingatlan a ?90-es években épült vázkerámia falazóelemből, az akkori hőtechnikai előírásoknak megfelelően. A víz-, gáz- és villanyvezetékek korszerűek, a meleg vizet elektromos bojler biztosítja.
A fűtés többféleképpen megoldható: gázkazánnal, cserépkályhával vagy elektromos energiával. A tetőn 5 kW-os napelemrendszer működik, amely még 5 évig éves szaldó elszámolású.
A kb. 700 nm-es telek részben parkosított, részben konyhakertként használható, mérete lehetőséget biztosít az épület bővítésére is.
A környék csendes, kertvárosias, jó lakóközösséggel. Nyíregyháza belvárosa autóval 10 percen belül elérhető, rendszeres buszjárat is közlekedik. A közelben iskola, óvoda, bolt és templom található, az M3-as autópálya felhajtója pedig mindössze 5 percnyire van.
A ház több mint 30 éves, ezért részleges felújítást igényel (festés, tapétázás, kerítés- és lábazatjavítás, kertrendezés).
Az ingatlan tehermentes, azonnal birtokba vehető.
OTP Banki háttérrel díjmentes, gyors ügyintézést biztosítunk finanszírozási és biztosítási igények esetén (pl. Otthon Start Hitelprogram, Babaváró, Falusi CSOK, CSOK Plusz, lakáshitel, személyi kölcsön stb.).
Referenciaszám: M313531

Hirdetés feltöltve: 2025. 10. 21. Utoljára módosítva: 2025. 10. 21.

4 szobás családi házak ára Nyíregyházán

Ebből az összehasonlításból megtudhatod, hogyan viszonyul a lakás ára a környékbeli családi házak átlagos árához. Ez nem azt jelenti, hogy ennyivel olcsóbb vagy drágább, mint amennyit a lakás ér, hanem hogy ennyivel tér el a környékbeli átlagtól.

Ennek a m² ára
Nyíregyháza m² ár
500 e Ft
644 e Ft 22%
Ennek az ára
Nyíregyháza átlagár
58 M Ft m Ft
105.8 m Ft 45%

Az ingatlan elhelyezkedése

Cím: Nyíregyháza

Eladó családi házak a környékről

Eladó családi ház
Eladó családi ház

Nyíregyháza

140 M Ft
3 szoba
168 m2
Eladó családi ház
Eladó családi ház

Nyíregyháza

180 M Ft
3 szoba
204 m2
Eladó családi ház
Eladó családi ház

Nyíregyháza

44.99 M Ft
2 szoba
60 m2
Eladó családi ház
Eladó családi ház

Nyíregyháza

120 M Ft
5 szoba
203 m2
Eladó családi ház
Eladó családi ház

Nyíregyháza

87 M Ft
5 szoba
210 m2
Eladó családi ház
Eladó családi ház

Nyíregyháza

22.9 M Ft
2 szoba
90 m2
Eladó családi ház
Eladó családi ház

Nyíregyháza

22.9 M Ft
2 szoba
90 m2
Eladó családi ház
Eladó családi ház

Nyíregyháza

190 M Ft
4 szoba
230 m2
Eladó családi ház
Eladó családi ház

Nyíregyháza

23 M Ft
2 szoba
51 m2
Eladó családi ház
Eladó családi ház

Nyíregyháza

44.99 M Ft
2 szoba
60 m2
Eladó családi ház
Eladó családi ház

Nyíregyháza

44.9 M Ft
1 szoba
51 m2
Eladó családi ház
Eladó családi ház

Nyíregyháza

250 M Ft
4 szoba
440 m2
Eladó családi ház
Eladó családi ház

Nyíregyháza, Oros, Oros

55 M Ft
4 szoba
100 m2
Eladó családi ház
Eladó családi ház

Nyíregyháza

44.9 M Ft
1 szoba
51 m2
Eladó családi ház
Eladó családi ház

Nyíregyháza

23 M Ft
2 szoba
51 m2
Eladó családi ház
Eladó családi ház

Nyíregyháza

68 M Ft
4 szoba
220 m2
Eladó családi ház
Eladó családi ház

Nyíregyháza

89.9 M Ft
5 szoba
274 m2
Eladó családi ház
Eladó családi ház

Nyíregyháza

250 M Ft
4 szoba
440 m2
Eladó családi ház
Eladó családi ház

Nyíregyháza

199.9 M Ft
6 szoba
500 m2
Eladó családi ház
Eladó családi ház

Nyíregyháza

46 M Ft
3 + 1 szoba
140 m2
Eladó családi ház
Eladó családi ház

Nyíregyháza

79 M Ft
5 szoba
126 m2
Eladó családi ház
Eladó családi ház

Nyírtelek

68.9 M Ft
12 szoba
440 m2
Eladó családi ház
Eladó családi ház

Nyíregyháza

190 M Ft
4 szoba
230 m2
Eladó családi ház
Eladó családi ház

Nyíregyháza

62 M Ft
4 szoba
140 m2

Falusi CSOK ingatlanok

Eladó családi ház
Eladó családi ház

Somogymeggyes

14 M Ft
3 szoba
86 m2
Eladó családi ház
Eladó családi ház

Recsk

21 M Ft
4 szoba
220 m2
Eladó családi ház
Eladó családi ház

Bakonybánk, Kossuth Lajos utca 26

13.36 M Ft
1 + 1 szoba
105 m2
Eladó családi ház
Eladó családi ház

Ceglédbercel

45 M Ft
2 + 1 szoba
127 m2
Eladó családi ház
Eladó családi ház

Lovászpatona

15.9 M Ft
3 szoba
72 m2
Eladó családi ház
Eladó családi ház

Galgagyörk

30 M Ft
3 szoba
123 m2
Eladó családi ház
Eladó családi ház

Vitnyéd, Petőfi Sándor utca 3

16.71 M Ft
1 + 1 szoba
99 m2
Eladó családi ház
Eladó családi ház

Tápióbicske

18 M Ft
7 szoba
104 m2